Licht. Raum. See. Maisonette mit 6 Zimmern & Bootsanleger in Bestlage direkt am Müggelsee
1.415.000 €
Kaufpreis
174 m²
Wohnfläche
6
Zimmer
immobilien.de Nr.: 9201197
Objektnummer: 6412#avj4U
Dateien
Preise & Kosten
| Kaufpreis | 1.415.000 € |
| Nebenkosten | keine Angabe |
| Hausgeld | 400 € |
Größe & Zustand
| Wohnfläche | 174 m² |
| Zimmer | 6 |
| Baujahr | 1905 |
| Letzte Modernisierung | 2009 |
| Verfügbar ab | auf Anfrage |
| Zustand | Gepflegt |
Energie
| Energieausweistyp | Verbrauch |
| Ausstellungsdatum | 01. 03. 2020 |
| Gültig bis | 28.02.2030 |
| Baujahr (laut Energieausweis) | 1905 |
| Energieeffizienzklasse | C |
| Energieverbrauchkennwert | 94.3 kWh/(m²*a) |
| Heizungsart | Zentralheizung |
| Wesentlicher Energieträger | Erdgas Leicht |
| Energieträger/Befeuerung | Gas |
Objektbeschreibung
Exklusive 6-Zimmer-Maisonette mit Seeblick und Bootsliegeplatz am Großen Müggelsee Diese außergewöhnliche Maisonette-Wohnung befindet sich im imposanten Dachgeschoss eines charmanten, dreigeschossigen Wohnhauses am Müggelseedamm 278 in Berlin-Friedrichshagen. Das Gebäude wurde im Jahr 2004 sowie in den Folgejahren umfassend zu insgesamt zehn Eigentumswohnungen ausgebaut und modernisiert.
Die rund 6-Zimmer-Wohnung überzeugt durch ihre großzügige Raumaufteilung, lichtdurchflutete Zimmer und den atemberaubenden Ausblick auf den Großen Müggelsee.
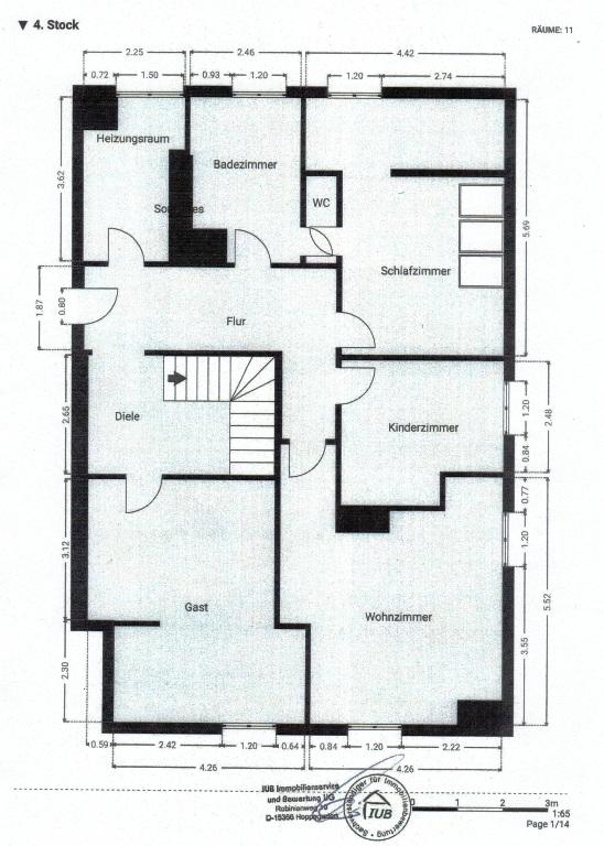
Raumaufteilung:
Die untere Ebene der Wohnung empfängt Sie mit vier hellen, behaglichen Zimmern – zwei davon mit traumhaftem Seeblick nach Süden. Hochwertige Dielenfußböden verleihen den Räumen eine warme Wohnatmosphäre. Ein Badezimmer mit separatem WC sowie ein praktischer Hauswirtschaftsraum mit moderner Gasetagenheizung (Brennwerttherme) ergänzen diese Etage.
Eine stilvolle Holztreppe führt in den offen gestalteten, oberen Wohnbereich. Hier erwartet Sie ein großzügiger Wohn- und Küchenbereich mit separatem Essplatz und direktem Zugang zur Terrasse – ein perfekter Ort zum Entspannen und Genießen des beeindruckenden Seepanoramas. Ein weiteres Duschbad sowie ein separates Arbeitszimmer runden das Raumangebot auf dieser Ebene ab. Parkett- und Fliesenböden unterstreichen die hochwertige Ausstattung.
Weitere Highlights:
- Fantastischer Seeblick vom Wohn- und Terrassenbereich
- Eigener Bootsliegeplatz auf dem gemeinschaftlichen Seegrundstück
- Hochwertige Holz- und Parkettböden
- Zwei moderne Bäder + separates WC
- Eigene Gasetagenheizung (Brennwerttherme)
- Kellerraum inklusive
- Gepflegtes Gemeinschaftsgrundstück mit Seezugang
Diese Immobilie bietet Ihnen eine seltene Kombination aus exklusivem Wohnen, Naturverbundenheit und urbaner Lebensqualität – ideal für Familien, Paare mit Platzbedarf oder Individualisten mit einem Faible für Wohnen am Wasser.
Die rund 6-Zimmer-Wohnung überzeugt durch ihre großzügige Raumaufteilung, lichtdurchflutete Zimmer und den atemberaubenden Ausblick auf den Großen Müggelsee.
Raumaufteilung:
Die untere Ebene der Wohnung empfängt Sie mit vier hellen, behaglichen Zimmern – zwei davon mit traumhaftem Seeblick nach Süden. Hochwertige Dielenfußböden verleihen den Räumen eine warme Wohnatmosphäre. Ein Badezimmer mit separatem WC sowie ein praktischer Hauswirtschaftsraum mit moderner Gasetagenheizung (Brennwerttherme) ergänzen diese Etage.
Eine stilvolle Holztreppe führt in den offen gestalteten, oberen Wohnbereich. Hier erwartet Sie ein großzügiger Wohn- und Küchenbereich mit separatem Essplatz und direktem Zugang zur Terrasse – ein perfekter Ort zum Entspannen und Genießen des beeindruckenden Seepanoramas. Ein weiteres Duschbad sowie ein separates Arbeitszimmer runden das Raumangebot auf dieser Ebene ab. Parkett- und Fliesenböden unterstreichen die hochwertige Ausstattung.
Weitere Highlights:
- Fantastischer Seeblick vom Wohn- und Terrassenbereich
- Eigener Bootsliegeplatz auf dem gemeinschaftlichen Seegrundstück
- Hochwertige Holz- und Parkettböden
- Zwei moderne Bäder + separates WC
- Eigene Gasetagenheizung (Brennwerttherme)
- Kellerraum inklusive
- Gepflegtes Gemeinschaftsgrundstück mit Seezugang
Diese Immobilie bietet Ihnen eine seltene Kombination aus exklusivem Wohnen, Naturverbundenheit und urbaner Lebensqualität – ideal für Familien, Paare mit Platzbedarf oder Individualisten mit einem Faible für Wohnen am Wasser.
Ausstattung
| Anzahl der Etagen im Haus | 5 |
| Inserat befindet sich im Stockwerk | 4 |
| Küche | Einbauküche |
| Bad | 2 |
| Bad | Dusche, Wanne, Fenster |
| Boden | Fliesen, Parkett |
| Garten | |
| Terrassen | 1 |
| Keller |
Ausbau des Dachgeschosses zu Wohnzwecken:
- 2004 kompletter Abbruch des Dachstuhles und Neubau aller tragenden Bauteile gemäß Baugenehmigung und Statik
- 2004 Herstellung der neuen Dachabdichtung
- 2004 Sanierung der TGA-Stränge und der öffentlichen Anschlüsse
- 2004 Sanierung Treppenhaus und Keller
- 2004 Sanierung der Fassade
- 2004 Neugestaltung der Wohnflächen der beiden Maisonette-Wohnungen
- 2004 Installation einer Gas-Etagenheizung (Marke Viessmann)
- 2004 Einbau von Isolierfenstern
- 2004 Einbau eines zusätzlichen Bades mit separatem WC zwischen Schlafzimmer und Bad
- 2009 Einbau eines zusätzlichen Duschbades
- 2022 Austausch des Terrassenbelages
- 2004 kompletter Abbruch des Dachstuhles und Neubau aller tragenden Bauteile gemäß Baugenehmigung und Statik
- 2004 Herstellung der neuen Dachabdichtung
- 2004 Sanierung der TGA-Stränge und der öffentlichen Anschlüsse
- 2004 Sanierung Treppenhaus und Keller
- 2004 Sanierung der Fassade
- 2004 Neugestaltung der Wohnflächen der beiden Maisonette-Wohnungen
- 2004 Installation einer Gas-Etagenheizung (Marke Viessmann)
- 2004 Einbau von Isolierfenstern
- 2004 Einbau eines zusätzlichen Bades mit separatem WC zwischen Schlafzimmer und Bad
- 2009 Einbau eines zusätzlichen Duschbades
- 2022 Austausch des Terrassenbelages
Sonstige Informationen
PROVISIONSFREI FÜR DEN KÄUFER / ERWERBER
Vertrauen und Fachwissen: Diese Prinzipien stehen für uns bei BIS Immobilien an oberster Stelle. Seit 1990 füllen wir unseren Erfahrungsschatz mit Ihren individuellen Bedürfnissen und Wünschen, lernen dabei jeden Tag hinzu und wachsen an unseren Aufgaben. Dabei ist das Gebot unserer Arbeit klar: Wir schaffen Vertrauen durch klare Transparenz, geben Orientierung durch fundiertes Fachwissen – und sehen uns dabei als Ihre persönlichen Berater. Ob beim Kauf oder Verkauf von Immobilien: Mit unserer Erfahrung, unserer Expertise und unserem Netzwerk begleiten wir Sie bei jedem Schritt – vom ersten Gespräch bis zur Vertragsunterschrift. Rufen Sie uns an oder schreiben Sie eine E-Mail: Wir haben immer ein offenes Ohr und freuen uns darauf, Sie zu unterstützen.
Vertrauen und Fachwissen: Diese Prinzipien stehen für uns bei BIS Immobilien an oberster Stelle. Seit 1990 füllen wir unseren Erfahrungsschatz mit Ihren individuellen Bedürfnissen und Wünschen, lernen dabei jeden Tag hinzu und wachsen an unseren Aufgaben. Dabei ist das Gebot unserer Arbeit klar: Wir schaffen Vertrauen durch klare Transparenz, geben Orientierung durch fundiertes Fachwissen – und sehen uns dabei als Ihre persönlichen Berater. Ob beim Kauf oder Verkauf von Immobilien: Mit unserer Erfahrung, unserer Expertise und unserem Netzwerk begleiten wir Sie bei jedem Schritt – vom ersten Gespräch bis zur Vertragsunterschrift. Rufen Sie uns an oder schreiben Sie eine E-Mail: Wir haben immer ein offenes Ohr und freuen uns darauf, Sie zu unterstützen.
Lage des Objektes
Berlin-Friedrichshagen ist ein malerischer Ortsteil im Südosten der Hauptstadt und gehört zum Bezirk Treptow-Köpenick. Die Lage besticht durch ihre einzigartige Verbindung von urbanem Leben und naturnahem Wohnen. Eingebettet zwischen dem Müggelsee, dem größten See Berlins, und den ausgedehnten Müggelwäldern, bietet Friedrichshagen eine hohe Lebensqualität in grüner Umgebung. Die charmante Bölschestraße mit ihren zahlreichen Cafés, Restaurants, kleinen Boutiquen und dem Kino ist das kulturelle und wirtschaftliche Herz des Ortsteils und erinnert mit ihrem historischen Flair an eine klassische Berliner Flaniermeile. Auch in puncto Verkehrsanbindung überzeugt Friedrichshagen: Die S-Bahn-Linie S3 verbindet den Ortsteil in etwa 30 Minuten mit der Berliner Innenstadt (Alexanderplatz, Hauptbahnhof), während mehrere Bus- und Straßenbahnlinien für zusätzliche Flexibilität sorgen. Ob Spaziergänge am Müggelsee, sportliche Aktivitäten in der Natur oder entspannte Nachmittage in den umliegenden Biergärten – Friedrichshagen ist ein echter Geheimtipp für alle, die das Beste aus Stadt und Natur verbinden möchten.
Diese Wohnung liegt in direkter Seelage und gepflegter Nachbarschaft. Das Seebad, die Bölschestraße und der Spreetunnel sind in wenigen Minuten zu Fuß erreichbar – urbanes Leben mit direkter Verbindung zur Natur. Die S-Bahn (S3 Friedrichshagen) sowie die B1/B5 bieten optimale Erreichbarkeit Richtung Innenstadt.
Diese Wohnung liegt in direkter Seelage und gepflegter Nachbarschaft. Das Seebad, die Bölschestraße und der Spreetunnel sind in wenigen Minuten zu Fuß erreichbar – urbanes Leben mit direkter Verbindung zur Natur. Die S-Bahn (S3 Friedrichshagen) sowie die B1/B5 bieten optimale Erreichbarkeit Richtung Innenstadt.
Anbieter kontaktieren
Kontakt
| Mobil | +49 177 3921663 |
| Website | www.berliner-immoservice.de |
