Charmantes Mehrfamilienhaus in Traumlage von Breisach am Rhein!
1.090.000 €
Kaufpreis
303 m²
Wohnfläche
12
Zimmer
immobilien.de Nr.: 9193453
Objektnummer: 131093
Preise & Kosten
| Kaufpreis | 1.090.000 € |
| Nebenkosten | keine Angabe |
| Maklerprovision | 4,76 % (inkl. MwSt.) |
Größe & Zustand
| Wohnfläche | 303 m² |
| Grundstücksfläche | 371 m² |
| Zimmer | 12 |
| Baujahr | 2004 |
| Verfügbar ab | nach Absprache |
| Zustand | Gepflegt |
Energie
| Energieausweistyp | Verbrauch |
| Ausstellungsdatum | 04. 08. 2025 |
| Baujahr (laut Energieausweis) | 2004 |
| Energieeffizienzklasse | E |
| Energieverbrauchkennwert | 143.3 kWh/(m²*a) |
| Heizungsart | Zentralheizung |
| Wesentlicher Energieträger | Gas |
| Energieträger/Befeuerung | Gas |
Objektbeschreibung
Dieses attraktive Mehrfamilienhaus überzeugt durch seine großzügige Raumaufteilung, solide Bauweise und die zentrale Lage nahe dem Stadtkern.
Es wurde im Jahr 2004 auf einem etwa 371 qm großen Grundstück errichtet und 2021 durch den Einbau einer modernen Gasheizung energetisch aufgewertet.
Das Haus erstreckt sich über drei Etagen - Untergeschoss, Erdgeschoss und Dachgeschoss - und umfasst drei logisch geschnittene Wohnungen mit insgesamt zwölf Zimmern.
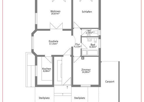
Die EG-Wohnung bietet auf rund 96 qm ein helles Wohnzimmer mit Zugang zur sonnigen Terrasse, ein Schlafzimmer, ein Esszimmer mit angrenzender Küche, ein Kinderzimmer, ein Badezimmer, ein Gäste-WC und einen Flur.
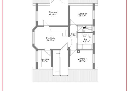
Im DG befindet sich eine etwa 78 qm große Wohnung mit Wohnzimmer, Schlafzimmer, Essbereich mit Küche, zwei Kinderzimmern, Badezimmer, Gäste-WC und Flur. Zwei Balkone mit schönem Ausblick sowie ein zusätzliches Kinderzimmer im Dachspitz runden das Angebot ab. Diese Wohnung ist aktuell monatlich für 1.200 Euro zzgl. NK sehr gut und langfristig vermietet.
Die dritte Einheit im UG umfasst ca. 60 qm und besteht aus einem großzügigen Wohn- und Essbereich mit Küche, einem Schlafzimmer, einem Badezimmer und einem Flur.
Zusätzlich befinden sich im Keller zwei Abstellräume, ein Waschraum sowie der Heizraum mit der neuen Gasheizung.
Die Wohnungen im Erd- und Untergeschoss werden zum Jahresende 2025 frei und in frisch renoviertem Zustand übergeben - ideal für eine Neuvermietung mit attraktivem Mietzins und gesteigerter Rendite.
Alle Einheiten verfügen über Einbauküchen mit Geräten.
Ein Carport sowie zwei Stellplätze ergänzen dieses interessante Immobilienangebot.
Vereinbaren Sie gerne Ihren persönlichen Besichtigungstermin - ich freue mich darauf, Ihnen dieses besondere Objekt näher zu zeigen!
Weitere Angebote unter www.GARANT-IMMO.de
Es wurde im Jahr 2004 auf einem etwa 371 qm großen Grundstück errichtet und 2021 durch den Einbau einer modernen Gasheizung energetisch aufgewertet.
Das Haus erstreckt sich über drei Etagen - Untergeschoss, Erdgeschoss und Dachgeschoss - und umfasst drei logisch geschnittene Wohnungen mit insgesamt zwölf Zimmern.
Die EG-Wohnung bietet auf rund 96 qm ein helles Wohnzimmer mit Zugang zur sonnigen Terrasse, ein Schlafzimmer, ein Esszimmer mit angrenzender Küche, ein Kinderzimmer, ein Badezimmer, ein Gäste-WC und einen Flur.
Im DG befindet sich eine etwa 78 qm große Wohnung mit Wohnzimmer, Schlafzimmer, Essbereich mit Küche, zwei Kinderzimmern, Badezimmer, Gäste-WC und Flur. Zwei Balkone mit schönem Ausblick sowie ein zusätzliches Kinderzimmer im Dachspitz runden das Angebot ab. Diese Wohnung ist aktuell monatlich für 1.200 Euro zzgl. NK sehr gut und langfristig vermietet.
Die dritte Einheit im UG umfasst ca. 60 qm und besteht aus einem großzügigen Wohn- und Essbereich mit Küche, einem Schlafzimmer, einem Badezimmer und einem Flur.
Zusätzlich befinden sich im Keller zwei Abstellräume, ein Waschraum sowie der Heizraum mit der neuen Gasheizung.
Die Wohnungen im Erd- und Untergeschoss werden zum Jahresende 2025 frei und in frisch renoviertem Zustand übergeben - ideal für eine Neuvermietung mit attraktivem Mietzins und gesteigerter Rendite.
Alle Einheiten verfügen über Einbauküchen mit Geräten.
Ein Carport sowie zwei Stellplätze ergänzen dieses interessante Immobilienangebot.
Vereinbaren Sie gerne Ihren persönlichen Besichtigungstermin - ich freue mich darauf, Ihnen dieses besondere Objekt näher zu zeigen!
Weitere Angebote unter www.GARANT-IMMO.de
Ausstattung
| Anzahl der Etagen im Haus | 3 |
| Küche | Einbauküche |
| Bad | 3 |
| Boden | Fliesen |
| Balkone | 1 |
Zusammenfassung:
- Gepflegtes Mehrfamilienhaus in zentraler Lage von Breisach
am Rhein, nahe dem Stadtkern
- Baujahr: 2004
- Gesamtwohnfläche: ca. 303 qm
- Grundstücksgröße: ca. 371 qm
- Wohnungen im Überblick:
* Erdgeschoss: ca. 96 qm, 4 Zimmer
* Dachgeschoss: ca. 78 qm Wohnfläche + ca. 68 qm ausgebauter
Dachspitz, insgesamt 5 Zimmer
* Untergeschoss: ca. 60 qm, 3 Zimmer
Zusätzlich im UG: zwei Kellerräume, Waschraum, Heizraum
- Modernisierung:
* 2021: Einbau einer neuen, energieeffizienten Gasheizung
- Vermietung & Potenzial:
* die DG-Wohnung ist für monatlich 1.200 Euro zzgl. NK
langfristig vermietet
* die EG- und UG-Wohnungen werden Ende 2025 frei und
frisch renoviert übergeben - ideal für Neuvermietung
mit attraktiver Rendite
- Parkmöglichkeiten:
* ein Carport
* zwei Außenstellplätze
- Gepflegtes Mehrfamilienhaus in zentraler Lage von Breisach
am Rhein, nahe dem Stadtkern
- Baujahr: 2004
- Gesamtwohnfläche: ca. 303 qm
- Grundstücksgröße: ca. 371 qm
- Wohnungen im Überblick:
* Erdgeschoss: ca. 96 qm, 4 Zimmer
* Dachgeschoss: ca. 78 qm Wohnfläche + ca. 68 qm ausgebauter
Dachspitz, insgesamt 5 Zimmer
* Untergeschoss: ca. 60 qm, 3 Zimmer
Zusätzlich im UG: zwei Kellerräume, Waschraum, Heizraum
- Modernisierung:
* 2021: Einbau einer neuen, energieeffizienten Gasheizung
- Vermietung & Potenzial:
* die DG-Wohnung ist für monatlich 1.200 Euro zzgl. NK
langfristig vermietet
* die EG- und UG-Wohnungen werden Ende 2025 frei und
frisch renoviert übergeben - ideal für Neuvermietung
mit attraktiver Rendite
- Parkmöglichkeiten:
* ein Carport
* zwei Außenstellplätze
Sonstige Informationen
1 x Carport, 2 x Stellplatz außen
Lage des Objektes
Die Immobilie befindet sich in begehrter Lage im Herzen von Breisach am Rhein, einer charmanten Stadt direkt am Oberrhein, nahe der französischen Grenze. Sie liegt in einem ruhigen, gepflegten Wohngebiet mit hervorragender Infrastruktur und hoher Lebensqualität.
Die Straße selbst ist eine verkehrsberuhigte Anliegerstraße mit gepflastertem Belag und nächtlicher Beleuchtung, was für ein angenehmes und sicheres Wohnumfeld sorgt.
In fußläufiger Nähe befinden sich zahlreiche Einkaufsmöglichkeiten, Restaurants, Apotheken und Ärzte. Auch Schulen, Kindergärten und Freizeitangebote sind schnell erreichbar.
Die historische Altstadt von Breisach, der Münsterberg mit dem imposanten St. Stephansmünster sowie das Rheinufer laden zu Spaziergängen und kulturellen Entdeckungen ein.
Dank der Nähe zum Bahnhof und zur B31 ist eine hervorragende Anbindung an Freiburg, das Elsass und die gesamte Region gewährleistet.
Die Lage kombiniert ruhiges Wohnen mit urbaner Nähe - ideal für Familien, Berufstätige und Investoren gleichermaßen.
Die Straße selbst ist eine verkehrsberuhigte Anliegerstraße mit gepflastertem Belag und nächtlicher Beleuchtung, was für ein angenehmes und sicheres Wohnumfeld sorgt.
In fußläufiger Nähe befinden sich zahlreiche Einkaufsmöglichkeiten, Restaurants, Apotheken und Ärzte. Auch Schulen, Kindergärten und Freizeitangebote sind schnell erreichbar.
Die historische Altstadt von Breisach, der Münsterberg mit dem imposanten St. Stephansmünster sowie das Rheinufer laden zu Spaziergängen und kulturellen Entdeckungen ein.
Dank der Nähe zum Bahnhof und zur B31 ist eine hervorragende Anbindung an Freiburg, das Elsass und die gesamte Region gewährleistet.
Die Lage kombiniert ruhiges Wohnen mit urbaner Nähe - ideal für Familien, Berufstätige und Investoren gleichermaßen.
Anbieter kontaktieren
Kontakt
| Telefon | 07751/91 82 5-0 |
| Fax | 07751/91 82 5-20 |
| Website | www.garant-immo.de |
