Neubau Winkelwalmdachbungalow in ruhiger Wohnlage!
475.000 €
Kaufpreis
162 m²
Wohnfläche
4
Zimmer
immobilien.de Nr.: 9150383
Objektnummer: 8389#ch5lV
Preise & Kosten
| Kaufpreis | 475.000 € |
| Nebenkosten | keine Angabe |
Größe & Zustand
| Wohnfläche | 162 m² |
| Grundstücksfläche | 0 m² |
| Zimmer | 4 |
| Baujahr | 2025 |
| Verfügbar ab | nach Fertigstellung |
| Zustand | Erstbezug |
Energie
| Energieausweistyp | Bedarfsausweis |
| Baujahr (laut Energieausweis) | 2025 |
| Energieeffizienzklasse | A+ |
| Heizungsart | Fußbodenheizung |
| Wesentlicher Energieträger | Wärmepumpe |
| Energieträger/Befeuerung | Luft-Wärme-Pumpe |
Objektbeschreibung
Provisionsfrei für den Käufer - Diese moderne und äußerst stilvolle Winkelwalmdachvilla vereint exklusives Wohnen mit durchdachter Funktionalität. Der Neubau wird schlüsselfertig inklusive Maler- und Gartenarbeiten in hochwertiger Bauweise nach dem energieeffizienten BEG EH40 Standard errichtet. Das Grundstück ist nicht im Kaufpreis enthalten.
Diese großzügige Villa überzeugt durch eine klare architektonische Linie und viele liebevoll geplante Details. Schon beim Betreten des Hauses unterstreicht der elegante Eingangsbereich mit hochwertiger Marmortreppe den gehobenen Anspruch des Hauses.
Der Grundriss ist ideal für modernes, komfortables Wohnen auf einer Ebene: Das Erdgeschoss bietet ein geräumiges Schlafzimmer und ein luxuriös ausgestattetes Badezimmer mit bodentiefer Dusche, Doppelwaschbecken mit stilvollen Möbeln, Hänge-WC sowie einer Wannenanlage – alles geschmackvoll und deckenhoch gefliest.
Das offene Wohn-/Esszimmer ist dank bodentiefer Fensterelemente lichtdurchflutet und bietet einen herrlichen Blick auf den Garten. Der kleine Glaserker sorgt für einen besonderen architektonischen Akzent. Von hier aus gelangt man direkt auf die großzügige, teilweise überdachte Terrasse – ein perfekter Ort zum Entspannen.
Die angrenzende Küche ist offen gestaltet, kann auf Wunsch jedoch mit einer Schiebetür separiert werden. Ein direkter Zugang führt in den großzügigen Hauswirtschaftsraum, von dem aus Sie sowohl die Garage als auch den Garten erreichen. Die Küche lässt sich ideal mit einer hochwertigen Einbauküche ausstatten – wir beraten Sie gerne in Zusammenarbeit mit unserem Partner-Küchenstudio.
Im Obergeschoss befinden sich ein weiteres Schlafzimmer, ein großzügiges Wohnstudiozimmer, ein modernes Duschbad mit bodentiefer Dusche sowie der Technik- und Heizungsraum.
Diese großzügige Villa überzeugt durch eine klare architektonische Linie und viele liebevoll geplante Details. Schon beim Betreten des Hauses unterstreicht der elegante Eingangsbereich mit hochwertiger Marmortreppe den gehobenen Anspruch des Hauses.
Der Grundriss ist ideal für modernes, komfortables Wohnen auf einer Ebene: Das Erdgeschoss bietet ein geräumiges Schlafzimmer und ein luxuriös ausgestattetes Badezimmer mit bodentiefer Dusche, Doppelwaschbecken mit stilvollen Möbeln, Hänge-WC sowie einer Wannenanlage – alles geschmackvoll und deckenhoch gefliest.
Das offene Wohn-/Esszimmer ist dank bodentiefer Fensterelemente lichtdurchflutet und bietet einen herrlichen Blick auf den Garten. Der kleine Glaserker sorgt für einen besonderen architektonischen Akzent. Von hier aus gelangt man direkt auf die großzügige, teilweise überdachte Terrasse – ein perfekter Ort zum Entspannen.
Die angrenzende Küche ist offen gestaltet, kann auf Wunsch jedoch mit einer Schiebetür separiert werden. Ein direkter Zugang führt in den großzügigen Hauswirtschaftsraum, von dem aus Sie sowohl die Garage als auch den Garten erreichen. Die Küche lässt sich ideal mit einer hochwertigen Einbauküche ausstatten – wir beraten Sie gerne in Zusammenarbeit mit unserem Partner-Küchenstudio.
Im Obergeschoss befinden sich ein weiteres Schlafzimmer, ein großzügiges Wohnstudiozimmer, ein modernes Duschbad mit bodentiefer Dusche sowie der Technik- und Heizungsraum.
Ausstattung
| Bad | 2 |
| Bad | Dusche, Wanne, Fenster |
| Boden | Fliesen, Laminat |
| Garage/Stellplätze | 1 |
Die Ausstattung dieser Neubauvilla lässt kaum Wünsche offen. In sämtlichen Räumen wird eine angenehme Fußbodenheizung verlegt, die für ein behagliches Wohnklima sorgt – individuell in jedem Raum regulierbar. Die eleganten und langlebigen Bodenbeläge können, je nach Baufortschritt, vom Käufer frei gewählt werden, sodass die Gestaltung ganz nach Ihrem persönlichen Geschmack erfolgen kann.
Besonders hervorzuheben ist die durchgehend hochwertige Sanitär-Ausstattung: Das Hauptbad im Erdgeschoss präsentiert sich mit einer großzügigen bodentiefen Dusche, einer Wannenanlage, zwei Waschbecken samt stilvoller Möbel und einem modernen Hänge-WC – alles geschmackvoll, deckenhoch und mit edler Fliesenoptik gestaltet. Auch das Gäste-WC sowie das Duschbad im Dachgeschoss stehen dem in nichts nach: Beide sind ebenfalls mit Hänge-WC, Waschtisch mit Möbeln und geschmackvoller Verfliesung versehen. Das Duschbad im Obergeschoss punktet zusätzlich mit einer weiteren bodentiefen Dusche.
Die massive, separat stehende Walmdachgarage ist mit einem elektrisch betriebenen Sektionaltor ausgestattet und bietet einen praktischen Zugang sowohl zum Hauswirtschaftsraum als auch direkt in den Garten – ideal für den Alltag.
Besonders hervorzuheben ist die durchgehend hochwertige Sanitär-Ausstattung: Das Hauptbad im Erdgeschoss präsentiert sich mit einer großzügigen bodentiefen Dusche, einer Wannenanlage, zwei Waschbecken samt stilvoller Möbel und einem modernen Hänge-WC – alles geschmackvoll, deckenhoch und mit edler Fliesenoptik gestaltet. Auch das Gäste-WC sowie das Duschbad im Dachgeschoss stehen dem in nichts nach: Beide sind ebenfalls mit Hänge-WC, Waschtisch mit Möbeln und geschmackvoller Verfliesung versehen. Das Duschbad im Obergeschoss punktet zusätzlich mit einer weiteren bodentiefen Dusche.
Die massive, separat stehende Walmdachgarage ist mit einem elektrisch betriebenen Sektionaltor ausgestattet und bietet einen praktischen Zugang sowohl zum Hauswirtschaftsraum als auch direkt in den Garten – ideal für den Alltag.
Sonstige Informationen
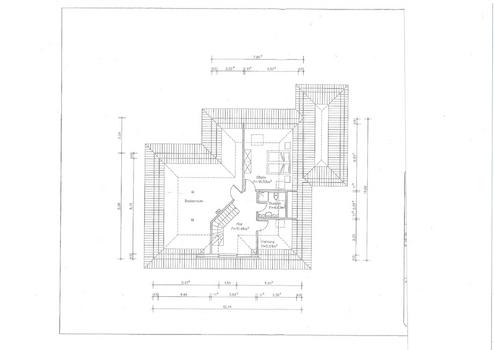
Wohnflächenaufteilung:
Erdgeschoss:
Diele ca. 12,00 m²
Gäste WC ca. 3,00 m²
Badezimmer ca. 10,00 m²
Küche ca. 17,00 m²
Wohnzimmer/Esszimmer ca. 37,00 m²
Schlafen I ca. 14,00 m²
Hauswirtschaftsraum ca. 9,00 m²
Dachgeschoss:
Flur ca. 11,00 m²
Badezimmer ca. 4,00 m²
Schlafen/Gästezimmer ca. 17,00 m²
Wohnstudio ca. 23,00 m²
Heizungsraum ca. 5,00 m²
Erdgeschoss:
Diele ca. 12,00 m²
Gäste WC ca. 3,00 m²
Badezimmer ca. 10,00 m²
Küche ca. 17,00 m²
Wohnzimmer/Esszimmer ca. 37,00 m²
Schlafen I ca. 14,00 m²
Hauswirtschaftsraum ca. 9,00 m²
Dachgeschoss:
Flur ca. 11,00 m²
Badezimmer ca. 4,00 m²
Schlafen/Gästezimmer ca. 17,00 m²
Wohnstudio ca. 23,00 m²
Heizungsraum ca. 5,00 m²
Lage des Objektes
Dörpen ist eine aufstrebende Gemeinde im Herzen des nördlichen Emslands und gilt als attraktiver Wohnort für Familien, Berufstätige und Ruhesuchende gleichermaßen. Die Lage zwischen Papenburg und Lingen bietet eine ideale Mischung aus ländlicher Idylle und urbaner Erreichbarkeit.
Geprägt von einer intakten Natur, bietet Dörpen viele Möglichkeiten zur Erholung im Grünen. Die Nähe zum Dortmund-Ems-Kanal sowie zahlreiche Rad- und Wanderwege machen die Region zu einem beliebten Ziel für Outdoor-Aktivitäten und Freizeitgenuss. Gleichzeitig überzeugt der Ort durch seine moderne Infrastruktur und ein starkes Gemeinschaftsleben.
In Dörpen finden Sie alles, was Sie für den täglichen Bedarf benötigen: Supermärkte, Fachgeschäfte, Apotheken, Ärzte, Restaurants und Cafés sorgen für eine gute Nahversorgung. Kindergärten, Grund- und weiterführende Schulen sowie zahlreiche Sport- und Kulturangebote machen Dörpen besonders familienfreundlich. Das aktive Vereinsleben stärkt das Zusammengehörigkeitsgefühl und bietet vielfältige Möglichkeiten zur Freizeitgestaltung.
Verkehrstechnisch ist Dörpen hervorragend angebunden. Die B70 und die nahegelegene A31 ermöglichen eine schnelle Verbindung Richtung Ruhrgebiet und Nordseeküste. Auch der Bahnhof mit Anbindung an die Emslandstrecke sichert die Mobilität ohne Auto.
Wer das Emsland von seiner lebendigen und dennoch naturnahen Seite erleben möchte, findet in Dörpen einen idealen Lebensmittelpunkt – modern, freundlich, grün.
Geprägt von einer intakten Natur, bietet Dörpen viele Möglichkeiten zur Erholung im Grünen. Die Nähe zum Dortmund-Ems-Kanal sowie zahlreiche Rad- und Wanderwege machen die Region zu einem beliebten Ziel für Outdoor-Aktivitäten und Freizeitgenuss. Gleichzeitig überzeugt der Ort durch seine moderne Infrastruktur und ein starkes Gemeinschaftsleben.
In Dörpen finden Sie alles, was Sie für den täglichen Bedarf benötigen: Supermärkte, Fachgeschäfte, Apotheken, Ärzte, Restaurants und Cafés sorgen für eine gute Nahversorgung. Kindergärten, Grund- und weiterführende Schulen sowie zahlreiche Sport- und Kulturangebote machen Dörpen besonders familienfreundlich. Das aktive Vereinsleben stärkt das Zusammengehörigkeitsgefühl und bietet vielfältige Möglichkeiten zur Freizeitgestaltung.
Verkehrstechnisch ist Dörpen hervorragend angebunden. Die B70 und die nahegelegene A31 ermöglichen eine schnelle Verbindung Richtung Ruhrgebiet und Nordseeküste. Auch der Bahnhof mit Anbindung an die Emslandstrecke sichert die Mobilität ohne Auto.
Wer das Emsland von seiner lebendigen und dennoch naturnahen Seite erleben möchte, findet in Dörpen einen idealen Lebensmittelpunkt – modern, freundlich, grün.
Anbieter kontaktieren
Kontakt
| Telefon | +49 4963 914923 |
| Mobil | +49 171 9912377 |
| Website | gruender-immobilien.de |
