KR: BAUGRUNDSTÜCK IN RUHIGER LAGE ZU KAUFEN
259.000 €
Kaufpreis
immobilien.de Nr.: 9061826
Objektnummer: 12696
Kaufpreis
| Kaufpreis | 259.000 € |
| Maklerprovision | 3.57 % |
Wohnfläche, Grundstück & Bausubstanz
| Grundstücksfläche | 466 m² |
| Verfügbar ab | keine Angabe |
| Zustand | Erstbezug |
Beschreibung der Immobilie
Zum Verkauf steht ein attraktives, 466 m² großes Grundstück in ruhiger, aber verkehrsgünstiger Lage im beliebten Krefelder Stadtteil Hüls.
Das Grundstück überzeugt durch seinen praktischen Zuschnitt und bietet eine hervorragende Grundlage für verschiedene Bauvorhaben von einem modernen Mehrfamilienhaus bis hin zu einem individuell geplanten Einfamilienhaus.
Bauvorhaben:
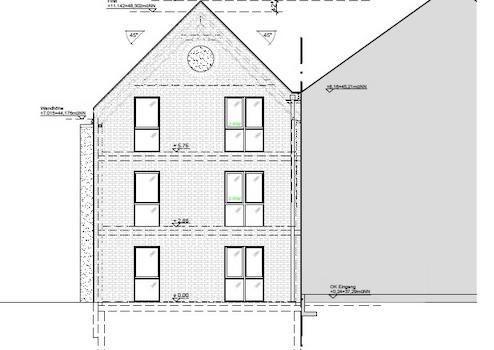
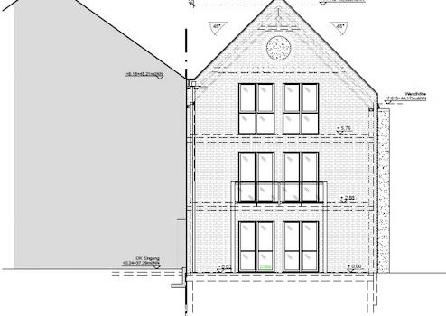
Für das Grundstück liegt bereits eine Baugenehmigung für den Bau eines unterkellerten, 2,5-geschossigen 3-Parteien-Hauses vor, das einseitig an ein Nachbargebäude angebaut wird. Die geplante Wohnfläche beträgt ca. 262 m². Zusätzlich sind ein Carport mit drei KFZ-Stellplätzen, fünf Fahrradstellplätze sowie ein Spielplatz im hinteren Grundstücksbereich genehmigt.
Alternativ besteht die Möglichkeit, im Rahmen einer Bauvoranfrage die Realisierbarkeit eines Einfamilienhauses zu prüfen. Diese Option eröffnet besonders Familien oder Eigennutzern individuelle Gestaltungsspielräume.
Fazit:
Durch die bestehende Baugenehmigung können Bauherren und Investoren sofort mit dem Bau starten. Gleichzeitig erlaubt die Option einer Bauvoranfrage auch privaten Interessenten, ein passendes Einfamilienhaus zu planen. Die Lage in Krefeld-Hüls einem familienfreundlichen und nachgefragten Stadtteil macht das Grundstück besonders attraktiv für vielfältige Nutzungskonzepte.
Das Grundstück überzeugt durch seinen praktischen Zuschnitt und bietet eine hervorragende Grundlage für verschiedene Bauvorhaben von einem modernen Mehrfamilienhaus bis hin zu einem individuell geplanten Einfamilienhaus.
Bauvorhaben:
Für das Grundstück liegt bereits eine Baugenehmigung für den Bau eines unterkellerten, 2,5-geschossigen 3-Parteien-Hauses vor, das einseitig an ein Nachbargebäude angebaut wird. Die geplante Wohnfläche beträgt ca. 262 m². Zusätzlich sind ein Carport mit drei KFZ-Stellplätzen, fünf Fahrradstellplätze sowie ein Spielplatz im hinteren Grundstücksbereich genehmigt.
Alternativ besteht die Möglichkeit, im Rahmen einer Bauvoranfrage die Realisierbarkeit eines Einfamilienhauses zu prüfen. Diese Option eröffnet besonders Familien oder Eigennutzern individuelle Gestaltungsspielräume.
Fazit:
Durch die bestehende Baugenehmigung können Bauherren und Investoren sofort mit dem Bau starten. Gleichzeitig erlaubt die Option einer Bauvoranfrage auch privaten Interessenten, ein passendes Einfamilienhaus zu planen. Die Lage in Krefeld-Hüls einem familienfreundlichen und nachgefragten Stadtteil macht das Grundstück besonders attraktiv für vielfältige Nutzungskonzepte.
Karte wird geladen...
Objektstandort
47398 Krefeld
Lage & Infrastruktur
Objektstandort
47398 Krefeld
Das Grundstück befindet sich in einem ruhigen, gewachsenen Wohngebiet im Stadtteil Krefeld-Hüls, direkt gegenüber einer städtischen Grünfläche. Diese Lage zeichnet sich durch eine angenehme, grüne Umgebung aus und bietet eine hohe Lebensqualität. Die Umgebung besteht hauptsächlich aus Wohngebäuden und kleinen Gewerbebetrieben, was zu einer ruhigen und dennoch gut erreichbaren Wohngegend führt.
Einkaufsmöglichkeiten, Schulen und öffentliche Verkehrsmittel sind in unmittelbarer Nähe und sorgen für eine komfortable Infrastruktur. Die Nähe zu Naherholungsgebieten, wie dem Hülser Bruch, bietet zahlreiche Freizeitmöglichkeiten und trägt zur hohen Lebensqualität bei.
Die gute Anbindung an das Verkehrsnetz ermöglicht eine schnelle Erreichbarkeit des Krefelder Stadtzentrums sowie umliegender Städte wie Düsseldorf, was den Standort sowohl für Familien als auch für Berufspendler besonders attraktiv macht.
Einkaufsmöglichkeiten, Schulen und öffentliche Verkehrsmittel sind in unmittelbarer Nähe und sorgen für eine komfortable Infrastruktur. Die Nähe zu Naherholungsgebieten, wie dem Hülser Bruch, bietet zahlreiche Freizeitmöglichkeiten und trägt zur hohen Lebensqualität bei.
Die gute Anbindung an das Verkehrsnetz ermöglicht eine schnelle Erreichbarkeit des Krefelder Stadtzentrums sowie umliegender Städte wie Düsseldorf, was den Standort sowohl für Familien als auch für Berufspendler besonders attraktiv macht.
Kontaktanfrage senden
Über den Anbieter
Lomberg.de Immobilien GmbH & Co. KG
Rheinstraße 35
47799 Krefeld
Kontakt
| Telefon | 02151-807219 |
| Fax | 02151-807227 |
| Website | www.Lomberg.de |
Ansprechpartner/in
Helen Erbe
Weitere Angebote des Anbieters
4
BAUGRUNDSTÜCK FÜR IHRE TRAUMIMMOBILIE IN GUTER LAGE ZU ...
Grundstück
47398 Krefeld
Zum Verkauf steht ein attraktives, ca. 466 m² großes Grundstück in ruhiger und dennoch verkehrsgünstiger Lage im beliebten Krefelder Stadtteil Hüls. Das Grundstück überzeugt durch seinen praktischen Zuschnitt und ...
259.000 €
Kaufpreis
466 m²
Grundstücksfläche
9
1560m² ZU SCHULUNGSZWECKEN, WERKSTATT, LAGER UND ...
Büro / Praxen
47803 Krefeld
Bei der hier angebotenen Gewerbefläche handelt es sich um ca. 520 m² Werkstatt im Erdgeschoss, ca. 520 m² Büro- und Schulungsräume im ersten Obergeschoss sowie ca. 520 m² Lagerfläche im Kellergeschoss, welche über eine ...
5.500 €
Kaltmiete
1560 m²
Gesamtfläche
12
FRISCH RENOVIERTE 4-ZIMMERWOHNUNG MIT BALKON IN ...
Wohnung
47799 Krefeld
Die angebotene 4-Zimmer-Wohnung befindet sich im 1. Obergeschoss eines gepflegten Mehrfamilienhauses aus dem Baujahr 1958 und verfügt über eine Wohnfläche von ca. 83 m². Die Wohnung überzeugt durch eine gut durchdachte ...
664 €
Kaltmiete
83 m²
Wohnfläche
4
Zimmer
19
KR-UERDINGEN: WOHNEN IN EINER HISTORISCHEN BURG MIT ...
Wohnung
47829 Krefeld
Diese außergewöhnliche Eigentumswohnung vereint historischen Charme mit modernem Wohnkomfort und befindet sich in einer eindrucksvollen Burganlage aus dem Jahr 1357. Das Gebäude wurde in den 1980er Jahren in ...
295.000 €
Kaufpreis
82 m²
Wohnfläche
1
Zimmer
11
GUT AUFGETEILTE 3-ZIMMERWOHNUNG MIT BLICK AUF DEN ...
Wohnung
47798 Krefeld
**Um eine zügige Bearbeitung gewährleisten zu können, werden nur Anfragen, die über das Online-Portal gesendet werden, bearbeitet. Bei Interesse füllen Sie daher bitte das Anfrageformular mit Angabe der im Haushalt ...
625 €
Kaltmiete
97 m²
Wohnfläche
3
Zimmer