Gebäudeensemble in Großkugel zu verkaufen
199.000 €
Kaufpreis
90 m²
Wohnfläche
4
Zimmer
immobilien.de Nr.: 9054762
Objektnummer: 451186
Preise & Kosten
| Kaufpreis | 199.000 € |
| Nebenkosten | keine Angabe |
| Kaufpreis pro m² | 2211,11 € |
| Maklerprovision | 3,57 % (inkl. MwSt.) |
| Stellplatz Freiplatz Kaufpreis | 25 € |
Größe & Zustand
| Wohnfläche | 90 m² |
| Grundstücksfläche | 142 m² |
| Zimmer | 4 |
| Baujahr | 1992 |
| Verfügbar ab | vermietet |
| Zustand | Gepflegt |
Energie
| Energieausweistyp | Bedarfsausweis |
| Ausstellungsdatum | 22. 04. 2024 |
| Baujahr (laut Energieausweis) | 1992 |
| Energieeffizienzklasse | G |
| Endenergiebedarf | 208.7 |
| Heizungsart | Zentralheizung |
| Wesentlicher Energieträger | Öl |
| Energieträger/Befeuerung | Öl |
Objektbeschreibung
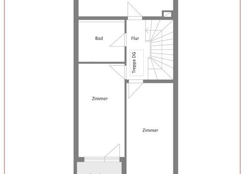
Am Ortsrand von Großkugel im Kabelsketal werden fünf Reihenmittel- bzw. Reihenendhäuser im Paket zum Verkauf angeboten. Dieses Reihenhaus liegt zusammen mit weiteren zwei baugleichen Typen mittig im Gebäudeensemble. Es ist voll unterkellert. Im Erdgeschoss befinden sich der Eingangsbereich mit Windfang, Diele, Gäste-WC, Küche sowie der offene Wohnzimmer- und Esszimmerbereich. Vom Wohnzimmer gelangt man in die südlich gelegene Terrasse und den Garten. Über eine Holztreppe geht es ins Obergeschoss mit Schlafzimmer, zwei Kinderzimmern und dem Bad mit Dusche und Wanne. Eine kleine Loggia kann man von einem Kinderzimmer aus betreten. Das Dachgeschoss, ebenfalls über eine Holz-Wendeltreppe erreichbar, kann für Wohnzwecke genutzt werden.
Weitere Angebote unter www.GARANT-IMMO.de
Weitere Angebote unter www.GARANT-IMMO.de
Ausstattung
| Anzahl der Etagen im Haus | 3 |
| Bad | 1 |
| Boden | Fliesen, Teppich, Laminat |
| Balkone | 1 |
Sonstige Informationen
Das Reihenmittelhaus ist vermietet und seitens der Mieter besteht großes Interesse an der Weiterführung des Mietvertrages. Zum Haus gehört ein Pkw-Stellplatz.
Lage des Objektes
Der Ortsteil Großkugel der Gemeinde Kabelsketal befindet sich zwischen Halle (Saale) und Leipzig unmittelbar an der Bundesstraße B 6, nahe der Landesgrenze von Sachsen-Anhalt und Sachsen. Bis zur BAB A 9, ASS Schkeuditz/Großkugel sind es ca. 4 km, bis Halle/Saale sind es ca. 13 km, bis Leipzig/Wahren ca. 14 km. Zahlreiche Einkaufsmöglichkeiten des täglichen Bedarfs befinden sich in unmittelbarer Nähe. Nur wenige Gehminuten vom Anwesen entfernt befindet sich der S-Bahn-Haltepunkt Großkugel der S-Bahn-Linie S3 Leipzig-Halle.
Anbieter kontaktieren
Kontakt
| Telefon | 0341 583119-00 |
| Fax | 0341 583119-20 |
| Website | www.garant-immo.de |
