Gebäudeensemble in Großkugel zu verkaufen
209.000 €
Kaufpreis
106 m²
Wohnfläche
4
Zimmer
immobilien.de Nr.: 9054759
Objektnummer: 451184
Preise & Kosten
| Kaufpreis | 209.000 € |
| Nebenkosten | keine Angabe |
| Kaufpreis pro m² | 1971,7 € |
| Maklerprovision | 3,57 % (inkl. MwSt.) |
| Stellplatz Freiplatz Kaufpreis | 25 € |
Größe & Zustand
| Wohnfläche | 106 m² |
| Grundstücksfläche | 266 m² |
| Zimmer | 4 |
| Baujahr | 1992 |
| Verfügbar ab | vermietet |
| Zustand | Gepflegt |
Energie
| Energieausweistyp | Bedarfsausweis |
| Ausstellungsdatum | 22. 04. 2024 |
| Baujahr (laut Energieausweis) | 1992 |
| Energieeffizienzklasse | G |
| Endenergiebedarf | 210.3 |
| Heizungsart | Zentralheizung |
| Wesentlicher Energieträger | Öl |
| Energieträger/Befeuerung | Öl |
Objektbeschreibung
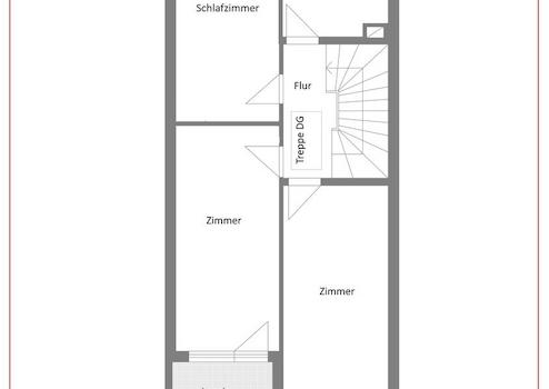
Am Ortsrand von Großkugel im Kabelsketal werden fünf Reihenmittel- bzw. Reihenendhäuser im Paket zum Verkauf angeboten. Dieses Reihenendhaus begrenzt in westlicher Ausrichtung das Gebäudeensemble. Es ist voll unterkellert. Im Erdgeschoss befinden sich der Eingangsbereich mit Windfang, Diele, Gäste-WC, Küche sowie der offene Wohnzimmer- und Esszimmerbereich. Vom Wohnzimmer gelangt man in die südlich gelegene Terrasse und den Garten. Über eine Holztreppe geht es ins Obergeschoss mit Schlafzimmer, zwei Kinderzimmern und dem großen Bad mit Dusche und Wanne und Fenster in nördlicher Richtung. Eine kleine Loggia kann man von einem Kinderzimmer aus betreten. Im ausgebauten Dachgeschoss, ebenfalls über eine Holz-Wendeltreppe erreichbar, gibt es noch einen zu Wohnzwecken nutzbaren Raum.
Weitere Angebote unter www.GARANT-IMMO.de
Weitere Angebote unter www.GARANT-IMMO.de
Ausstattung
| Anzahl der Etagen im Haus | 3 |
| Bad | 1 |
| Boden | Fliesen, Teppich, Laminat |
| Balkone | 1 |
Aufgrund seiner Nähe zum Flughafen Leipzig-Halle wurden im Haus teilweise Schallschutzfenster eingebaut. Das zu Wohnzwecken komplett ausgebaute Dachgeschoss ist beheizt. Im Wohnbereich im Erdgeschoss wurde 2010 Laminatfußboden verlegt.
Sonstige Informationen
Das Reihenendhaus ist vermietet und seitens der Mieter besteht großes Interesse an der Weiterführung des Mietvertrages. Zum Haus gehört ein PKW-Stellplatz.
Lage des Objektes
Der Ortsteil Großkugel der Gemeinde Kabelsketal befindet sich zwischen Halle (Saale) und Leipzig unmittelbar an der Bundesstraße B6, nahe der Landesgrenze von Sachsen-Anhalt und Sachsen. Bis zur BAB A9, ASS Schkeuditz/Großkugel sind es ca. 4 km, bis Halle/Saale sind es ca. 13 km, bis Leipzig/Wahren ca. 14 km. Zahlreiche Einkaufsmöglichkeiten des täglichen Bedarfs befinden sich in unmittelbarer Nähe. Nur wenige Gehminuten vom Anwesen entfernt befindet sich der S-Bahn-Haltepunkt Großkugel der S-Bahn-Linie S3 Leipzig-Halle.
Anbieter kontaktieren
Kontakt
| Telefon | 0341 583119-00 |
| Fax | 0341 583119-20 |
| Website | www.garant-immo.de |
