Geräumige 2 Zimmer-Wohnung in Plagwitz - Altbau - ideale ÖPNV Anbindung
158.000 €
Kaufpreis
62 m²
Wohnfläche
2
Zimmer
immobilien.de Nr.: 9035928
Objektnummer: 476047
Preise & Kosten
| Kaufpreis | 158.000 € |
| Nebenkosten | keine Angabe |
| Maklerprovision | 3,57 % (inkl. MwSt.) |
Größe & Zustand
| Wohnfläche | 62 m² |
| Zimmer | 2 |
| Baujahr | 1905 |
| Verfügbar ab | vermietet |
| Zustand | Gepflegt |
Objektbeschreibung
Das ist Ihre Chance - diese geräumige 2 Zimmer-Wohnung in Leipzig-Plagwitz bietet Ihnen den perfekten Mix aus Anbindung, Wohnqualität und modernisierten Standards. Das unter Denkmalschutz stehende Gebäude strahlt durch die Klinkerputzfassade einen historischen, gepflegten und liebenswerten Charakter aus, welcher vor allem Dank einer umfangreichen Sanierung um das Jahr 2000 keine Wünsche in Sachen Wohnkomfort offen lässt.
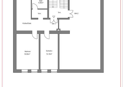
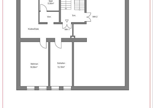
Der durchdachte Grundriss erlaubt nicht nur Fenster in jedem Zimmer, sondern neben hohen Decken auch helle Räume. Durch einen zentral verorteten Flur überzeugt die Wohnung zusätzlich mit kurzen Wegen und ausreichend Raum zur freien Entfaltung und persönlichen Verwirklichung.
Vor allem der urbane Altbau-Flair lässt diese Immobilie auf große Beliebtheit stoßen, ganz gleich ob Studenten, Paare oder kleine Familien. Die Lage, der Schnitt und vor allem die Optik der Immobilie sprechen für sich.
Weitere Angebote unter www.GARANT-IMMO.de
Der durchdachte Grundriss erlaubt nicht nur Fenster in jedem Zimmer, sondern neben hohen Decken auch helle Räume. Durch einen zentral verorteten Flur überzeugt die Wohnung zusätzlich mit kurzen Wegen und ausreichend Raum zur freien Entfaltung und persönlichen Verwirklichung.
Vor allem der urbane Altbau-Flair lässt diese Immobilie auf große Beliebtheit stoßen, ganz gleich ob Studenten, Paare oder kleine Familien. Die Lage, der Schnitt und vor allem die Optik der Immobilie sprechen für sich.
Weitere Angebote unter www.GARANT-IMMO.de
Ausstattung
| Anzahl der Etagen im Haus | 4 |
| Bad | 1 |
| Boden | Fliesen, Laminat |
Das unter denkmalschutz stehende Objekt wurde um die Jahrtausendwende umfangreich saniert. Der Zustand ist sauber, gepflegt & dem Sanierungsjahr entsprechend modernisiert. Besonders der Baujahr typische Stuck sowie diverse Zierelemente verleihen nicht nur dem Haus sondern auch der Wohnung einen einzigartigen Altbau-Flair - ohne Abstriche im Punkto zeitgemäße Wohnstandards machen zu müssen!
Der durchdachte Grundriss ermöglicht dabei bequemes Wohnen: Wohn- und Schlafzimmer, Bad mit Fenster & ein L-Förmiger Flur inkl. Küche sorgen für die ideale Flächenverteilung und helle Räume. Vor allem der abgewinkelte Küchenbereich macht die Wohnung für kleine Familien, im Home-Office-Tätige oder studentisch vermietende Interessenten spannend.
Je nach eigenen Belieben könnten kleinere Renovierungsarbeiten vorgenommen werden - zwingend erforderlich sind diese durch eine bewusste Materialauswahl bei der Sanierung derzeit jedoch nicht.
Der geräumige Kellerraum, ein Abstellraum im Treppenhaus, ein großer gemeinschaftlich nutzbarer Garten und ein Ziergarten-Streifen vor dem Objekt runden das Gesamtpaket ab. Überzeugen Sie sich selbst - vereinbaren Sie jetzt einen Besichtigungstermin.
Der durchdachte Grundriss ermöglicht dabei bequemes Wohnen: Wohn- und Schlafzimmer, Bad mit Fenster & ein L-Förmiger Flur inkl. Küche sorgen für die ideale Flächenverteilung und helle Räume. Vor allem der abgewinkelte Küchenbereich macht die Wohnung für kleine Familien, im Home-Office-Tätige oder studentisch vermietende Interessenten spannend.
Je nach eigenen Belieben könnten kleinere Renovierungsarbeiten vorgenommen werden - zwingend erforderlich sind diese durch eine bewusste Materialauswahl bei der Sanierung derzeit jedoch nicht.
Der geräumige Kellerraum, ein Abstellraum im Treppenhaus, ein großer gemeinschaftlich nutzbarer Garten und ein Ziergarten-Streifen vor dem Objekt runden das Gesamtpaket ab. Überzeugen Sie sich selbst - vereinbaren Sie jetzt einen Besichtigungstermin.
Sonstige Informationen
* sanierter Denkmalschutz
* geräumige 2 Zimmer-Wohnung
* große Küche - WG geeignet
* Bad mit Fenster
* großes Kellerabteil
* Abstellraum Treppenhaus
* vermietet für 425,50 EUR zzgl. NK/ Monat
* geräumige 2 Zimmer-Wohnung
* große Küche - WG geeignet
* Bad mit Fenster
* großes Kellerabteil
* Abstellraum Treppenhaus
* vermietet für 425,50 EUR zzgl. NK/ Monat
Lage des Objektes
Willkommen am Leipziger Adler, dem Drehpunkt des Leipziger Südwestens. Das unter Denkmalschutz stehende Objekt befindet sich an der Grenze von Plagwitz zu Kleinzschocher und ermöglicht Ihren Mietern eine hervorragende Anbindung an den öffentlichen Nahverkehr und folglich eine schnelle Verbindung in die Innenstadt und andere Teile Leipzigs. Straßenbahn- und Buslinien sind bequem zu Fuß erreichbar, was für Mieter/ Eigennutzer gleichermaßen attraktiv ist.
Das direkte Umfeld zeichnet sich durch eine lebendige, dennoch ruhige Nachbarschaft aus, in der Geschäfte, Restaurants, Cafés und weitere Geschäfte des täglichen Bedarfs auf kurzen Wegen verfügbar sind. Kulturelle Angebote, Parks und andere Ausflugsziele liegen ebenfalls in unmittelbarer Umgebung und steigern die Lebensqualität zusätzlich. Leipzig wächst weiter - überzeugen Sie sich selbst von den idealen Gegebenheiten dieser Wohnimmobilie.
Das direkte Umfeld zeichnet sich durch eine lebendige, dennoch ruhige Nachbarschaft aus, in der Geschäfte, Restaurants, Cafés und weitere Geschäfte des täglichen Bedarfs auf kurzen Wegen verfügbar sind. Kulturelle Angebote, Parks und andere Ausflugsziele liegen ebenfalls in unmittelbarer Umgebung und steigern die Lebensqualität zusätzlich. Leipzig wächst weiter - überzeugen Sie sich selbst von den idealen Gegebenheiten dieser Wohnimmobilie.
Anbieter kontaktieren
Kontakt
| Telefon | 0341 583119-00 |
| Fax | 0341 583119-20 |
| Website | www.garant-immo.de |
