Einfamilienhaus mit toller Aussicht im Dürrbachtal
735.000 €
Kaufpreis
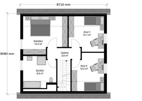
162,6 m²
Wohnfläche
5
Zimmer
immobilien.de Nr.: 9027365
Objektnummer: HSMPFAWÜ1
Preise & Kosten
| Kaufpreis | 735.000 € |
| Nebenkosten | keine Angabe |
Größe & Zustand
| Wohnfläche | 162,6 m² |
| Grundstücksfläche | 480 m² |
| Zimmer | 5 |
| Verfügbar ab | keine Angabe |
Energie
| Energietyp | KfW-40 |
Objektbeschreibung
Erleben Sie die Freiheit eines individuell geplanten Einfamilienhauses mit STREIF. Jedes Haus ist so einzigartig wie seine Bewohner. Mit unseren vielfältigen Gestaltungsmöglichkeiten, angefangen bei der Dachform bis hin zur Geschossanzahl und Kellergeschossen, passen wir Ihr neues Zuhause exakt an Ihre Wünsche an. Vor jedem Bauprojekt steht eine umfassende Beratung, um sicherzustellen, dass Ihre Vorstellungen bis ins kleinste Detail berücksichtigt werden. Sobald Sie mit dem Grundriss vollständig zufrieden sind, beginnt die Umsetzung, die wir innerhalb weniger Monate realisieren. Ihr Traumhaus wartet darauf, von Ihnen entdeckt zu werden.
Wohnfläche wurde ohne Terasse berechnet
Wohnfläche wurde ohne Terasse berechnet
Sonstige Informationen
Dieses projektierte Objekt umfasst die Ausbaustufe 3 - FastFertigPlus: Diese Stufe beinhaltet eine Sanitär-Grundausstattung und lässt Ihnen die Möglichkeit, sich aktiv beim Bau einzubringen. Fachbetriebe übernehmen dabei die haustechnischen Gewerke wie Heizung, Lüftung, Sanitär und Estrich. Bei STREIF haben Sie zudem die Wahl zwischen vier Ausbaustufen insgesamt - jede bietet Flexibilität hinsichtlich Ihrer Eigenleistung und finanziellen Möglichkeiten.
Lage des Objektes
Das Einfamilienhaus befindet sich in Unterdürrbach, einer Lage, die idyllische Ruhe mit hervorragender Anbindung an Infrastruktur verbindet. Genießen Sie die Vorzüge einer gut ausgebauten Umgebung mit zahlreichen Freizeitmöglichkeiten für die ganze Familie.
