Potenzial für`s Kapital: Solides, ausbaufähiges und attraktives Mehrfamilienhaus in schöner Lage
499.000 €
Kaufpreis
400 m²
Wohnfläche
immobilien.de Nr.: 8540426
Objektnummer: FALC-SMa-19563
Preise & Kosten
| Kaufpreis | 499.000 € |
| Nebenkosten | keine Angabe |
| Kaufpreis pro m² | 1247,5 € |
| Maklerprovision | 7,14 % inkl. MwSt. |
| Stellplatz Freiplatz Kaufpreis | 0 € |
Größe & Zustand
| Wohnfläche | 400 m² |
| Grundstücksfläche | 468 m² |
| Baujahr | 1910 |
| Letzte Modernisierung | 2000 |
| Verfügbar ab | keine Angabe |
| Zustand | Teil Vollrenoviert |
Energie
| Energieausweistyp | Bedarfsausweis |
| Ausstellungsdatum | 17. 06. 2021 |
| Gültig bis | 16.06.2031 |
| Energieeffizienzklasse | G |
| Endenergiebedarf | 227.7 |
| Wesentlicher Energieträger | Gas |
| Energieträger/Befeuerung | Gas |
Objektbeschreibung
Dieses im Jahr 1910 erbaute Vier - Parteienhaus in Arnstadt überzeugt mit seiner soliden Substanz.
Wir bieten Ihnen, dem Investor, ein Mehrfamilienhaus, welches Sie sich nach Ihren Vorstellungen modernisieren und damit Ihre zukünftigen Renditen selbst bestimmen.
Die Wohnlage mit breiten, dennoch wenig befahrenen und begrünten Straßen sichert Ihren Mietern ein angenehmes Wohnumfeld.
Zwei Wohnungen sind aktuell vermietet. Die beiden anderen Wohnungen sind aktuell nicht vermietet und werden für die Sanierung vorbereitet. Der ausbaubare Dachboden erhöht das Potential für Ihre zukünftige Kapitalanlage.
Die Vier-Zimmer Wohnungen sind groß, hell, freundlich und verfügen über eine ansprechende Deckenhöhe.
Bitte nutzen Sie die virtuelle 360°-Besichtigung, bevor Sie mit uns einen Besichtigungstermin vereinbaren. Hinterlassen Sie bitte dazu Ihre vollständigen Kontaktdaten im Portal.
Wir bieten Ihnen, dem Investor, ein Mehrfamilienhaus, welches Sie sich nach Ihren Vorstellungen modernisieren und damit Ihre zukünftigen Renditen selbst bestimmen.
Die Wohnlage mit breiten, dennoch wenig befahrenen und begrünten Straßen sichert Ihren Mietern ein angenehmes Wohnumfeld.
Zwei Wohnungen sind aktuell vermietet. Die beiden anderen Wohnungen sind aktuell nicht vermietet und werden für die Sanierung vorbereitet. Der ausbaubare Dachboden erhöht das Potential für Ihre zukünftige Kapitalanlage.
Die Vier-Zimmer Wohnungen sind groß, hell, freundlich und verfügen über eine ansprechende Deckenhöhe.
Bitte nutzen Sie die virtuelle 360°-Besichtigung, bevor Sie mit uns einen Besichtigungstermin vereinbaren. Hinterlassen Sie bitte dazu Ihre vollständigen Kontaktdaten im Portal.
Ausstattung
| Balkone | 1 |
| Garten | |
| Keller |
Zwei Wohnungen sind aktuell vermietet. Die beiden anderen Wohnungen sind aktuell nicht vermietet und werden für die Sanierung vorbereitet.
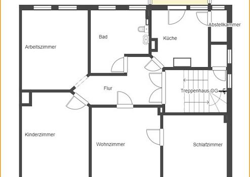
Alle Vier-Raum-Wohnungen verfügen jeweils über Küche und Bad mit Fenstern.
Die Balkons sind von der Küche aus zugänglich und nach Osten ausgerichtet. Die Wohnung im dritten Obergeschoß verfügt zusätzlich über einen West-Balkon. Ebenfalls von der Küche zugänglich ist die Abstellkammer mit Fenster.
Die Wohnungen sind mit Etagenheizungen (Gas) und mit Warmwasserbereitung (Elektro) ausgestattet. Die Räume werden mit Plattenheizkörpern beheizt.
Der begrünte Hof mit Zufahrt bietet Platz für die Errichtung von sechs Stellplätzen.
Das ca. 80 m² große Dachgeschoß ist ausbaubar.
Ca. 400 m² Wohnfläche sind derzeit im Bestand.
Alle Vier-Raum-Wohnungen verfügen jeweils über Küche und Bad mit Fenstern.
Die Balkons sind von der Küche aus zugänglich und nach Osten ausgerichtet. Die Wohnung im dritten Obergeschoß verfügt zusätzlich über einen West-Balkon. Ebenfalls von der Küche zugänglich ist die Abstellkammer mit Fenster.
Die Wohnungen sind mit Etagenheizungen (Gas) und mit Warmwasserbereitung (Elektro) ausgestattet. Die Räume werden mit Plattenheizkörpern beheizt.
Der begrünte Hof mit Zufahrt bietet Platz für die Errichtung von sechs Stellplätzen.
Das ca. 80 m² große Dachgeschoß ist ausbaubar.
Ca. 400 m² Wohnfläche sind derzeit im Bestand.
Sonstige Informationen
Die Objektbeschreibung beruht ganz oder zum Teil auf Angaben des Eigentümers und ist Vor-Ort nachprüfbar. Für die Richtigkeit oder Vollständigkeit übernehmen wir keine Gewähr. Jegliche Haftung schließen wir aus.
Bei Interesse hinterlassen Sie bitte Ihre Kontaktdaten in unseren Portalen. So können wir uns mit Ihnen in Verbindung setzen.
Ihr Interesse ist geweckt? Weitere Informationen zu diesem Angebot erhalten Sie gerne unter: +49 (361) 663 95 644.
Ihr Immobilienexperte FALC Erfurt-Süd am Dalbergsweg 1 im Pressklub Erdgeschoß - Eingang Puschkinstraße.
Wir bieten nicht nur eine kostenlose Hotline, sondern auch einen Service am Wochenende.
Bei Interesse geben Sie bitte immer Ihre vollständigen Kontaktdaten über unsere Portale an. Nur so können wir Ihre geschätzte Anfrage berücksichtigen.
Sie haben auf Anhieb nichts gefunden oder suchen Sie etwas ganz bestimmtes?
Teilen Sie uns einfach mit was Sie suchen und wonach wir für Sie die Augen offen halten dürfen. Profitieren Sie von den Vorteilen einer professionellen Maklersuche. Der Suchauftrag ist unverbindlich.
Auf unser Homepage www.falcimmo.de unter der Rubrik Immobiliensuche halten wir für Sie zum einen den Onlinesuchauftrag bereit, haben aber auch viele andere nützliche Informationen für Kaufinteressenten und Eigentümer.
Bei Interesse hinterlassen Sie bitte Ihre Kontaktdaten in unseren Portalen. So können wir uns mit Ihnen in Verbindung setzen.
Ihr Interesse ist geweckt? Weitere Informationen zu diesem Angebot erhalten Sie gerne unter: +49 (361) 663 95 644.
Ihr Immobilienexperte FALC Erfurt-Süd am Dalbergsweg 1 im Pressklub Erdgeschoß - Eingang Puschkinstraße.
Wir bieten nicht nur eine kostenlose Hotline, sondern auch einen Service am Wochenende.
Bei Interesse geben Sie bitte immer Ihre vollständigen Kontaktdaten über unsere Portale an. Nur so können wir Ihre geschätzte Anfrage berücksichtigen.
Sie haben auf Anhieb nichts gefunden oder suchen Sie etwas ganz bestimmtes?
Teilen Sie uns einfach mit was Sie suchen und wonach wir für Sie die Augen offen halten dürfen. Profitieren Sie von den Vorteilen einer professionellen Maklersuche. Der Suchauftrag ist unverbindlich.
Auf unser Homepage www.falcimmo.de unter der Rubrik Immobiliensuche halten wir für Sie zum einen den Onlinesuchauftrag bereit, haben aber auch viele andere nützliche Informationen für Kaufinteressenten und Eigentümer.
Lage des Objektes
Arnstadt liegt in Thüringen ca. 20 Kilometer südlich der Landeshauptstadt Erfurt und ist der älteste Ort Thüringens.
Das Haus finden Sie nördlich des Stadtzentrums in der Nähe des Hauptbahnhofs. Dieser ist in ca. drei Minuten zu Fuß erreichbar. Mit Bäumen begrünte Straßen sorgen für ein angenehmes Wohnklima.
Einkauf, Bildung, Kultur und Genuss sind bequem und zu Fuß gut zu erreichen.
Arnstadt hat neben einer funktionierenden Infrastruktur auch eine sehr aktive Kulturszene. Weit über die Grenzen hinaus bekannt sind der Bachadvent, das Stadtfest.
Arnstadt ist sehr gut über die Autobahnen A4 und A71, sowie über die Landesstraße 3004 erreichbar. In ca. 20 Autominuten erreichen Sie Erfurt.
Vom Hauptbahnhof Arnstadt erreicht man zahlreiche Thüringer Städte und Gemeinden. Es besteht eine eng getaktete Zug-Anbindung zur Landeshauptstadt Erfurt.
Das Haus finden Sie nördlich des Stadtzentrums in der Nähe des Hauptbahnhofs. Dieser ist in ca. drei Minuten zu Fuß erreichbar. Mit Bäumen begrünte Straßen sorgen für ein angenehmes Wohnklima.
Einkauf, Bildung, Kultur und Genuss sind bequem und zu Fuß gut zu erreichen.
Arnstadt hat neben einer funktionierenden Infrastruktur auch eine sehr aktive Kulturszene. Weit über die Grenzen hinaus bekannt sind der Bachadvent, das Stadtfest.
Arnstadt ist sehr gut über die Autobahnen A4 und A71, sowie über die Landesstraße 3004 erreichbar. In ca. 20 Autominuten erreichen Sie Erfurt.
Vom Hauptbahnhof Arnstadt erreicht man zahlreiche Thüringer Städte und Gemeinden. Es besteht eine eng getaktete Zug-Anbindung zur Landeshauptstadt Erfurt.
Anbieter kontaktieren
Anbieter
FALC Immobilien GmbH & Co. KG
Humperdickstr. 3
53773 Hennef (Sieg)
Kontakt
| Telefon | +49 361 66395644 |
| Mobil | +49 151 17385338 |
| Fax | 02242 - 90 10 319 |
| Website | www.falcimmo.de |
