Top Eneriesparhaus in schöner Lage
659.000 €
Kaufpreis
160 m²
Wohnfläche
4
Zimmer
immobilien.de Nr.: 8450889
Objektnummer: BV1016051
Preise & Kosten
| Kaufpreis | 659.000 € |
| Nebenkosten | keine Angabe |
Größe & Zustand
| Wohnfläche | 160 m² |
| Grundstücksfläche | 420 m² |
| Zimmer | 4 |
| Baujahr | 2024 |
| Verfügbar ab | keine Angabe |
Energie
| Energietyp | KfW-40 |
| Heizungsart | Zentralheizung |
| Energieträger/Befeuerung | Luft-Wärme-Pumpe |
Objektbeschreibung
Anfragen bitte per Telefon.
Frank Kress 017661370032
Objektbeschreibung
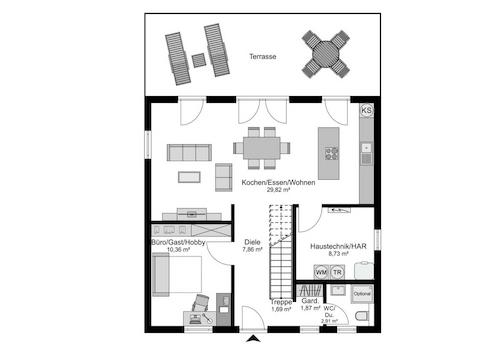
Der Hausentwurf bietet in der Architektur die moderne Interpretation einer 2-geschossigen Stadtvilla mit Walmdach. Auf 146 m² Raumfläche lässt sich eine komfortable Wohnsituation realisieren. An der Südseite sind sechs bodentiefe Fenster-/Terrassentürelemente geplant, die viel Licht ins Haus bringen. Mit knapp 37 m² ist der offene Wohn-/Ess- und Kochbereich angelegt. Die Küche kann mit einer Kochtheke geplant werden. Ein Zusatzraum im Erdgeschoss kann als Gäste-/Büro- oder Schlafzimmer genutzt werden. Ein Bad mit einer optionalen Dusche, eine Diele mit Garderobennische und ein Haustechnikraum komplettieren das Erdgeschoss.
Der Grundriss bietet den Komfort bei Krankheit oder im Alter auf einer Etage wohnen zu können.
Im Obergeschoss der Stadtvilla sind zwei schöne Kinderzimmer geplant, ein Elternbereich mit Ankleide und ein geräumiges Familienbad. Die Lage der Treppe und des Haustechnikraumes sind beim Frühlingszauberangebot fixiert.
Objektart: Stadtvilla, 2-geschossig
Dachform: Walmdach
Netto-Raumfläche: 146,44 m²
Aktionshaus Frühlingszauber CITY XL
Frank Kress 017661370032
Objektbeschreibung
Der Hausentwurf bietet in der Architektur die moderne Interpretation einer 2-geschossigen Stadtvilla mit Walmdach. Auf 146 m² Raumfläche lässt sich eine komfortable Wohnsituation realisieren. An der Südseite sind sechs bodentiefe Fenster-/Terrassentürelemente geplant, die viel Licht ins Haus bringen. Mit knapp 37 m² ist der offene Wohn-/Ess- und Kochbereich angelegt. Die Küche kann mit einer Kochtheke geplant werden. Ein Zusatzraum im Erdgeschoss kann als Gäste-/Büro- oder Schlafzimmer genutzt werden. Ein Bad mit einer optionalen Dusche, eine Diele mit Garderobennische und ein Haustechnikraum komplettieren das Erdgeschoss.
Der Grundriss bietet den Komfort bei Krankheit oder im Alter auf einer Etage wohnen zu können.
Im Obergeschoss der Stadtvilla sind zwei schöne Kinderzimmer geplant, ein Elternbereich mit Ankleide und ein geräumiges Familienbad. Die Lage der Treppe und des Haustechnikraumes sind beim Frühlingszauberangebot fixiert.
Objektart: Stadtvilla, 2-geschossig
Dachform: Walmdach
Netto-Raumfläche: 146,44 m²
Aktionshaus Frühlingszauber CITY XL
Ausstattung
| Bad | 2 |
STREIF-Häuser sind Energiesparhäuser. Die Außenwände im Passiv-Haus-Standard und eine sparsame Heiztechnik mit integrierter Wohnraumlüftung und Wärmerückgewinnung, garantieren einen geringen Energieverbrauch und ein fantastisches Raumklima, das insbesondere Allergiker aufatmen lässt.
STREIF Leistungen sind MEHR WERT - schon im Grundpreis enthalten!
- 16-monatige Festpreisgarantie
- Energieeffizienzhaus KfW 40 EE im Standard
- Inkl. individuelle Grundrissgestaltung und Raumaufteilung
- Inkl. Fundamentplatte
- Inkl. STREIF-Luft-Luft-Wärmepumpe mit integrierter
Lüftungsanlage mit Wärmerückgewinnung
- Inkl. Haustür von KERA und Fenster von Porta/Kömmerling
- Inkl. Massivholz-Geschosstreppe aus eigener Produktion
- Inkl. Elektroinstallation
- Inkl. Baubetreuung u.v.m.
Die hohe Wertigkeit und Langlebigkeit eines STREIF-Energiespar-Hauses wird durch zahlreiche Auszeichnungen, Qualität- und Gütesiegel unabhängiger Institute und Verbände dokumentiert.
Der Angebotspreis ist inklusive Grundstück und bezieht sich auf die Standard-Ausbaustufe Fast-Fertig+. Malerarbeiten, Bodenbeläge, können auf Wunsch von Streif ausgeführt werden oder sind Eigenleistung.
Baunebenkosten fallen zuzüglich an.
Der Verkauf des Grundstücks erfolgt über einen unserer Netzwerkpartner.
Bilder können evtl. Anbauteile, Carports, Balkone, Gauben usw. zeigen, die nicht im Angebotspreis enthalten sind. Änderungen und Irrtümer vorbehalten.
STREIF Leistungen sind MEHR WERT - schon im Grundpreis enthalten!
- 16-monatige Festpreisgarantie
- Energieeffizienzhaus KfW 40 EE im Standard
- Inkl. individuelle Grundrissgestaltung und Raumaufteilung
- Inkl. Fundamentplatte
- Inkl. STREIF-Luft-Luft-Wärmepumpe mit integrierter
Lüftungsanlage mit Wärmerückgewinnung
- Inkl. Haustür von KERA und Fenster von Porta/Kömmerling
- Inkl. Massivholz-Geschosstreppe aus eigener Produktion
- Inkl. Elektroinstallation
- Inkl. Baubetreuung u.v.m.
Die hohe Wertigkeit und Langlebigkeit eines STREIF-Energiespar-Hauses wird durch zahlreiche Auszeichnungen, Qualität- und Gütesiegel unabhängiger Institute und Verbände dokumentiert.
Der Angebotspreis ist inklusive Grundstück und bezieht sich auf die Standard-Ausbaustufe Fast-Fertig+. Malerarbeiten, Bodenbeläge, können auf Wunsch von Streif ausgeführt werden oder sind Eigenleistung.
Baunebenkosten fallen zuzüglich an.
Der Verkauf des Grundstücks erfolgt über einen unserer Netzwerkpartner.
Bilder können evtl. Anbauteile, Carports, Balkone, Gauben usw. zeigen, die nicht im Angebotspreis enthalten sind. Änderungen und Irrtümer vorbehalten.
Kontakt
| Telefon | +49 6101 580015 |
| Mobil | +49 176 61370032 |
| Website | www.streif.de |
