BAUPLATZ ZU VERKAUFEN!!!
150.000 €
Kaufpreis
immobilien.de Nr.: 7977909
Objektnummer: 143044
Preise & Kosten
| Kaufpreis | 150.000 € |
| Nebenkosten | keine Angabe |
| Maklerprovision | 4,76 % (inkl. MwSt.) |
Größe & Zustand
| Grundstücksfläche | 179 m² |
| Verfügbar ab | sofort |
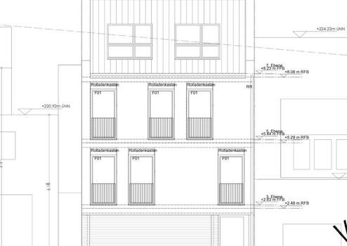
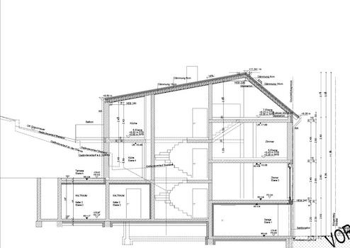
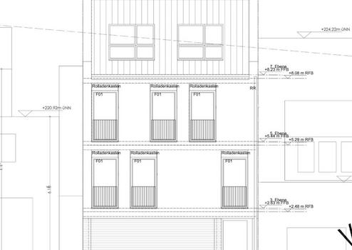
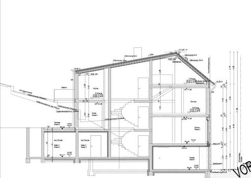
Objektbeschreibung
- Der Bauplatz ist vorbereitet.
- Der Hang ist gesichert.
- Die Baugenehmigung ist erteilt.
- Eine Planung ist vorhanden, dies muss aber nicht übernommen werden.
- Ein- bis Zweifamilienhaus möglich.
Weitere Angebote unter www.GARANT-IMMO.de
- Der Hang ist gesichert.
- Die Baugenehmigung ist erteilt.
- Eine Planung ist vorhanden, dies muss aber nicht übernommen werden.
- Ein- bis Zweifamilienhaus möglich.
Weitere Angebote unter www.GARANT-IMMO.de
Kontakt
| Telefon | 07141/97 458-0 |
| Fax | 07141/97 458-22 |
| Website | www.garant-immo.de |
