Repräsentative Büro-/Wohnräume in Gründerzeithaus zentral Nähe Hbf von Privat zu vermieten

Prinz-Albert-Strasse 13 53113 Bonn, Nordrhein-Westfalen
Frei ab: 01.09.2026
1.750 € Kaltmiete (netto)
12,24 € Preis/m² ca.
Bürofläche
143 m²
Etage
0
Balkon
Terrasse

Mietpreis & Nebenkosten

Kaltmiete (netto)1.750 €
Nebenkosten Keine Angabe
Kaution 5.000 €
Maklerprovisionkeine Provision, courtagefrei

Wohnfläche, Grundstück & Bausubstanz

Gesamtfläche143 m²
Bürofläche143 m²
Stockwerk0
Baujahr1896
Verfügbar ab 01.09.2026
ZustandGepflegt

Beschreibung der Immobilie

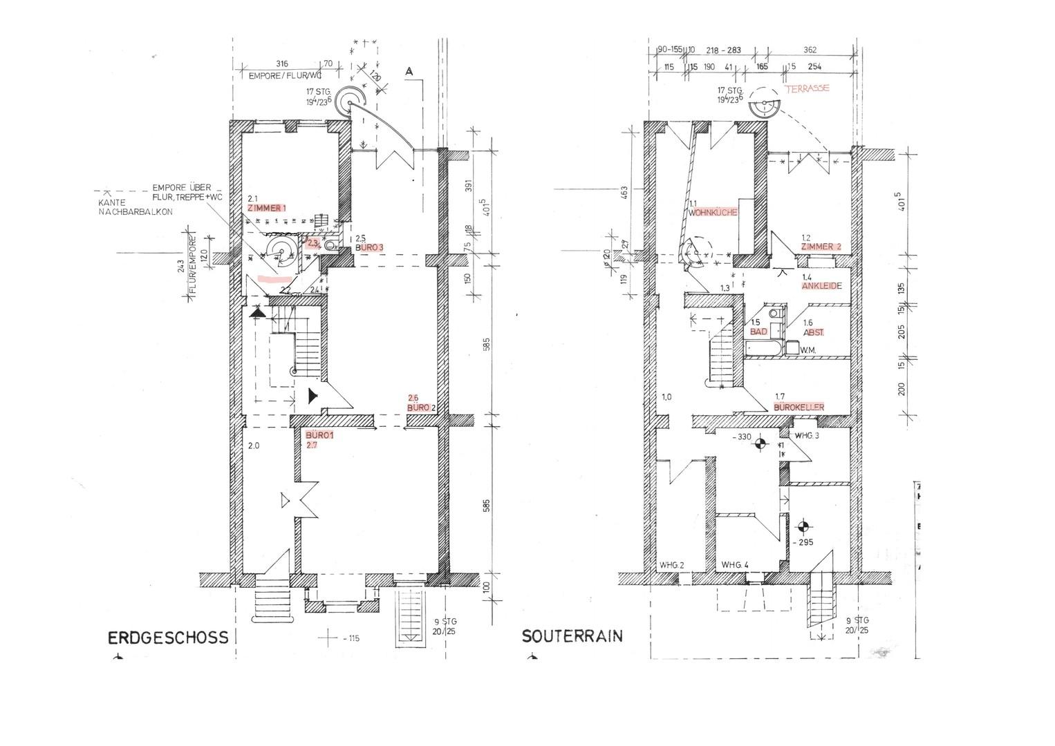
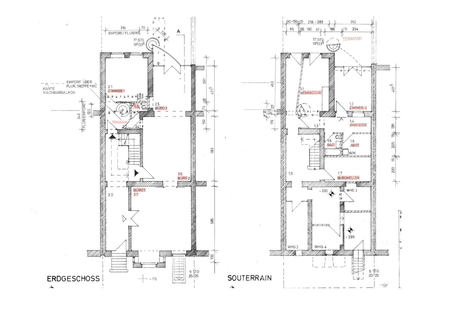
Die repräsentativen Büro- oder Praxisräume im Erdgeschoss und dem zum Garten hin ebenerdigen Untergeschoss des Denkmalgeschützten Gründerzeithauses eignen sich für vielfältige Nutzung, auch in Kombination mit Wohnen, da ein Teil der Räume auch wahlweise separat zugänglich sind. Das Haus ist zentral gelegen, nur wenige Schritte vom Bonner Hauptbahnhof entfernt und bietet mit seinen hohen Stuckdecken, den Profilierten Türen, dem alten Parkettboden und großzügigem Entree und Treppenhaus den Charme der Gründerzeit. Das Haus wurde 1998 vom Eigentümer, einem Architektenpaar, komplett liebevoll saniert und Altes mit zurückhaltenden neuen, detailgestalteten Elementen ergänzt.
Es gibt neben einem kleinen Duschbad im Erdgeschoss ein weiteres Bad, sowie einen Flur und Abstellraum im Untergeschoss. Die Küche und ein separater Teamraum sind zur Terrasse gelegen, die im Sommer zu erholsamen Pausen einlädt.
Der Garten auf der Gebäuderückseite bietet auch vom Erdgeschoss einen grünen Ausblick und ist über eine Außentreppe zusätzlich erreichbar.
Die jetzigen Nutzer sind so expandiert, dass die Räume leider nicht mehr ausreichen. Eine Übernahme von Teilen der Einrichtung ist denkbar. Auch ein früherer Übernahmezeitpunkt ist ggfs. möglich.
Der Mietpreis ist netto, je nach Nutzung zzgl der gesetzlichen Mwst.
Bitte senden Sie uns eine aussagekräftige Anfrage über Ihr Vorhaben. Gerne beantworte ich Ihre Fragen per mail oder rufe Sie zurück.

Ausstattungsmerkmale

Bad (Ausstattung)Wanne
BodenFliesen, Parkett
Balkone0
Terrassen1
Terrasse, Vollbad, Gäste-WC, Parkett, Fliesen, Sonstiges (s. Text)

Energie

Heizungsart Zentralheizung
Energieträger/Befeuerung Gas

Karte wird geladen...
Prinz-Albert-Strasse 13
53113 Bonn – Nordrhein-Westfalen

Lage & Infrastruktur

Das Objekt ist zentral am Bonner Hbf gelegen mit öffentlichen Verkehrsmitteln unmittelbar gut erreichbar. Alle Läden und Einrichtungen des täglichen Bedarfs sind in fußläufiger Entfernung.
Infrastruktur (im Umkreis von 5 km):
Apotheke, Lebensmittel-Discount, Allgemeinmediziner, Kindergarten, Grundschule, Hauptschule, Realschule, Gymnasium, Gesamtschule, Öffentliche Verkehrsmittel

Sonstige Informationen

Heizungsart: Zentralheizung
Energieträger: Gas


Makleranfragen nicht erwünscht. Nach § 7 UWG sind unaufgeforderte Kontaktaufnahmen durch Makler ohne ausdrückliche Einwilligung des Empfängers verboten!

ohne-makler (OM) ist weder Anbieter noch Vermittler der Immobilie. OM betreibt eine Plattform für Immobilieneigentümer, die unter anderem die gleichzeitige Veröffentlichung einzelner Inserate auf mehreren Immobilienportalen ermöglicht. Die Inhalte dieser Inserate werden ausschließlich von Dritten verantwortet. Für die Richtigkeit, Vollständigkeit oder Rechtmäßigkeit der Angaben übernimmt OM keine Haftung. Hinweise auf mögliche Rechtsverstöße können jederzeit gemeldet werden und werden nach Prüfung umgehend bearbeitet.
Ansprechpartner/in: Privat von U.R.Moos
OM PropTech GmbH
Humboldtstraße 25a, 21509 Glinde

Weitere Angebote in Bonn