LAGER & BUERO.flaeche mit 460 m² in Altlindenau

04177 Leipzig
7,50 € Preis/m²
Bürofläche
460 m²

Mietpreis & Nebenkosten

Miete für das ObjektAuf Anfrage
Maklerprovision provisionsfrei

Wohnfläche, Grundstück & Bausubstanz

Bürofläche460 m²
Büroteilfläche460 m²
Fläche teilbar ab460 m²
Verfügbar ab Keine Angabe

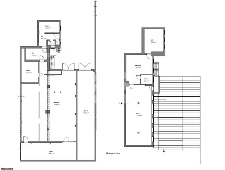
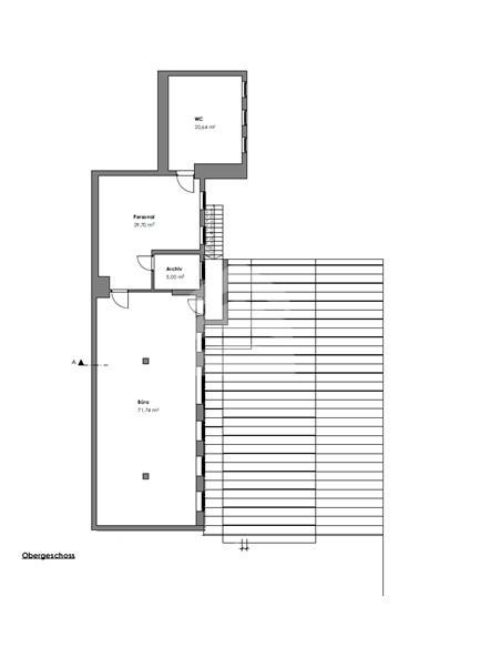
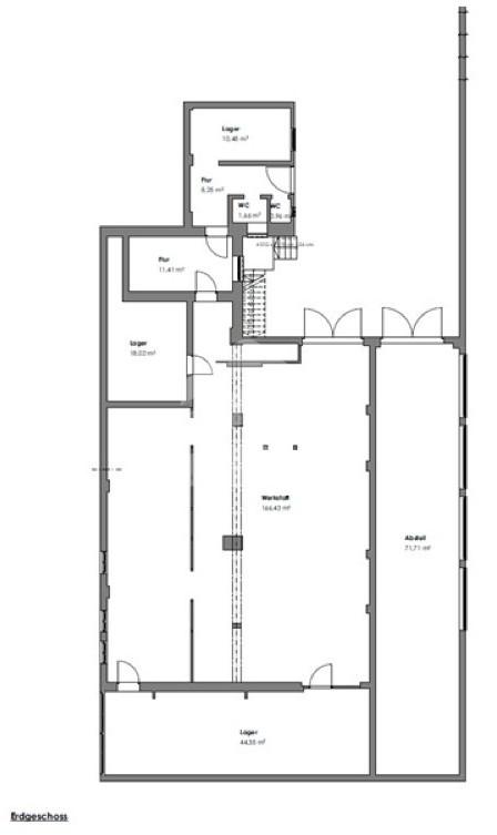
Beschreibung der Immobilie

Die zweigeschossige Gewerbehalle wurde um 1890 auf einem ca. 475 m² großen Grundstück errichtet und verfügt über eine Gesamtnutzfläche von ca. 460 m². Das Objekt befindet sich in einem teilsanierten Zustand und steht teilweise unter Denkmalschutz. Die Beheizung erfolgt über eine Ölheizung. Aktuell ist die Fläche an einen gewerblichen Nutzer vermietet; der Mietvertrag besteht unbefristet. Ein Energieausweis wurde vom Eigentümer bereits beantragt.

Karte wird geladen...
04177 Leipzig

Lage & Infrastruktur

Die Queckstraße 21a liegt im aufstrebenden Leipziger Stadtteil Altlindenau und bietet eine ideale Mischung aus urbaner Nähe und ruhiger Seitenstraßenlage. Das Umfeld ist geprägt von einer dichten Infrastruktur mit vielfältigen Dienstleistern, Einzelhandel und gastronomischen Angeboten. Durch die sehr gute Anbindung an den öffentlichen Nahverkehr sowie die kurze Distanz zur Innenstadt und zum Hauptbahnhof ist der Standort besonders attraktiv für Gewerbetreibende, die Wert auf schnelle Erreichbarkeit und ein lebendiges Umfeld legen.

Sonstige Informationen

Der Mietpreis richtet sich nach Ausstattung, Lage im Gebäude und Vertragslaufzeit und liegt zwischen 7,50EUR/ m² und 9,50EUR/ m².
Flächenanmietung leicht gemacht?
Bitte sprechen Sie uns an, gern stellen wir Ihnen eine Auswahl geeigneter Büroflächenangebote zusammen. Für Fragen, ein persönliches Gespräch oder auch eine persönliche Terminvereinbarung stehen wir Ihnen gern telefonisch unter 0341 | 5643000 zur Verfügung.
Ansprechpartner/in: Team Vermietung
BUERO.IMMOBILIEN GmbH & Co KG
Markt 9, 04109 Leipzig

Weitere Angebote in Leipzig