BUERO.flächen nahe des Schkeuditzer Kreuz/Flughafen

Armstrongstraße 11 04435 Schkeuditz
5,95 € Preis/m²
Bürofläche
79 m²

Mietpreis & Nebenkosten

Miete für das ObjektAuf Anfrage
Maklerprovision provisionsfrei

Wohnfläche, Grundstück & Bausubstanz

Bürofläche79 m²
Büroteilfläche79 m²
Fläche teilbar ab79 m²
Verfügbar ab Keine Angabe

Beschreibung der Immobilie

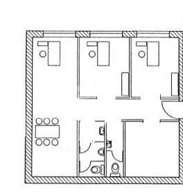
Die 1992/93 errichteten zweigeschossigen kleineren Bürogebäude mit jeweils 316 m² setzen sich aus 4 Einheiten mit je ca. 79,00 m² zusammen. Die Mietbereiche können entsprechend des benötigten Raumprofils ausgebaut und ausgestattet werden. Die Einheiten im Erdgeschoss haben eine Verbindung zu den Hallenflächen. Das Hauptgebäude verfügt insgesamt über 1.500 m² Mietfläche.

Die Büroflächen verfügen über folgende Ausstattungsmerkmale:
– großzügiger Küchenbereich
- getrennte Sanitäranlage
– elektrischer Sonnenschutz in allen Büroräumen der Süd- und Westseite
- flexible Grundrissgestaltung durch Trockenbauweise


Vor dem Gebäude stehen zahlreiche Stellplätze zur Anmietung Verfügung.

Karte wird geladen...
Armstrongstraße 11
04435 Schkeuditz

Lage & Infrastruktur

Das ''Gewerbegebiet Glesien'' befindet sich in einem neu errichteten Gewerbegebiet am Flughafen Leipzig/Halle, ca. 1km nördlich der Flughafenlandebahn mit direkter Anbindung an das Autobahnkreuz A9/A14 (Schkeuditzer Kreuz). Dieser Standort eignet sich als hervorragender Verkehrsknotenpunkt für die Erschließung der Region Mitteldeutschlands. Nahe des Güterverkehrszentrum, der Werke von BMW und Porsche und des DHL-Frachtzentrums am Flughafen gelegen, ist dies auch ein idealer Standort für Logistikunternehmen und Automobilzulieferindustrie.

Sonstige Informationen

Der Mietpreis liegt ca. zwischen 5,95EUR/m² - 7,59EUR/m² zzgl. Nebenkosten und richtet sich nach Mietvertragslaufzeit, Ausstattungsmerkmalen und Lage im Gebäude. Gern unterbreiten wir Ihnen Ihr persönliches Mietangebot.

Büroanmietung leicht gemacht?

Bitte sprechen Sie uns an, gern stellen wir Ihnen eine Auswahl geeigneter Büroflächenangebote zusammen. Für Fragen, ein persönliches Gespräch oder auch eine persönliche Terminvereinbarung stehen wir Ihnen gern telefonisch unter 0341-5643000 zur Verfügung.
Ansprechpartner/in: Team Vermietung
BUERO.IMMOBILIEN GmbH & Co KG
Markt 9, 04109 Leipzig

Weitere Angebote in Flughafen Leipzig/Halle