Gewerbegrundstück in Top-Sichtlage bei Lüneburg (Artlenburger Landstraße)
429.000 €
Kaufpreis
immobilien.de Nr.: 9529389
Objektnummer: 412072
Kaufpreis
| Kaufpreis | 429.000 € |
| Maklerprovision | keine Provision, courtagefrei |
Wohnfläche, Grundstück & Bausubstanz
| Grundstücksfläche | 2.403 m² |
| Verfügbar ab | sofort |
Beschreibung der Immobilie
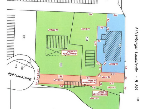
Zum Verkauf steht ein hochinteressantes Gewerbebaugrundstück mit einer Gesamtfläche von ca. 2.403 m² im etablierten und stark frequentierten Gewerbegebiet von Adendorf. Die Lage überzeugt durch ihre direkte Nachbarschaft zu Aldi und Burger King und bietet damit eine ausgezeichnete Sichtbarkeit sowie eine hohe Kundenfrequenz.
Die Zufahrt erfolgt bequem über die Artlenburger Landstraße, eine der wichtigsten Verkehrsachsen der Region, wodurch eine hervorragende Erreichbarkeit für Kunden, Lieferanten und Mitarbeiter gewährleistet ist.
Das Grundstück eignet sich ideal für Gewerbebetriebe aus den Bereichen Handel, Handwerk, Logistik oder Produktion. Laut Bebauungsplan ist eine bebaubare Fläche von ca. 600 m² möglich, was ausreichend Spielraum für eine effiziente und wirtschaftliche Bebauung bietet.
Dank der attraktiven Lage, der guten Verkehrsanbindung und der flexiblen Nutzungsmöglichkeiten stellt dieses Grundstück eine hervorragende Investitionsmöglichkeit für Unternehmen dar, die einen zukunftsfähigen Standort im wirtschaftlich starken Umfeld von Adendorf suchen.
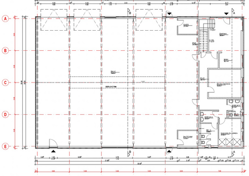
Hier ein Beispiel für Flächenaufteilung:
•200 m² Bürofläche verteilt auf 2 Etagen – ideal für moderne Arbeitsplätze, Besprechungsräume oder Showrooms.
•500 m² Lagerfläche mit optimaler Nutzbarkeit für Logistik, Produktion oder Warenbevorratung.
- ca. 500 m² Freifläche
- z.B. 10 Stellplätze
Die Zufahrt erfolgt bequem über die Artlenburger Landstraße, eine der wichtigsten Verkehrsachsen der Region, wodurch eine hervorragende Erreichbarkeit für Kunden, Lieferanten und Mitarbeiter gewährleistet ist.
Das Grundstück eignet sich ideal für Gewerbebetriebe aus den Bereichen Handel, Handwerk, Logistik oder Produktion. Laut Bebauungsplan ist eine bebaubare Fläche von ca. 600 m² möglich, was ausreichend Spielraum für eine effiziente und wirtschaftliche Bebauung bietet.
Dank der attraktiven Lage, der guten Verkehrsanbindung und der flexiblen Nutzungsmöglichkeiten stellt dieses Grundstück eine hervorragende Investitionsmöglichkeit für Unternehmen dar, die einen zukunftsfähigen Standort im wirtschaftlich starken Umfeld von Adendorf suchen.
Hier ein Beispiel für Flächenaufteilung:
•200 m² Bürofläche verteilt auf 2 Etagen – ideal für moderne Arbeitsplätze, Besprechungsräume oder Showrooms.
•500 m² Lagerfläche mit optimaler Nutzbarkeit für Logistik, Produktion oder Warenbevorratung.
- ca. 500 m² Freifläche
- z.B. 10 Stellplätze
Sonstige Informationen
Verkauft wird die grün markierte Fläche lt. Lageplan mit Wegerecht.
ohne-makler (OM) ist weder Anbieter noch Vermittler der Immobilie. OM betreibt eine Plattform für Immobilieneigentümer, die unter anderem die gleichzeitige Veröffentlichung einzelner Inserate auf mehreren Immobilienportalen ermöglicht. Die Inhalte dieser Inserate werden ausschließlich von Dritten verantwortet. Für die Richtigkeit, Vollständigkeit oder Rechtmäßigkeit der Angaben übernimmt OM keine Haftung. Hinweise auf mögliche Rechtsverstöße können jederzeit gemeldet werden und werden nach Prüfung umgehend bearbeitet.
ohne-makler (OM) ist weder Anbieter noch Vermittler der Immobilie. OM betreibt eine Plattform für Immobilieneigentümer, die unter anderem die gleichzeitige Veröffentlichung einzelner Inserate auf mehreren Immobilienportalen ermöglicht. Die Inhalte dieser Inserate werden ausschließlich von Dritten verantwortet. Für die Richtigkeit, Vollständigkeit oder Rechtmäßigkeit der Angaben übernimmt OM keine Haftung. Hinweise auf mögliche Rechtsverstöße können jederzeit gemeldet werden und werden nach Prüfung umgehend bearbeitet.
Karte wird geladen...
Objektstandort
21339 Lüneburg
- Niedersachsen
Lage & Infrastruktur
Objektstandort
21339 Lüneburg
- Niedersachsen
Die Gewerbefläche befindet sich in Adendorf, direkt an der Artlenburger Landstraße (B4) – einer der wichtigsten Verkehrsachsen in der Region. Diese Lage bietet Ihnen eine exzellente Sichtbarkeit sowie eine hervorragende Verkehrsanbindung für Kunden, Mitarbeiter und Lieferanten.
•Anbindung: Über die Bundesstraße erreichen Sie in wenigen Minuten die Hansestadt Lüneburg sowie die Autobahn A39 mit direkter Verbindung nach Hamburg. Auch die Elbmarsch und das nördliche Niedersachsen sind optimal erschlossen.
•Umfeld: Das Gewerbegebiet in Adendorf ist geprägt von einer Mischung aus Dienstleistern, Handels- und Handwerksbetrieben und bietet somit ein attraktives und belebtes Geschäftsumfeld.
•Infrastruktur: Im direkten Umfeld finden sich Einkaufsmöglichkeiten, Gastronomie und Dienstleistungsbetriebe, die den Standort zusätzlich aufwerten.
•Vorteil: Die gut frequentierte Lage an der B4 sorgt für hohe Sichtbarkeit und ein professionelles Umfeld für Ihr Unternehmen.
Infrastruktur (im Umkreis von 5 km):
Apotheke, Lebensmittel-Discount, Allgemeinmediziner, Kindergarten, Grundschule, Hauptschule, Realschule, Gymnasium, Gesamtschule, Öffentliche Verkehrsmittel
•Anbindung: Über die Bundesstraße erreichen Sie in wenigen Minuten die Hansestadt Lüneburg sowie die Autobahn A39 mit direkter Verbindung nach Hamburg. Auch die Elbmarsch und das nördliche Niedersachsen sind optimal erschlossen.
•Umfeld: Das Gewerbegebiet in Adendorf ist geprägt von einer Mischung aus Dienstleistern, Handels- und Handwerksbetrieben und bietet somit ein attraktives und belebtes Geschäftsumfeld.
•Infrastruktur: Im direkten Umfeld finden sich Einkaufsmöglichkeiten, Gastronomie und Dienstleistungsbetriebe, die den Standort zusätzlich aufwerten.
•Vorteil: Die gut frequentierte Lage an der B4 sorgt für hohe Sichtbarkeit und ein professionelles Umfeld für Ihr Unternehmen.
Infrastruktur (im Umkreis von 5 km):
Apotheke, Lebensmittel-Discount, Allgemeinmediziner, Kindergarten, Grundschule, Hauptschule, Realschule, Gymnasium, Gesamtschule, Öffentliche Verkehrsmittel
Kontaktanfrage senden
Über den Anbieter
OM PropTech GmbH
Humboldtstraße 25a
21509 Glinde
Kontakt
| Telefon | - |
| Fax | - |
| Website | www.ohne-makler.net |
Ansprechpartner/in
Angebot vom Eigentümer
Weitere Angebote des Anbieters
20
108qm moderne 4,5 Zimmer Masionettewohnung Zentrumsnah ...
Wohnung
27793 Wildeshausen
Stadtnahe Wohnung mit schönem Balkon (Lilienthalstraße 19) für Eigennutzer oder für Kapitalanleger zur Vermietung. Direkt vom Eigentümer also ohne Maklercourtage. Wohnung Nr. 4 (Es stehen weitere Wohnungen in dem ...
239.000 €
Kaufpreis
108 m²
Wohnfläche
4,5
Zimmer
14
Moderne 3 Zimmer Wohung im Pelikanviertel
Wohnung
30177 Hannover
Die sonnendurchflutete 3-Zimmer Wohnung mit luftig-hohen Altbaudecken befindet sich im einem Wohn- und Geschäftshauses in ruhiger und dennoch zentraler Lage. Sie kann ab dem 01.05.2026 bezogen werden. Das Objekt ...
1.310 €
Kaltmiete (netto)
97 m²
Wohnfläche
3
Zimmer
8
60qm mit Fußbodenheizung, großer Balkon in guter ...
Wohnung
58511 Lüdenscheid
Fußbodenheizung, eigener Balkon & beste Lage – Ihr neues Zuhause wartet! Diese charmante Wohnung im gepflegten Mehrfamilienhaus ist perfekt für Singles, Paare oder kleine Familien, die Komfort und Ruhe schätzen. ...
540 €
Kaltmiete (netto)
60 m²
Wohnfläche
2,5
Zimmer
10
Großzügige Doppelhaushälfte in schöner Lage am Waldrand ...
Haus
52159 Roetgen
Die Immobilie wurde im Jahr 2000 in Massivbauweise errichtet und seitdem kontinuierlich gepflegt. Das Haus besitzt vier zum Teil sehr großzügige Zimmer, Küche, Diele, zwei Bäder, Gäste-WC, Gaszentralheizung mit ...
469.000 €
Kaufpreis
142,3 m²
Wohnfläche
4
Zimmer
7
73qm mit Fußbodenheizung und eigener Dachterrasse in ...
Wohnung
58511 Lüdenscheid
Fußbodenheizung, modernisiertes Bad, eigene Dachterrasse & beste Lage – Ihr neues Zuhause wartet! Diese charmante Wohnung im gepflegten Mehrfamilienhaus ist perfekt für Singles, Paare oder kleine Familien, die Komfort ...
584 €
Kaltmiete (netto)
73 m²
Wohnfläche
3
Zimmer