Repräsentativer Büro-/Showroom in Toplage Düsseldorf-Golzheim
2.200 €
Kaltmiete (netto)
immobilien.de Nr.: 9528668
Objektnummer: 429757
Mietpreis & Nebenkosten
| Kaltmiete (netto) | 2.200 € |
| Nebenkosten | 250 € |
| Heizkosten | 250 € |
| Maklerprovision | keine Provision, courtagefrei |
| Kaution | 6.600 € |
Wohnfläche, Grundstück & Bausubstanz
| Gesamtfläche | 130 m² |
| Bürofläche | 130 m² |
| Verfügbar ab | 01.05.2026 |
| Zustand | Gepflegt |
Energie
| Heizungsart | Fußbodenheizung |
| Energieträger/Befeuerung | Gas |
Beschreibung der Immobilie
Wir suchen einen Nachmieter für unseren repräsentativen Büro- bzw. Showroom in bester Lage auf der Kaiserswerther Straße in Düsseldorf-Golzheim – nur wenige Schritte vom Rhein entfernt.
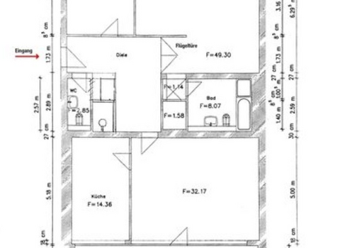
Die Fläche befindet sich in repräsentativer Lage auf der Kaiserswerther Straße und eignet sich ideal als Büro, Praxis oder Showroom. Die Kombination aus großzügigem Grundriss, bodentiefen Fensterflächen und hochwertiger Ausstattung schafft ein modernes, lichtdurchflutetes Arbeitsumfeld. Es gibt einen einladenden Flur, ein kleinen Raum, sowie 2 große Räume mit hervorragender Beleuchtung. Die Küche und die beiden Bäder sind neuwertig und in bestem Zustand.
Objektdaten
• Fläche: ca. 130 m²
• Etage: 1. Obergeschoss
• Miete: 2.200 € / Monat
• Nebenkosten: 500 € / Monat
• Kaution: 5.000 €
• Verfügbar ab: 01.04.2026
• Provisionsfrei
• 2 Tiefgaragenstellplätze (je 150 € / Monat)
Ausstattung & Highlights
• Nur wenige Gehminuten zum Rhein
• Repräsentative Lage in Düsseldorf-Golzheim
• Straßenbahn- und Bushaltestelle direkt vor dem Haus
• Fußweg zu ÖPNV: ca. 1 Minute
• Hauptbahnhof ca. 10 Minuten
• Autobahn ca. 5 Minuten
• Flughafen ca. 15 Minuten
• Gepflegter Zustand, letzte Modernisierung 2015
• Gehoben ausgestattete, vollwertige moderne Küche
• Bad + separates Gästebad
• Hochwertiger, pflegeleichter Steinboden
• Fußbodenheizung
• Bodentiefe Fenster mit viel Tageslicht
• Terrasse/Balkon
• Aufzug im Haus
• Langfristige Anmietung möglich
Die Fläche befindet sich in repräsentativer Lage auf der Kaiserswerther Straße und eignet sich ideal als Büro, Praxis oder Showroom. Die Kombination aus großzügigem Grundriss, bodentiefen Fensterflächen und hochwertiger Ausstattung schafft ein modernes, lichtdurchflutetes Arbeitsumfeld. Es gibt einen einladenden Flur, ein kleinen Raum, sowie 2 große Räume mit hervorragender Beleuchtung. Die Küche und die beiden Bäder sind neuwertig und in bestem Zustand.
Objektdaten
• Fläche: ca. 130 m²
• Etage: 1. Obergeschoss
• Miete: 2.200 € / Monat
• Nebenkosten: 500 € / Monat
• Kaution: 5.000 €
• Verfügbar ab: 01.04.2026
• Provisionsfrei
• 2 Tiefgaragenstellplätze (je 150 € / Monat)
Ausstattung & Highlights
• Nur wenige Gehminuten zum Rhein
• Repräsentative Lage in Düsseldorf-Golzheim
• Straßenbahn- und Bushaltestelle direkt vor dem Haus
• Fußweg zu ÖPNV: ca. 1 Minute
• Hauptbahnhof ca. 10 Minuten
• Autobahn ca. 5 Minuten
• Flughafen ca. 15 Minuten
• Gepflegter Zustand, letzte Modernisierung 2015
• Gehoben ausgestattete, vollwertige moderne Küche
• Bad + separates Gästebad
• Hochwertiger, pflegeleichter Steinboden
• Fußbodenheizung
• Bodentiefe Fenster mit viel Tageslicht
• Terrasse/Balkon
• Aufzug im Haus
• Langfristige Anmietung möglich
Ausstattungsmerkmale
| Anzahl der Etagen im Haus | 1 |
| Inserat befindet sich im Stockwerk | 4 |
| Küche | Einbauküche |
| Bad | Dusche, Wanne |
| Boden | Fliesen |
| Balkone | 1 |
| Garten | |
| Terrassen | 0 |
| Fahrstuhl | |
| Garage/Stellplätze | 1 |
| Keller |
Balkon, Garten, Keller, Fahrstuhl, Vollbad, Duschbad, Einbauküche, Gäste-WC, Fliesen
Bemerkungen:
Onlinebesichtigung möglich nach Absprache
Bemerkungen:
Onlinebesichtigung möglich nach Absprache
Sonstige Informationen
Heizungsart: Fußbodenheizung
Energieträger: Gas
Energieausweis nicht vorhanden
Makleranfragen nicht erwünscht. Nach § 7 UWG sind unaufgeforderte Kontaktaufnahmen durch Makler ohne ausdrückliche Einwilligung des Empfängers verboten!
ohne-makler (OM) ist weder Anbieter noch Vermittler der Immobilie. OM betreibt eine Plattform für Immobilieneigentümer, die unter anderem die gleichzeitige Veröffentlichung einzelner Inserate auf mehreren Immobilienportalen ermöglicht. Die Inhalte dieser Inserate werden ausschließlich von Dritten verantwortet. Für die Richtigkeit, Vollständigkeit oder Rechtmäßigkeit der Angaben übernimmt OM keine Haftung. Hinweise auf mögliche Rechtsverstöße können jederzeit gemeldet werden und werden nach Prüfung umgehend bearbeitet.
Energieträger: Gas
Energieausweis nicht vorhanden
Makleranfragen nicht erwünscht. Nach § 7 UWG sind unaufgeforderte Kontaktaufnahmen durch Makler ohne ausdrückliche Einwilligung des Empfängers verboten!
ohne-makler (OM) ist weder Anbieter noch Vermittler der Immobilie. OM betreibt eine Plattform für Immobilieneigentümer, die unter anderem die gleichzeitige Veröffentlichung einzelner Inserate auf mehreren Immobilienportalen ermöglicht. Die Inhalte dieser Inserate werden ausschließlich von Dritten verantwortet. Für die Richtigkeit, Vollständigkeit oder Rechtmäßigkeit der Angaben übernimmt OM keine Haftung. Hinweise auf mögliche Rechtsverstöße können jederzeit gemeldet werden und werden nach Prüfung umgehend bearbeitet.
Karte wird geladen...
Objektstandort
Kaiserswerther Str. 144
40474 Düsseldorf
- Nordrhein-Westfalen
Lage & Infrastruktur
Objektstandort
Kaiserswerther Str. 144
40474 Düsseldorf
- Nordrhein-Westfalen
Die Immobilie befindet sich in einer der gefragtesten Bürolagen Düsseldorfs – Kaiserswerther Straße in Golzheim. Die hervorragende Verkehrsanbindung sowie die repräsentative Umgebung machen den Standort besonders attraktiv für anspruchsvolle Unternehmen, Praxen oder showroom-orientierte Konzepte. Vielfältige Gastronomie und Cafés in direkter Umgebung.
Infrastruktur (im Umkreis von 5 km):
Apotheke, Lebensmittel-Discount, Öffentliche Verkehrsmittel
Infrastruktur (im Umkreis von 5 km):
Apotheke, Lebensmittel-Discount, Öffentliche Verkehrsmittel
Kontaktanfrage senden
Über den Anbieter
OM PropTech GmbH
Humboldtstraße 25a
21509 Glinde
Kontakt
| Telefon | - |
| Fax | - |
| Website | www.ohne-makler.net |
Ansprechpartner/in
Angebot von Jessica Schütze
Weitere Angebote des Anbieters
5
Möblierte 1 Zimmer Wohnung mit Einbauküche und ...
Wohnung
96052 Bamberg
WILLKOMMEN IN DEN SUN SHINE LOFTS! Stellen Sie sich vor, Sie werden Teil eines der innovativsten Stadtentwicklungsprojekte Europas! Auf dem Gelände der ehemaligen Lagarde-Kaserne in Bamberg, die über 69 Jahre lang Teil ...
559 €
Kaltmiete (netto)
32,55 m²
Wohnfläche
1
Zimmer
16
Erstbezug: 2 bis 4 Zimmer Wohnungen ab 750,- Kaltmiete ...
Wohnung
56269 Dierdorf
Tolle 2 bis 4-Zimmer Wohnungen in Energieeffizientem KFW55 Haus, Fußbodenheizung, zentrale Luft-Wärmepumpe, kontrollierte Wohnraumlüftung durch dezentrale in den Wohnungen installierte, moderne Einbauküchen in ...
750 €
Kaltmiete (netto)
55 m²
Wohnfläche
2
Zimmer
50
Außergewöhnlich gepflegter Resthof mit zwei ...
Haus
24816 Luhnstedt
Dieser außergewöhnlich gepflegte Resthof richtet sich an Käufer mit Anspruch, die Wert auf Substanz, Großzügigkeit und flexible Nutzungsmöglichkeiten legen. In ruhiger, ländlicher Lage in Luhnstedt bietet dieses ...
429.000 €
Kaufpreis
268,4 m²
Wohnfläche
6
Zimmer
22
Moderne Büroflächen ab 32–90 m² | barrierefrei | 9 ...
Büro / Praxen
44149 Dortmund
Moderne Büroflächen in einem vollständig modernisierten Gebäude (ehemalige Sparkasse) in Dortmund-Oespel. Das Objekt wurde im Jahr 2026 umfassend erneuert und bietet eine moderne und funktionale Arbeitsumgebung für ...
663 €
Kaltmiete (netto)
460 m²
Gesamtfläche
15
Große, helle 1 Zimmer Wohnung in Souterrain
Wohnung
70619 Stuttgart
Das 1983 gebaute Haus wurde 2026 mit einem Vollwärmeschutz versehen, die Fassade neu gestrichen und die Fenster mit einer 3-fach Verglasung erneuert . Der Energieausweis wird gerade neu erstellt. Die großzügig ...
610 €
Kaltmiete (netto)
48 m²
Wohnfläche
1
Zimmer