VB3110a Exklusive Bürofläche / Regensburg - Nordost
1.922 €
Kaltmiete
1.922 €
Kaltmiete (netto)
183 m²
Nutzfläche
3
Zimmer
immobilien.de Nr.: 9499270
Objektnummer: VB 3110a
Mietpreis & Nebenkosten
| Kaltmiete | 1.922 € |
| Kaltmiete (netto) | 1.922 € |
| Nebenkosten | 275 € |
| Maklerprovision | Ortsübliche Provision vom Käufer/Mieter nur im Erfolgsfalle |
| Kaution | 5.766 € |
| Stellplatz Freiplatz Miete} | 50 € |
Wohnfläche, Grundstück & Bausubstanz
| Nutzfläche | 183 m² |
| Bürofläche | 183 m² |
| Zimmer | 3 |
| Baujahr | 2004 |
| Letzte Modernisierung | 2020 |
| Verfügbar ab | sofort |
| Zustand | Modernisiert |
Energie
| Energieausweistyp | Bedarfsausweis |
| Ausstellungsdatum | 06. 10. 2016 |
| Energieverbrauchkennwert | 176.50 kWh/(m²*a) |
| Heizungsart | Zentralheizung |
| Energieträger/Befeuerung | Gas |
Beschreibung der Immobilie
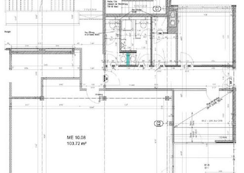
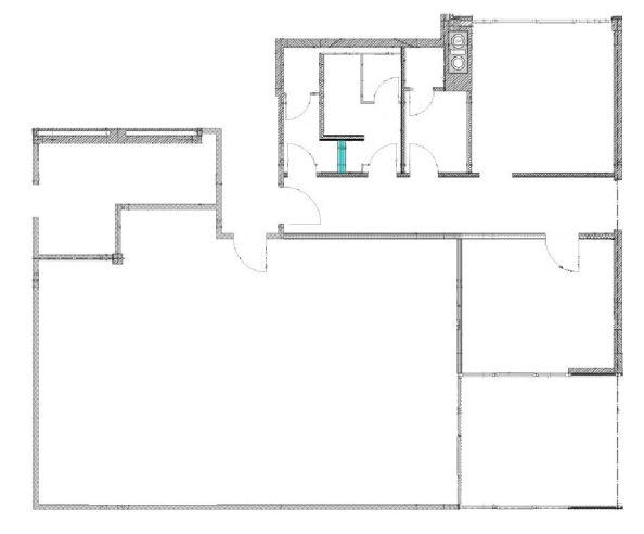
Die exklusiven Büroflächen befindet sich an einer großen Ausfallstraße im Regensburger Nordosten, in unmittelbarer Nähe des Gewerbeparks. Eine Bushaltestelle befindet sich vor dem Objekt. Es besteht aufgrund der Osttangente eine sehr gute Verkehrsanbindung.
Die Büroflächen befinden sich im 1. Obergeschoss eines modernen Büro- und Geschäftshauses. Es wird mit einer Gaszentralheizung beheizt. Ein Glasfaseranschluss ist vorhanden. Der Zugang zur Fläche 1 erfolgt über einen separaten Eingang, die Fläche 2 über das Treppenhaus.
Die Flächenaufteilung erfolgt nach den Wünschen des Mieters. Die Büroräume sind mit Teppichboden ausgelegt. EDV- und Telefonverkabelung ist in Brüstungskanälen verlegt. In den abgehängten Decken sind Leuchten integriert. Aufgrund der großen Fensterfronten mit elektrisch gesteuerten Jalousien sind die Räume sehr hell und freundlich. Ein WC wird in Absprache mit dem Mieter eingebaut.
Es stehen im Untergeschoss Lagerflächen und Tiefgaragenstellplätze und vor dem Gebäude Außenstellplätze zur Verfügung, die je nach Bedarf angemietet werden können.
Die Büroflächen befinden sich im 1. Obergeschoss eines modernen Büro- und Geschäftshauses. Es wird mit einer Gaszentralheizung beheizt. Ein Glasfaseranschluss ist vorhanden. Der Zugang zur Fläche 1 erfolgt über einen separaten Eingang, die Fläche 2 über das Treppenhaus.
Die Flächenaufteilung erfolgt nach den Wünschen des Mieters. Die Büroräume sind mit Teppichboden ausgelegt. EDV- und Telefonverkabelung ist in Brüstungskanälen verlegt. In den abgehängten Decken sind Leuchten integriert. Aufgrund der großen Fensterfronten mit elektrisch gesteuerten Jalousien sind die Räume sehr hell und freundlich. Ein WC wird in Absprache mit dem Mieter eingebaut.
Es stehen im Untergeschoss Lagerflächen und Tiefgaragenstellplätze und vor dem Gebäude Außenstellplätze zur Verfügung, die je nach Bedarf angemietet werden können.
Ausstattungsmerkmale
| Boden | Teppich |
Lage: Regensburg - Nordost
Mietpreis: EUR 1.922,-
Nebenkosten: EUR 275,-
Fläche: ca. 183 m²
Zimmeranzahl: 3
Baujahr: 2004
letzte Modernisierung: 2020
Kaution: EUR 5.766,-
Geschoss(e): 1. Obergeschoss
Bezug: sofort
teilbar ab: nein
Stellplatzpreis: EUR 50,-
Fußweg zum RVV: 5 min.
Fahrtzeit Bahnhof: 10 min.
Fahrtzeit Autobahn: 10 min.
Fahrtzeit Flughafen: 80 min.
Objekttyp: Büro
Zustand: modernisiert
Stellplatz: Außenstellplatz
Ausstattung: normal
Bodenbelag: Teppich
Heizung: Zentralheizung
Energieausweis Art: Energiebedarfsausweis
Energieausweis Wert: 176,5 kWh/m²a
Energieträger: Gas
Starkstrom: ja
DV-Verkabelung: ja
Mietpreis: EUR 1.922,-
Nebenkosten: EUR 275,-
Fläche: ca. 183 m²
Zimmeranzahl: 3
Baujahr: 2004
letzte Modernisierung: 2020
Kaution: EUR 5.766,-
Geschoss(e): 1. Obergeschoss
Bezug: sofort
teilbar ab: nein
Stellplatzpreis: EUR 50,-
Fußweg zum RVV: 5 min.
Fahrtzeit Bahnhof: 10 min.
Fahrtzeit Autobahn: 10 min.
Fahrtzeit Flughafen: 80 min.
Objekttyp: Büro
Zustand: modernisiert
Stellplatz: Außenstellplatz
Ausstattung: normal
Bodenbelag: Teppich
Heizung: Zentralheizung
Energieausweis Art: Energiebedarfsausweis
Energieausweis Wert: 176,5 kWh/m²a
Energieträger: Gas
Starkstrom: ja
DV-Verkabelung: ja
Sonstige Informationen
Um eine schnelle Bearbeitung zu gewähren benötigen wir Ihre Telefonnummer sowie Ihre komplette Adresse.
Karte wird geladen...
Objektstandort
93059 Regensburg
- Bayern
Lage & Infrastruktur
Objektstandort
93059 Regensburg
- Bayern
Regensburg - Nordost
Kontaktanfrage senden
Über den Anbieter
TRUMMER Immobilien GmbH & Co. KG
Nußbergerstr. 6
93059 Regensburg
Kontakt
| Telefon | 0941/447633 |
| Fax | 0941/41793 |
| Website | www.trummer.de |
Ansprechpartner/in
Team Gewerbe
Weitere Angebote des Anbieters
7
VB3110a Exklusive Bürofläche / Regensburg - Nordost
Büro / Praxen
93059 Regensburg
Die exklusiven Büroflächen befindet sich an einer großen Ausfallstraße im Regensburger Nordosten, in unmittelbarer Nähe des Gewerbeparks. Eine Bushaltestelle befindet sich vor dem Objekt. Es besteht aufgrund der ...
1.922 €
Kaltmiete
1.922 €
Kaltmiete (netto)
183 m²
Gesamtfläche
1
VF3866VH Unbebautes Grundstück / Burglengenfeld
Grundstück
93133 Burglengenfeld
Das verkehrsgünstig gelegene Grundstück zur Vermietung oder Verkauf befindet sich in einem Gewerbegebiet ca. 25 km nördlich von Regensburg. Über die nahe gelegene Autobahn A 93 ist eine gute Verkehrsanbindung gegeben. ...
keine Angabe
Preis
3.500 m²
Grundstücksfläche
1
VH3616c Produktions- oder Lagerhalle (Halle 1 und 2) ...
Hallen / Lager / Produktion
92648 Vohenstrauß
Das Gewerbeanwesen befindet sich ca. 60 km nordöstlich von Schwandorf, direkt an einer BAB-Ausfahrt der A 6 Amberg-Pilsen. Die drei Hallen wurden in Stahlskelettbauweise erstellt und das Pultdach mit einer Höhe von 3,8 ...
12.000 €
Kaltmiete
12.000 €
Kaltmiete (netto)
19620 m²
Gesamtfläche
400 m²
Teilbar ab
9
VH3866 Kühlhalle mit Büroanbau und Freifläche / ...
Hallen / Lager / Produktion
93142 Maxhütte-Haidhof
Das verkehrsgünstig gelegene Anwesen zur Vermietung oder Verkauf befindet sich in einem Gewerbegebiet ca. 25 km nördlich von Regensburg. Über die nahe gelegene Autobahn A 93 ist eine gute Verkehrsanbindung gegeben. Das ...
6.500 €
Kaltmiete
6.500 €
Kaltmiete (netto)
7500 m²
Gesamtfläche
4
VH3934b Freitragende Kaltlagerhalle (Halle 2) mit ...
Hallen / Lager / Produktion
84069 Schierling
Die beiden Hallen befinden sich auf einem Anwesen in Schierling. Über die Autobahn A 93 und die Bundesstraße B 15n besteht eine hervorragende Anbindung an Regensburg und Landshut. Das Anwesen besteht aus zwei ...
990 €
Kaltmiete
990 €
Kaltmiete (netto)
keine Angabe
Gesamtfläche