Renoviertes Ladenlokal in Herdecker Innenstadt / Fußgängerzone
599 €
Kaltmiete (netto)
immobilien.de Nr.: 9497669
Objektnummer: 434426
Mietpreis & Nebenkosten
| Kaltmiete (netto) | 599 € |
| Nebenkosten | 150 € |
| Maklerprovision | keine Provision, courtagefrei |
| Kaution | 1.797 € |
Wohnfläche, Grundstück & Bausubstanz
| Gesamtfläche | 70 m² |
| Baujahr | 1900 |
| Verfügbar ab | sofort |
| Zustand | Teil Vollsaniert |
Energie
| Energieausweistyp | Bedarfsausweis |
| Heizungsart | Zentralheizung |
| Energieträger/Befeuerung | Gas |
Beschreibung der Immobilie
Das Ladenlokal befindet sich fast mittig in der Fußgängerzone der historischen Herdecker Altstadt.
Das Ladenlokal befindet sich im rechten Teil des Wohn- und Geschäftshauses mit Ausrichtung der Schaufenster direkt zur Hauptstraße.
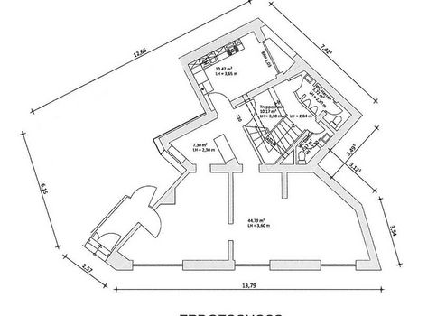
Das Ladenlokal wird über drei Stufen durch einen Vorraum erschlossen. Von dort aus gelangt man in den Verkaufsraum, welcher sich über einen vorderen und einen hinteren Teil erstreckt. Das Ladenlokal verfügt ebenso über zwei WC's (Herren/Damen) sowie einen Personalraum/Küche.
BITTE BEACHTEN: DIESE GEWERBEEINHEIT IST AUSSCHLIESSLICH NUR FÜR DEN REINEN VERKAUF VON PRODUKTEN VORGESEHEN!
Objektzustand: Erstbezug nach Sanierung
Das Ladenlokal befindet sich im rechten Teil des Wohn- und Geschäftshauses mit Ausrichtung der Schaufenster direkt zur Hauptstraße.
Das Ladenlokal wird über drei Stufen durch einen Vorraum erschlossen. Von dort aus gelangt man in den Verkaufsraum, welcher sich über einen vorderen und einen hinteren Teil erstreckt. Das Ladenlokal verfügt ebenso über zwei WC's (Herren/Damen) sowie einen Personalraum/Küche.
BITTE BEACHTEN: DIESE GEWERBEEINHEIT IST AUSSCHLIESSLICH NUR FÜR DEN REINEN VERKAUF VON PRODUKTEN VORGESEHEN!
Objektzustand: Erstbezug nach Sanierung
Ausstattungsmerkmale
| Inserat befindet sich im Stockwerk | 0 |
| Boden | Fliesen, Kunststoff |
Gäste-WC, Fliesen
Bemerkungen:
- hochwertiger Bodenbelag (Fotos sind aus der Renovierung)
- hochwertige Decken Gestaltung
- individuelle Raumaufteilung möglich
- lichtdurchfluteter Verkaufsraum
- neue isoverglaste Fenster
Bemerkungen:
- hochwertiger Bodenbelag (Fotos sind aus der Renovierung)
- hochwertige Decken Gestaltung
- individuelle Raumaufteilung möglich
- lichtdurchfluteter Verkaufsraum
- neue isoverglaste Fenster
Sonstige Informationen
Heizungsart: Zentralheizung
Energieträger: Gas
Bitte geben Sie in der Anfrage eine Telefonnummer, sowie die beabsichtigte Nutzung an.
Bitte teilen Sie in der Anfrage kurz die geplante Nutzung mit.
ohne-makler (OM) ist weder Anbieter noch Vermittler der Immobilie. OM betreibt eine Plattform für Immobilieneigentümer, die unter anderem die gleichzeitige Veröffentlichung einzelner Inserate auf mehreren Immobilienportalen ermöglicht. Die Inhalte dieser Inserate werden ausschließlich von Dritten verantwortet. Für die Richtigkeit, Vollständigkeit oder Rechtmäßigkeit der Angaben übernimmt OM keine Haftung. Hinweise auf mögliche Rechtsverstöße können jederzeit gemeldet werden und werden nach Prüfung umgehend bearbeitet.
Energieträger: Gas
Bitte geben Sie in der Anfrage eine Telefonnummer, sowie die beabsichtigte Nutzung an.
Bitte teilen Sie in der Anfrage kurz die geplante Nutzung mit.
ohne-makler (OM) ist weder Anbieter noch Vermittler der Immobilie. OM betreibt eine Plattform für Immobilieneigentümer, die unter anderem die gleichzeitige Veröffentlichung einzelner Inserate auf mehreren Immobilienportalen ermöglicht. Die Inhalte dieser Inserate werden ausschließlich von Dritten verantwortet. Für die Richtigkeit, Vollständigkeit oder Rechtmäßigkeit der Angaben übernimmt OM keine Haftung. Hinweise auf mögliche Rechtsverstöße können jederzeit gemeldet werden und werden nach Prüfung umgehend bearbeitet.
Karte wird geladen...
Objektstandort
Hauptstraße 33
58313 Herdecke
- Nordrhein-Westfalen
Lage & Infrastruktur
Objektstandort
Hauptstraße 33
58313 Herdecke
- Nordrhein-Westfalen
Zentrale 1a Lage in Mitten Herdeckes historischen Fußgängerzone. Guter Mix aus Einzelhandel und Gastronomie. Zwei Mieter größere Einzelhandelsketten als Frequenzbringer in unmittelbarer Nähe!
Infrastruktur (im Umkreis von 5 km):
Apotheke, Lebensmittel-Discount, Allgemeinmediziner, Kindergarten, Grundschule, Hauptschule, Realschule, Gymnasium, Gesamtschule, Öffentliche Verkehrsmittel
Infrastruktur (im Umkreis von 5 km):
Apotheke, Lebensmittel-Discount, Allgemeinmediziner, Kindergarten, Grundschule, Hauptschule, Realschule, Gymnasium, Gesamtschule, Öffentliche Verkehrsmittel
Kontaktanfrage senden
Über den Anbieter
OM PropTech GmbH
Humboldtstraße 25a
21509 Glinde
Kontakt
| Telefon | - |
| Fax | - |
| Website | www.ohne-makler.net |
Ansprechpartner/in
Privat vom Eigentümer
Weitere Angebote des Anbieters
11
Exklusiver Bungalow - Wohnen auf einer Ebene
Haus
73434 Aalen
Dieser moderne und stilvolle Bungalow wurde im Jahr 2020 fertiggestellt und bietet auf rund 100 Quadratmetern Wohnfläche ein Wohnerlebnis der besonderen Art. Alles ist auf Komfort, Design und Qualität ausgerichtet – ...
589.000 €
Kaufpreis
102 m²
Wohnfläche
3
Zimmer
24
Modernes KfW-55 Haus in idyllischer Lage in Wassenberg
Haus
41849 Wassenberg
Dieses hochwertige Einfamilienhaus (Fertigstellung 2023, modernisiert 2024) überzeugt durch moderne Architektur, energieeffiziente Haustechnik und eine durchdachte Raumaufteilung. Auf einer Wohnfläche von rund 212 m² ...
830.000 €
Kaufpreis
212 m²
Wohnfläche
7
Zimmer
8
Gießen - Top 2,5 Zimmer-Penthouse mit Aufzug - ...
Wohnung
35396 Gießen
Willkommen in Ihrem neuen Traumzuhause! Dieses exklusive 124 m² Penthouse im Herzen von Gießen setzt neue Maßstäbe in Sachen Luxus und Nachhaltigkeit. Das Penthouse besticht durch herrliche Balkone, die jeweils eine ...
1.700 €
Kaltmiete (netto)
124 m²
Wohnfläche
2,5
Zimmer
9
Schöne große 3 Zimmer-Wohnung mit Terrasse und Garten
Wohnung
67304 Eisenberg-Steinborn
Diese schöne 3 Zimmer-Wohnung im Erdgeschoß mit eigenem Eingang, besticht durch ein großes Raumangebot sowie eine ansprechende Ausstattung. Zur Wohnung gehört ein schönes großes Wannen-Bad mit Dusche sowie ...
1.100 €
Kaltmiete (netto)
84 m²
Wohnfläche
3
Zimmer
24
Helle Dachwohnung mit Südterrasse und Blick ins Grüne
Wohnung
81249 München
Ich verkaufe meine helle und sehr gepflegte Dachgeschosswohnung im beliebten Münchner Stadtteil Aubing/Lochhausen, die mit einer durchdachten Raumaufteilung, viel Licht und einem schönen Blick ins Grüne überzeugt. Sie ...
580.000 €
Kaufpreis
84,92 m²
Wohnfläche
3
Zimmer