Moderne Büroflächen in der Innenstadt l Flexible Laufzeiten möglich

40215 Düsseldorf, Nordrhein-Westfalen
Frei ab: kurzfristig
25,00 € Preis/m²
Bürofläche
2.459 m²
Fahrstuhl
Barrierefrei

Mietpreis & Nebenkosten

Kaltmiete0 €
Nebenkosten Keine Angabe
Mietpreis pro m²25 €
Stellplatz Freiplatz Miete190 €

Wohnfläche, Grundstück & Bausubstanz

Gesamtfläche4.876 m²
Verkaufsfläche440 m²
Bürofläche2.459 m²
Fläche teilbar ab232 m²
Verfügbar ab kurzfristig

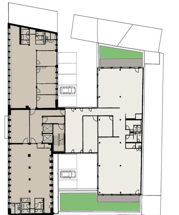
Beschreibung der Immobilie

Im Herzen von Düsseldorf entsteht ein modernes Bürogebäude, das keine Wünsche offen lässt. theCOR bietet Ihnen und Ihren Mitarbeitern über 4.600 m² moderne Büro/Verkaufsflächen.

Zur Verfügung stehen 14 Büroeinheiten, die separat oder kombiniert genutzt werden können, mit Flächen zwischen ca. 235 m² und 930 m² auf fünf Etagen. Zusätzlich befinden sich im Erdgeschoss zwei Gewerbeeinheiten, die vielseitige Nutzungsmöglichkeiten bieten.

Die Immobilie überzeugt durch ihre attraktive Innenstadtlage, eine hervorragende Anbindung an den öffentlichen Nahverkehr, 29 PKW-Stellplätze, sowie E-Ladestationen für Elektrofahrzeuge und E-Bikes.

In diesem Gebäude wurde über Jahrzehnte hinweg deutsche Werbegeschichte geschrieben und die digitale Transformation für zahlreiche namhafte Konzerne und mittelständische Unternehmen erfolgreich gestaltet.

Ausstattungsmerkmale

BodenTeppich
Fahrstuhl
BarrierefreiJa
- repräsentatives Foyer
- Dachterrasse im 5. OG
- Videosprechanlage
- Zugangskontrolle
- Bestandsgebäude Deckenhöhe: 2,70 m - 4,20 m ​
- Neubau Deckenhöhe: 2,90 m
- Bestandsgebäude Achsmaß: 1,30 m - 1,40 m
- moderne Heiz-/Kühlsegel sorgen für angenehmes Raumklima
- Mechanische Be- und Entlüftung
- Außenliegende, individuell steuerbare Sonnenschutzlamellen
- Öffenbare bodentiefe Fenster
- Hohlraumboden inkl. Bodentanks
- Bodenbelag Teppichboden
- eingerichtete Teeküchen
- moderner Personenaufzug vorhanden
- E-Ladesäulen für PKW und Räder
- barrierefreier Zugang
- behindertengerechtes WC

Karte wird geladen...
40215 Düsseldorf – Nordrhein-Westfalen

Lage & Infrastruktur

Das Objekt liegt in der Düsseldorfer Innenstadt, nur wenige Meter von der Königsallee entfernt. In unmittelbarer Umgebung befinden sich viele Geschäfte mit Artikeln des täglichen Bedarfs sowie Restaurants und Cafés.
Über die Berliner Allee/Corneliusstraße als Nord-Süd-Achse können nördliche und südliche Stadtteile sowie die Autobahnzubringer in wenigen Minuten erreicht werden. Der Düsseldorfer Flughafen sowie das Messegelände sind in wenigen Autominuten bequem zu erreichen.
Es besteht eine hervorragende Verbindung zu den öffentlichen Verkehrsmitteln. Straßenbahnhaltestellen der Linien 704, 709, 713 und 715 befinden sich auf der Berliner Allee und Graf-Adolf-Straße. Der Hauptbahnhof ist nur wenige Gehminuten entfernt.

Sonstige Informationen

Flexible Laufzeiten unter 2 Jahren möglich.
Ansprechpartner/in: Firma
corealis Commercial Real Estate GmbH
Hohe Straße 8-10, 40213 Düsseldorf

Weitere Angebote in Düsseldorf