Attraktive Büroeinheit im Erdgeschoss – 360 m² mit Empfang, Küche & flexibler Anmietung
immobilien.de Nr.: 9453545
Objektnummer: 425413
Mietpreis & Nebenkosten
| Miete für das Objekt | Auf Anfrage |
| Nebenkosten | Keine Angabe |
| Maklerprovision | keine Provision, courtagefrei |
Wohnfläche, Grundstück & Bausubstanz
| Gesamtfläche | 360 m² |
| Bürofläche | 300 m² |
| Baujahr | 1991 |
| Verfügbar ab | sofort |
| Zustand | Gepflegt |
Energie
| Energieausweistyp | Verbrauch |
| Heizungsart | Zentralheizung |
| Energieträger/Befeuerung | Gas |
Beschreibung der Immobilie
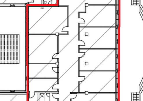
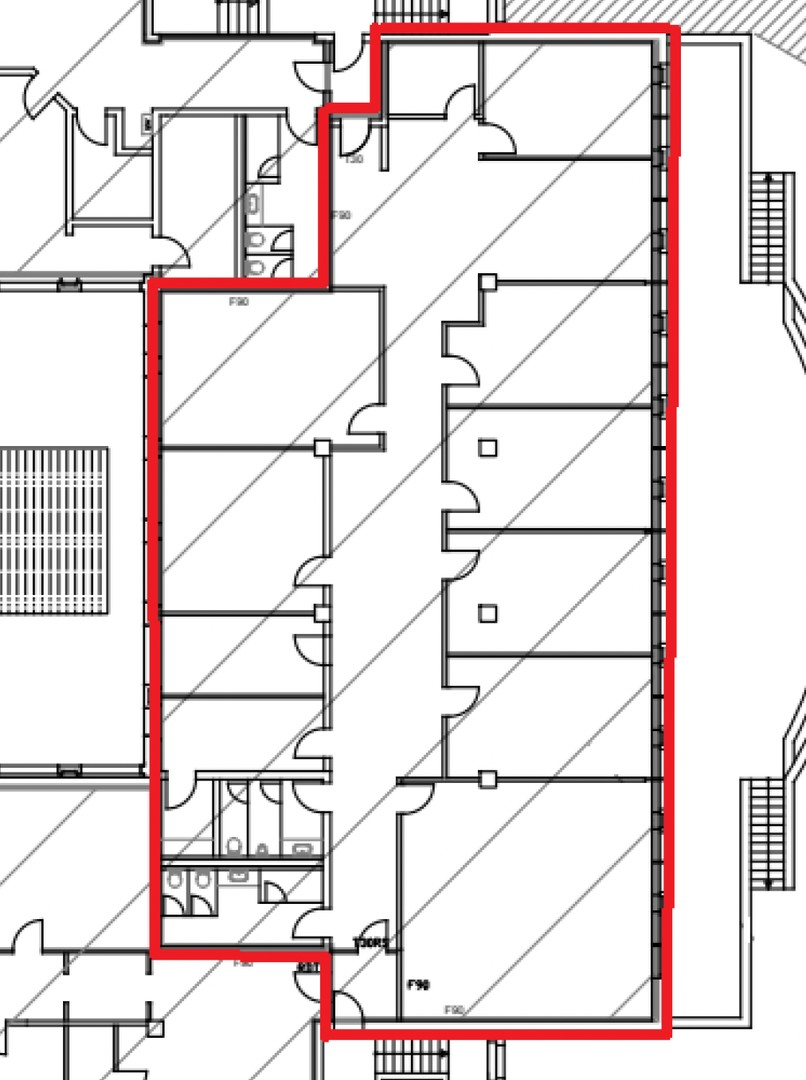
Zur Vermietung steht eine ca. 360 m² große Bürofläche im Erdgeschoss eines Bürokomplexes. Die Einheit überzeugt durch eine moderne Aufteilung, helle Räume und eine repräsentative Ausstattung – ideal für Unternehmen, die Wert auf ein professionelles Arbeitsumfeld legen.
Die Einheit wird zu einem Mietpreis von 8 €/m² kalt vermietet.
Stellplätze stehen auf Anfrage zur Verfügung.
Es besteht sowohl die Möglichkeit, die Bürofläche gesamt wie im Grundriss angegeben anzumieten, als auch einzelne Büroräume separat möbliert oder unmöbliert zu mieten.
Bereits beim Betreten empfängt ein großzügiger Empfangsbereich mit Theke, der sich perfekt für Kundenkontakt oder als zentrale Anlaufstelle eignet. Insgesamt stehen fünf gut geschnittene Büroräume zur Verfügung, die flexibel als Einzel-, Doppel- oder Teamarbeitsplätze genutzt werden können. Die durchdachte Raumaufteilung bietet optimale Voraussetzungen für konzentriertes Arbeiten sowie effiziente Zusammenarbeit.
Große Fensterflächen sorgen in allen Räumen für viel Tageslicht und schaffen ein angenehmes, freundliches Arbeitsklima.
Ein besonderes Highlight ist die repräsentative Küche mit Blick auf den begrünten Innenhof. Sie bietet nicht nur einen attraktiven Aufenthaltsbereich für Pausen, sondern eignet sich auch hervorragend für informelle Meetings oder eine gehobene Nutzung im Rahmen von Kundenempfängen.
Die Einheit verfügt über getrennte Sanitäranlagen für Damen und Herren.
Diese Bürofläche kombiniert Funktionalität mit repräsentativem Charakter und bietet beste Voraussetzungen für vielfältige Nutzungsmöglichkeiten – ob Agentur, Beratung, oder Verwaltung.
Die Einheit wird zu einem Mietpreis von 8 €/m² kalt vermietet.
Stellplätze stehen auf Anfrage zur Verfügung.
Es besteht sowohl die Möglichkeit, die Bürofläche gesamt wie im Grundriss angegeben anzumieten, als auch einzelne Büroräume separat möbliert oder unmöbliert zu mieten.
Bereits beim Betreten empfängt ein großzügiger Empfangsbereich mit Theke, der sich perfekt für Kundenkontakt oder als zentrale Anlaufstelle eignet. Insgesamt stehen fünf gut geschnittene Büroräume zur Verfügung, die flexibel als Einzel-, Doppel- oder Teamarbeitsplätze genutzt werden können. Die durchdachte Raumaufteilung bietet optimale Voraussetzungen für konzentriertes Arbeiten sowie effiziente Zusammenarbeit.
Große Fensterflächen sorgen in allen Räumen für viel Tageslicht und schaffen ein angenehmes, freundliches Arbeitsklima.
Ein besonderes Highlight ist die repräsentative Küche mit Blick auf den begrünten Innenhof. Sie bietet nicht nur einen attraktiven Aufenthaltsbereich für Pausen, sondern eignet sich auch hervorragend für informelle Meetings oder eine gehobene Nutzung im Rahmen von Kundenempfängen.
Die Einheit verfügt über getrennte Sanitäranlagen für Damen und Herren.
Diese Bürofläche kombiniert Funktionalität mit repräsentativem Charakter und bietet beste Voraussetzungen für vielfältige Nutzungsmöglichkeiten – ob Agentur, Beratung, oder Verwaltung.
Ausstattungsmerkmale
| Anzahl der Etagen im Haus | 1 |
| Inserat befindet sich im Stockwerk | 0 |
| Boden | Teppich |
Teppichboden
Bemerkungen:
Auf Wunsch besteht die Möglichkeit, die Gewerberäume voll oder teilweise möbliert anzumieten, sodass ein kurzfristiger Einzug problemlos realisierbar ist.
Es besteht sowohl die Möglichkeit, die Bürofläche gesamt wie im Grundriss angegeben anzumieten, als auch einzelne Büroräume separat zu mieten.
Die Einheit wird zu einem Mietpreis von 8 €/m² kalt vermietet.
Stellplätze stehen auf Anfrage zur Verfügung.
Bemerkungen:
Auf Wunsch besteht die Möglichkeit, die Gewerberäume voll oder teilweise möbliert anzumieten, sodass ein kurzfristiger Einzug problemlos realisierbar ist.
Es besteht sowohl die Möglichkeit, die Bürofläche gesamt wie im Grundriss angegeben anzumieten, als auch einzelne Büroräume separat zu mieten.
Die Einheit wird zu einem Mietpreis von 8 €/m² kalt vermietet.
Stellplätze stehen auf Anfrage zur Verfügung.
Sonstige Informationen
Heizungsart: Zentralheizung
Energieträger: Gas
Die Einheit wird zu einem Mietpreis von 8 €/m² kalt vermietet.
Stellplätze stehen auf Anfrage zur Verfügung.
Es besteht sowohl die Möglichkeit, die Bürofläche gesamt wie im Grundriss angegeben anzumieten, als auch einzelne Büroräume separat zu mieten. Ideal für flexible Nutzungskonzepte oder kleinere Unternehmen.
Makleranfragen nicht erwünscht. Nach § 7 UWG sind unaufgeforderte Kontaktaufnahmen durch Makler ohne ausdrückliche Einwilligung des Empfängers verboten!
ohne-makler (OM) ist weder Anbieter noch Vermittler der Immobilie. OM betreibt eine Plattform für Immobilieneigentümer, die unter anderem die gleichzeitige Veröffentlichung einzelner Inserate auf mehreren Immobilienportalen ermöglicht. Die Inhalte dieser Inserate werden ausschließlich von Dritten verantwortet. Für die Richtigkeit, Vollständigkeit oder Rechtmäßigkeit der Angaben übernimmt OM keine Haftung. Hinweise auf mögliche Rechtsverstöße können jederzeit gemeldet werden und werden nach Prüfung umgehend bearbeitet.
Energieträger: Gas
Die Einheit wird zu einem Mietpreis von 8 €/m² kalt vermietet.
Stellplätze stehen auf Anfrage zur Verfügung.
Es besteht sowohl die Möglichkeit, die Bürofläche gesamt wie im Grundriss angegeben anzumieten, als auch einzelne Büroräume separat zu mieten. Ideal für flexible Nutzungskonzepte oder kleinere Unternehmen.
Makleranfragen nicht erwünscht. Nach § 7 UWG sind unaufgeforderte Kontaktaufnahmen durch Makler ohne ausdrückliche Einwilligung des Empfängers verboten!
ohne-makler (OM) ist weder Anbieter noch Vermittler der Immobilie. OM betreibt eine Plattform für Immobilieneigentümer, die unter anderem die gleichzeitige Veröffentlichung einzelner Inserate auf mehreren Immobilienportalen ermöglicht. Die Inhalte dieser Inserate werden ausschließlich von Dritten verantwortet. Für die Richtigkeit, Vollständigkeit oder Rechtmäßigkeit der Angaben übernimmt OM keine Haftung. Hinweise auf mögliche Rechtsverstöße können jederzeit gemeldet werden und werden nach Prüfung umgehend bearbeitet.
Karte wird geladen...
Objektstandort
Am Sandfeld 15a
76149 Karlsruhe
- Baden-Württemberg
Lage & Infrastruktur
Objektstandort
Am Sandfeld 15a
76149 Karlsruhe
- Baden-Württemberg
Die Gewerberäume befinden sich im Industriegebiet von Neureut und überzeugen durch eine sehr gute verkehrstechnische Anbindung. Wenige Fahrminuten vom Anschluss an die Autobahn A5 und eine direkte Verbindung über die B10/B36 ermöglichen optimale Anfahrtswege für Mitarbeitende, Kunden und Geschäftspartner. Auch die Anbindung an den öffentlichen Nahverkehr ist gegeben, sodass der Standort bequem erreichbar ist.
Darüber hinaus befinden sich Lebensmittelmärkte sowie Restaurants und Imbissangebote in fußläufiger Entfernung und bieten eine gute Infrastruktur für den täglichen Bedarf und die Mittagspause.
Infrastruktur (im Umkreis von 5 km):
Lebensmittel-Discount, Öffentliche Verkehrsmittel
Darüber hinaus befinden sich Lebensmittelmärkte sowie Restaurants und Imbissangebote in fußläufiger Entfernung und bieten eine gute Infrastruktur für den täglichen Bedarf und die Mittagspause.
Infrastruktur (im Umkreis von 5 km):
Lebensmittel-Discount, Öffentliche Verkehrsmittel