ALL-IN-ONE!
450.000 €
Kaufpreis
immobilien.de Nr.: 9374048
Objektnummer: 625119
Kaufpreis
| Kaufpreis | 450.000 € |
| Maklerprovision | 4,76 % (inkl. MwSt.) |
Wohnfläche, Grundstück & Bausubstanz
| Gesamtfläche | 510 m² |
| Gastrofläche | 60 m² |
| Grundstücksfläche | 287 m² |
| Baujahr | 1996 |
| Verfügbar ab | nach Absprache |
| Zustand | Gepflegt |
Energie
| Energieausweistyp | Bedarfsausweis |
| Ausstellungsdatum | 05. 12. 2025 |
| Baujahr (laut Energieausweis) | 1996 |
| Heizungsart | Zentralheizung |
| Wesentlicher Energieträger | Gas |
| Energieträger/Befeuerung | Gas |
Beschreibung der Immobilie
Wir verkaufen in einem Ortsteil von Tauberbischofsheim in ruhiger Ortsrandlage ein multifunktionales Gastgewerbeobjekt.
Die Überschrift haben wir gewählt, weil Sie hier folgende Voraussetzungen vorfinden:
- Beherbergungsbetrieb / Hotel mit 24 Betten
- Gastronomie / Gastwirtschaft mit ca. 40 Plätzen
- Möglichkeit einer Betreiberwohnung im Dachgeschoss
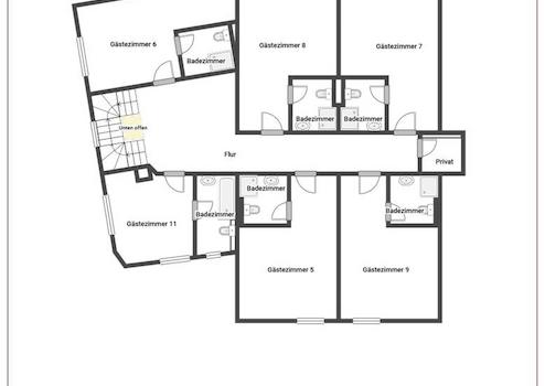
Im Erdgeschoss befinden sich der ca. 60 qm große Gastraum mit Zugang zum Innenhof, die Küche, das Büro, eine Gäste-Toilette sowie zwei Gästezimmer mit je einem Badezimmer.
Das Obergeschoss offeriert weitere sechs Gästezimmer.
Im Dachgeschoss finden Sie aktuell zwei Gästezimmer mit zwei großen Badezimmern. Hier besteht die Möglichkeit, die Räumlichkeiten zu einer Wohnung für die Betreiber oder zu einer Ferienwohnung umzubauen.
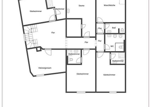
Im Untergeschoss befinden sich nochmal zusätzlich drei Gästezimmer, eine Sauna, der Heizungsraum sowie die Waschküche.
Das 1996 erbaute Landhotel befindet sich in einem gepflegten Zustand.
Die Gästezimmer im EG, OG und DG wurden 2017 mit neuen Teppichböden ausgestattet und neu gestrichen. Alle Zimmer sind geräumig und verfügen über ein Badezimmer mit Dusche/Badewanne. Im Gastraum wurde 2014 neuer Parkettboden verlegt.
Ob als Hotel garni oder als Hotel mit Gastwirtschaft - beides ist möglich. Wenn Sie immer vom eigenen Hotel geträumt haben, dann ist das Ihre Gelegenheit!
Wir freuen uns auf Ihre Kontaktaufnahme und übersenden Ihnen gerne nach Interessensbekundung das ausführliche Exposé mit weiteren Informationen und Unterlagen zu.
Weitere Angebote unter www.GARANT-IMMO.de
Die Überschrift haben wir gewählt, weil Sie hier folgende Voraussetzungen vorfinden:
- Beherbergungsbetrieb / Hotel mit 24 Betten
- Gastronomie / Gastwirtschaft mit ca. 40 Plätzen
- Möglichkeit einer Betreiberwohnung im Dachgeschoss
Im Erdgeschoss befinden sich der ca. 60 qm große Gastraum mit Zugang zum Innenhof, die Küche, das Büro, eine Gäste-Toilette sowie zwei Gästezimmer mit je einem Badezimmer.
Das Obergeschoss offeriert weitere sechs Gästezimmer.
Im Dachgeschoss finden Sie aktuell zwei Gästezimmer mit zwei großen Badezimmern. Hier besteht die Möglichkeit, die Räumlichkeiten zu einer Wohnung für die Betreiber oder zu einer Ferienwohnung umzubauen.
Im Untergeschoss befinden sich nochmal zusätzlich drei Gästezimmer, eine Sauna, der Heizungsraum sowie die Waschküche.
Das 1996 erbaute Landhotel befindet sich in einem gepflegten Zustand.
Die Gästezimmer im EG, OG und DG wurden 2017 mit neuen Teppichböden ausgestattet und neu gestrichen. Alle Zimmer sind geräumig und verfügen über ein Badezimmer mit Dusche/Badewanne. Im Gastraum wurde 2014 neuer Parkettboden verlegt.
Ob als Hotel garni oder als Hotel mit Gastwirtschaft - beides ist möglich. Wenn Sie immer vom eigenen Hotel geträumt haben, dann ist das Ihre Gelegenheit!
Wir freuen uns auf Ihre Kontaktaufnahme und übersenden Ihnen gerne nach Interessensbekundung das ausführliche Exposé mit weiteren Informationen und Unterlagen zu.
Weitere Angebote unter www.GARANT-IMMO.de
Ausstattungsmerkmale
| Anzahl der Etagen im Haus | 3 |
Untergeschoss:
- ein Einzelzimmer (Badezimmer mit Badewanne)
- zwei Doppelzimmer (Badezimmer mit Dusche)
- Sauna
- Waschküche
- Gäste-WC
- Heizungsraum
Erdgeschoss:
- Gastraum
- Küche
- Büro
- zwei Doppelzimmer (Badezimmer mit Dusche)
- Gäste-WC
- Kühlraum
- Fahrradraum
Obergeschoss:
- ein Einzelzimmer (Badezimmer mit Badewanne)
- zwei Doppelzimmer mit Beistellbett für Kind (Badezimmer mit Dusche)
- drei Doppelzimmer (Badezimmer mit Dusche)
Dachgeschoss:
- zwei Doppelzimmer mit Beistellbett für Kind (ein Badezimmer mit Dusche, ein Badezimmer mit Badewanne)
- Zimmer
- Flur
- ein Einzelzimmer (Badezimmer mit Badewanne)
- zwei Doppelzimmer (Badezimmer mit Dusche)
- Sauna
- Waschküche
- Gäste-WC
- Heizungsraum
Erdgeschoss:
- Gastraum
- Küche
- Büro
- zwei Doppelzimmer (Badezimmer mit Dusche)
- Gäste-WC
- Kühlraum
- Fahrradraum
Obergeschoss:
- ein Einzelzimmer (Badezimmer mit Badewanne)
- zwei Doppelzimmer mit Beistellbett für Kind (Badezimmer mit Dusche)
- drei Doppelzimmer (Badezimmer mit Dusche)
Dachgeschoss:
- zwei Doppelzimmer mit Beistellbett für Kind (ein Badezimmer mit Dusche, ein Badezimmer mit Badewanne)
- Zimmer
- Flur
Sonstige Informationen
Energiebedarfsausweis
Energiekennwert: Strom 78,83 kWh/(qm*a), Wärme 78,83 kWh/(qm*a)
Heizung: Zentralheizung mit Gas
Baujahr laut Energieausweis: 1996
Energiekennwert: Strom 78,83 kWh/(qm*a), Wärme 78,83 kWh/(qm*a)
Heizung: Zentralheizung mit Gas
Baujahr laut Energieausweis: 1996
Karte wird geladen...
Objektstandort
97941 Tauberbischofsheim
Lage & Infrastruktur
Objektstandort
97941 Tauberbischofsheim
Die Pension befindet sich am Ortsrand von Hochhausen, einem Ortsteil von Tauberbischofsheim.
In Tauberbischofsheim finden Sie alles, was Sie zum täglichen Bedarf brauchen. Hochhausen selbst verfügt über einen Bahnhof, der einen Haltepunkt der Bahnstrecke Lauda - Wertheim darstellt und wird durch den Radweg "Liebliches Taubertal" durchquert.
Die Autobahnanschlussstelle an die A81 ist mit dem Auto in Kürze erreicht.
In Tauberbischofsheim finden Sie alles, was Sie zum täglichen Bedarf brauchen. Hochhausen selbst verfügt über einen Bahnhof, der einen Haltepunkt der Bahnstrecke Lauda - Wertheim darstellt und wird durch den Radweg "Liebliches Taubertal" durchquert.
Die Autobahnanschlussstelle an die A81 ist mit dem Auto in Kürze erreicht.
Kontaktanfrage senden
Über den Anbieter
Garant Immobilien AG
Wilhelmstr.5
70182 Stuttgart
Kontakt
| Telefon | 0931/32 93 76-0 |
| Fax | 0931/32 93 76-20 |
| Website | www.garant-immo.de |
Ansprechpartner/in
Büro Würzburg