VG3867g Hotelzimmer in hochfrequentierter Lage / Maxhütte-Haidhof
100 m²
Nutzfläche
immobilien.de Nr.: 9372851
Objektnummer: VG 3867g
Mietpreis & Nebenkosten
| Miete für das Objekt | Auf Anfrage |
| Nebenkosten | Keine Angabe |
| Maklerprovision | Ortsübliche Provision vom Käufer/Mieter nur im Erfolgsfalle |
| Kaution | Soweit nicht anders erwähnt 3 Monatsmieten |
| Stellplatz Freiplatz Miete} | 0 € |
Wohnfläche, Grundstück & Bausubstanz
| Nutzfläche | 100 m² |
| Verfügbar ab | sofort |
| Zustand | Erstbezug |
Energie
| Energieträger/Befeuerung | Gas |
Beschreibung der Immobilie
Die Gastro- oder Ladenflächen befinden sich an einer zentralen und gut frequentierten Lage. Öffentliche Verkehrsmittel befinden sich in unmittelbarer Nähe.
Die barrierefreien Gastro- und Ladenflächen befinden sich im Erdgeschoss eines sanierten Geschäftshauses und werden über eine Gaszentralheizung beheizt. Die Eigentümer haben aufgrund der guten Lauflage ein Gastrokonzept entwickelt, von dem auch abgewichen werden kann. Somit sind Vergrößerungen der Flächen möglich. Gemeinschafts-WCs sind vorhanden. In den Einheiten befinden sich Starkstromanschlüsse.
Die Eisdiele bietet einen Kundezugang von zwei Seiten über jeweils eine doppelflügelige Glastüre. Die Verkaufsfläche ist modern gefliest. Die Genehmigung einer Sondernutzungsfläche für Sitzplätze vor dem Objekt ist mit der Stadtverwaltung abzuklären. Die Ausstattung muss abgelöst werden.
Der geplante Imbiss/Pizza ist ebenfalls gefliest und hat einen Kundenzugang über eine doppelflügelige Glastüre und einen Personaleingang. Es besteht die Möglichkeit die Fläche mit der Eisdiele durch einen Durchgang zusammenzulegen.
Das ebenfalls geflieste Café/Bäckerei verfügt über einen Verkaufsraum mit geplanter Theke und nebenliegendem Gastraum. Eine Küche befindet sich im rückwärtigen Bereich.
Der modern hell geflieste Friseurladen ist sowohl über das Treppenhaus als auch direkt von außen erreichbar. Er ist für drei Arbeitsplätze ausgerichtet. Ein Lager- und Vorbereitungsraum ist vorhanden.
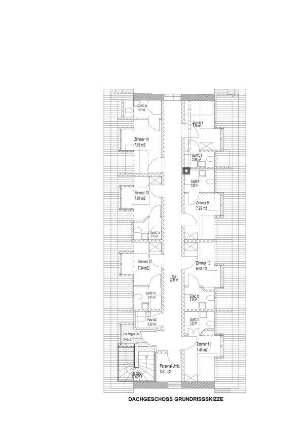
Im Obergeschoss und Dachgeschoss sind 14 Hotelzimmer mit WC und Dusche momentan im Rohbauzustand. Ein Büro im Erdgeschoss ist als Rezeption geplant. Eine andere Verwendung, z. B. als Reisebüro, ist denkbar.
Ein hochwertig saniertes Objekt, welches wir Ihnen gerne vorstellen.
Die barrierefreien Gastro- und Ladenflächen befinden sich im Erdgeschoss eines sanierten Geschäftshauses und werden über eine Gaszentralheizung beheizt. Die Eigentümer haben aufgrund der guten Lauflage ein Gastrokonzept entwickelt, von dem auch abgewichen werden kann. Somit sind Vergrößerungen der Flächen möglich. Gemeinschafts-WCs sind vorhanden. In den Einheiten befinden sich Starkstromanschlüsse.
Die Eisdiele bietet einen Kundezugang von zwei Seiten über jeweils eine doppelflügelige Glastüre. Die Verkaufsfläche ist modern gefliest. Die Genehmigung einer Sondernutzungsfläche für Sitzplätze vor dem Objekt ist mit der Stadtverwaltung abzuklären. Die Ausstattung muss abgelöst werden.
Der geplante Imbiss/Pizza ist ebenfalls gefliest und hat einen Kundenzugang über eine doppelflügelige Glastüre und einen Personaleingang. Es besteht die Möglichkeit die Fläche mit der Eisdiele durch einen Durchgang zusammenzulegen.
Das ebenfalls geflieste Café/Bäckerei verfügt über einen Verkaufsraum mit geplanter Theke und nebenliegendem Gastraum. Eine Küche befindet sich im rückwärtigen Bereich.
Der modern hell geflieste Friseurladen ist sowohl über das Treppenhaus als auch direkt von außen erreichbar. Er ist für drei Arbeitsplätze ausgerichtet. Ein Lager- und Vorbereitungsraum ist vorhanden.
Im Obergeschoss und Dachgeschoss sind 14 Hotelzimmer mit WC und Dusche momentan im Rohbauzustand. Ein Büro im Erdgeschoss ist als Rezeption geplant. Eine andere Verwendung, z. B. als Reisebüro, ist denkbar.
Ein hochwertig saniertes Objekt, welches wir Ihnen gerne vorstellen.
Ausstattungsmerkmale
| Keller |
Lage: Maxhütte-Haidhof
Mietpreis: auf Anfrage
Fläche: ca. 100 m²
Baujahr: unbekannt
Kaution: nach Vereinbarung
Geschoss(e): DG
Bezug: sofort
Stellplatzanzahl: 0
Stellplatzpreis: EUR 0,-
Gastraum: 0
Bettenanzahl: 7
Fußweg zum RVV: 0 min.
Fahrtzeit Bahnhof: 0 min.
Fahrtzeit Autobahn: 10 min.
Fahrtzeit Flughafen: 80 min.
Objekttyp: Hotel
Zustand: Erstbezug
Stellplatz: Außenstellplatz
Ausstattung: gehoben
Heizung: Gas-Heizung
Energieausweis Art: keine Angabe
Energieträger: Gas
Keller: ja
Terrasse: ja
Mietpreis: auf Anfrage
Fläche: ca. 100 m²
Baujahr: unbekannt
Kaution: nach Vereinbarung
Geschoss(e): DG
Bezug: sofort
Stellplatzanzahl: 0
Stellplatzpreis: EUR 0,-
Gastraum: 0
Bettenanzahl: 7
Fußweg zum RVV: 0 min.
Fahrtzeit Bahnhof: 0 min.
Fahrtzeit Autobahn: 10 min.
Fahrtzeit Flughafen: 80 min.
Objekttyp: Hotel
Zustand: Erstbezug
Stellplatz: Außenstellplatz
Ausstattung: gehoben
Heizung: Gas-Heizung
Energieausweis Art: keine Angabe
Energieträger: Gas
Keller: ja
Terrasse: ja
Sonstige Informationen
Um eine schnelle Bearbeitung zu gewähren benötigen wir Ihre Telefonnummer sowie Ihre komplette Adresse.
Karte wird geladen...
Objektstandort
93142 Maxhütte-Haidhof
- Bayern
Lage & Infrastruktur
Objektstandort
93142 Maxhütte-Haidhof
- Bayern
Maxhütte-Haidhof
Kontaktanfrage senden
Über den Anbieter
TRUMMER Immobilien GmbH & Co. KG
Nußbergerstr. 6
93059 Regensburg
Kontakt
| Telefon | 0941/447633 |
| Fax | 0941/41793 |
| Website | www.trummer.de |
Ansprechpartner/in
Team Gewerbe