Solides Ferienhaus mit viel Potential!
490.000 €
Kaufpreis
immobilien.de Nr.: 9334018
Objektnummer: 827129
Preise & Kosten
| Kaufpreis | 490.000 € |
| Nebenkosten | keine Angabe |
| Maklerprovision | 3,57 % (inkl. MwSt.) |
Größe & Zustand
| Gesamtfläche | 400 m² |
| Grundstücksfläche | 952 m² |
| Baujahr | 1923 |
| Verfügbar ab | nach Absprache |
| Zustand | Modernisiert |
Objektbeschreibung
Diese liebevoll geführte Pension überzeugt durch ihren gepflegten Zustand, eine langjährig etablierte Gästestruktur und eine idyllische Lage auf einem herrlich angelegten Grundstück. Zentral gelegen, aber dennoch umgeben von Natur und Ruhe bietet die Immobilie den idealen Rahmen für Erholungssuchende, Aktivurlauber oder Geschäftsreisende. Das Haus wird mit viel Herz betrieben und laufend modernisiert, um den heutigen Ansprüchen gerecht zu werden. Das Ferienhaus verfügt über mehrere Gästezimmer mit insgesamt 18 Betten und zusätzlich verfügt jede Wohnung über ein Schlafsofa. Terrasse oder Balkon sind ebenfalls vorhanden.
Das weitläufige Grundstück ist ein echtes Highlight: liebevoll bepflanzt, mit gepflegten Rasenflächen, lauschigen Sitzplätzen und viel Raum für Erweiterungsideen, Freizeit oder Veranstaltungen im Grünen.
Es ist möglich eine der Wohnungen als Betreiberwohnung zu nutzen, sodass ein nahtloser Übergang für zukünftige Eigentümer möglich ist, ob als Vollbetrieb oder in Kombination mit privatem Wohnen. Dank der guten Auslastung, treuer Stammkundschaft und attraktiven Lage bietet sich hier eine seltene Gelegenheit, ein laufendes Gastgewerbe mit Entwicklungspotenzial zu übernehmen.
Ob als Renditeobjekt, Familienprojekt oder Lebensaufgabe mit Herz, dieses Ferienhaus ist bereit für die nächste erfolgreiche Generation.
Weitere Angebote unter www.GARANT-IMMO.de
Das weitläufige Grundstück ist ein echtes Highlight: liebevoll bepflanzt, mit gepflegten Rasenflächen, lauschigen Sitzplätzen und viel Raum für Erweiterungsideen, Freizeit oder Veranstaltungen im Grünen.
Es ist möglich eine der Wohnungen als Betreiberwohnung zu nutzen, sodass ein nahtloser Übergang für zukünftige Eigentümer möglich ist, ob als Vollbetrieb oder in Kombination mit privatem Wohnen. Dank der guten Auslastung, treuer Stammkundschaft und attraktiven Lage bietet sich hier eine seltene Gelegenheit, ein laufendes Gastgewerbe mit Entwicklungspotenzial zu übernehmen.
Ob als Renditeobjekt, Familienprojekt oder Lebensaufgabe mit Herz, dieses Ferienhaus ist bereit für die nächste erfolgreiche Generation.
Weitere Angebote unter www.GARANT-IMMO.de
Ausstattung
| Anzahl der Etagen im Haus | 3 |
| Balkone | 1 |
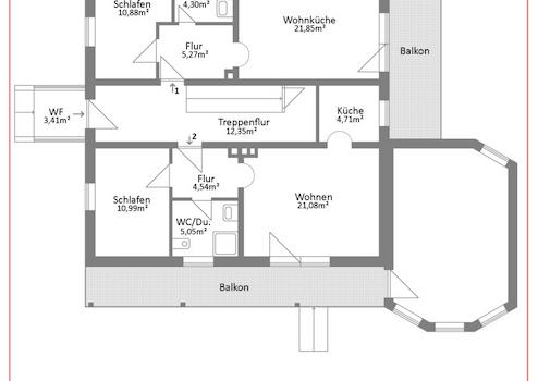
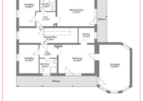
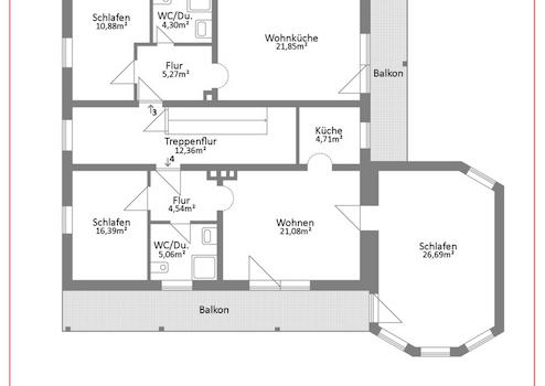
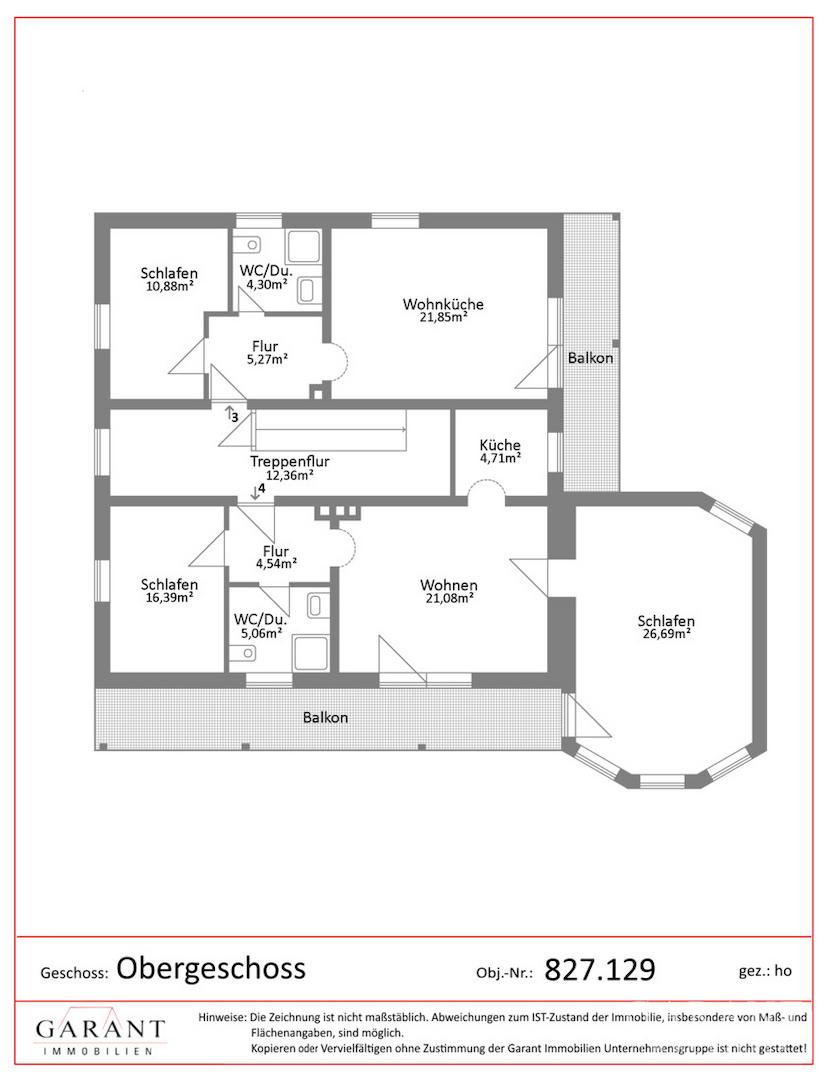
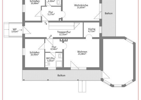
Insgesamt verfügt das Haus über sechs separate Wohnbereiche (Appartements), die ideal, für die Vermietung als hochwertige Ferienwohnungen geeignet sind. Jede Einheit ist als vollwertige Wohnung konzipiert und bietet den Gästen maximalen Komfort und Privatsphäre. Sie bestehen jeweils aus einem gemütlichen Wohnzimmer, einem separaten Schlafzimmer, einer voll ausgestatteten Küche und einem großzügigen Duschbad mit Tageslichtfenster. Fünf der sechs Wohnbereiche verfügen über einen eigenen Balkon, der zum Entspannen im Freien einlädt. Die exklusive Dachgeschosswohnung bietet anstelle eines Balkons eine sehr große, sonnige Terrasse mit hervorragendem Ausblick.
Wäschepflege:
Im Kellergeschoss befindet sich ein gemeinschaftlicher Raum, in dem für die Wohneinheiten mehrere Waschmaschine bereit stehen - ein wichtiger Komfort für Langzeitreisende.
Die Flure und Gemeinschaftsflächen sind mit hochwertigen, rustikalen Möbelstücken dekoriert, die dem Haus ein traditionelles bayrisches Flairverleihen und die gemütliche Atmosphäre unterstreichen.
Wäschepflege:
Im Kellergeschoss befindet sich ein gemeinschaftlicher Raum, in dem für die Wohneinheiten mehrere Waschmaschine bereit stehen - ein wichtiger Komfort für Langzeitreisende.
Die Flure und Gemeinschaftsflächen sind mit hochwertigen, rustikalen Möbelstücken dekoriert, die dem Haus ein traditionelles bayrisches Flairverleihen und die gemütliche Atmosphäre unterstreichen.
Sonstige Informationen
Die Lage spricht insbesondere Erholungssuchende, Naturliebhaber und Aktivurlauber an und stellt somit eine gute Basis für einen Beherbergungsbetrieb dar. Die vorhandene Struktur ermöglicht eine nahtlose Übernahme und Weiterführung des Betriebes als Pension, Bed & Breakfast oder als kleines Hotel.
Durch die flexible Raumaufteilung besteht auch das Potenzial, die Immobilie in ein Mehrgenerationenhaus oder eine Kombination aus großzügigem Privatwohnsitz (Eigentümerwohnung und vermieteten Ferienwohnungen/Zimmern umzuwandeln.
Durch die flexible Raumaufteilung besteht auch das Potenzial, die Immobilie in ein Mehrgenerationenhaus oder eine Kombination aus großzügigem Privatwohnsitz (Eigentümerwohnung und vermieteten Ferienwohnungen/Zimmern umzuwandeln.
Lage des Objektes
Die Gemeinde Haidmühle ist ein anerkannter Luftkurort und liegt idyllisch im sogenannten Dreiländereck Bayern, Tschechien und Österreich, macht die Region zu einem attraktiven Ausgangspunkt für grenzüberschreitende Ausflüge.
Diese Gegend bietet hervorragende Bedingungen für Wandern, Radfahren und Angeln. In den Wintermonaten Ski-Langlaufen, ein direkter Anschluss an Loipen ist möglich.
Die Pension in Haismühle profitiert von einer idealen Kombination aus Ruhe, Naturnähe und bester Anbindung an die touristischen Highlights des Bayrischen Waldes.
Diese Gegend bietet hervorragende Bedingungen für Wandern, Radfahren und Angeln. In den Wintermonaten Ski-Langlaufen, ein direkter Anschluss an Loipen ist möglich.
Die Pension in Haismühle profitiert von einer idealen Kombination aus Ruhe, Naturnähe und bester Anbindung an die touristischen Highlights des Bayrischen Waldes.
Anbieter kontaktieren
Kontakt
| Telefon | 0851/96 67 94-0 |
| Fax | 0851/96 67 94-20 |
| Website | www.garant-immo.de |
