BUERO.flächen mit 189 m² in der Leipziger Innenstadt
16,5 €
Kaltmiete
16,5 €
Kaltmiete (netto)
immobilien.de Nr.: 9291888
Objektnummer: 204/G1/E1/Eh1
Preise & Kosten
| Kaltmiete | 16,5 € |
| Kaltmiete (netto) | 16,5 € |
| Nebenkosten | keine Angabe |
| Mietpreis pro m² | 16,5 € |
| Maklerprovision | provisionsfrei |
Größe & Zustand
| Bürofläche | 189,47 m² |
| Bürofläche | 189,47 m² |
| Fläche teilbar ab | 189,47 m² |
| Verfügbar ab | keine Angabe |
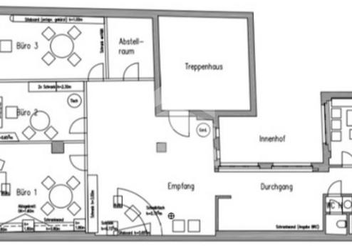
Objektbeschreibung
Das historische 5 geschossige Wohn- und Geschäftshaus ist im Mittelpunkt von Leipzig gelegen, in der Innenstadt. Die Büroeinheiten in den Obergeschossen des Gebäudes werden über einen zentralen Eingangsbereich und einer Aufzugsanlage erschlossen. Die Büroeinheit ist ausgebaut, kann jedoch entsprechend des Raumprofils des Mieters ausgestattet werden. Die Mietbereiche verfügen über folgende Grundausstattung:
- Teeküche
- Datenverkabelung
- Wechselsprechanlage
- separate WC und Sanitärbereiche
Für Ihre Mitarbeiter und Kunden können nach Verfügbarkeit Stellplätze in den umliegenden Tiefgaragen angemietet werden.
- Teeküche
- Datenverkabelung
- Wechselsprechanlage
- separate WC und Sanitärbereiche
Für Ihre Mitarbeiter und Kunden können nach Verfügbarkeit Stellplätze in den umliegenden Tiefgaragen angemietet werden.
Sonstige Informationen
Der Mietpreis richtet sich nach Ausstattung, Lage im Gebäude und Vertragslaufzeit und liegt zwischen 16,50 EUR/m² und 17,50 EUR/m² zzgl. Nebenkosten und richtet sich je nach Ausstattung, Lage im Gebäude und Vertragslaufzeit. Gern unterbreiten wir Ihnen Ihr persönliches Mietangebot.
Büroanmietung leicht gemacht?
Büroanmietung leicht gemacht?
Bitte sprechen Sie uns an, gern stellen wir Ihnen eine Auswahl geeigneter Flächenangebote zusammen. Für Fragen, ein persönliches Gespräch oder auch eine persönliche Terminvereinbarung stehen wir Ihnen gern telefonisch unter 0341 | 5643000 zur Verfügung.
Büroanmietung leicht gemacht?
Büroanmietung leicht gemacht?
Bitte sprechen Sie uns an, gern stellen wir Ihnen eine Auswahl geeigneter Flächenangebote zusammen. Für Fragen, ein persönliches Gespräch oder auch eine persönliche Terminvereinbarung stehen wir Ihnen gern telefonisch unter 0341 | 5643000 zur Verfügung.
Lage des Objektes
Die zentrale Lage und das gewachsene, vielfältige Umfeld haben die historische Innenstadt zu einer der beliebtesten Geschäftsstandorte werden lassen. Alle wichtigen Institutionen, wie das Neue Rathaus, die verschiedensten Banken und die Leipziger Universität sind von hier aus innerhalb weniger Minuten zu erreichen.
