Alpenhotel mit 23 Zimmern und Restaurant - Oberwössen (Achental), nahe Reit im Winkl
2.490.000 €
Kaufpreis
immobilien.de Nr.: 9261272
Objektnummer: 879023
Preise & Kosten
| Kaufpreis | 2.490.000 € |
| Nebenkosten | keine Angabe |
| Maklerprovision | 4,76 % (inkl. MwSt.) |
Größe & Zustand
| Gesamtfläche | 1.480 m² |
| Gastrofläche | 120 m² |
| Grundstücksfläche | 3.700 m² |
| Baujahr | 1972 |
| Verfügbar ab | sofort |
| Zustand | Gepflegt |
Energie
| Energieausweistyp | Verbrauch |
| Ausstellungsdatum | 21. 05. 2023 |
| Baujahr (laut Energieausweis) | 2004 |
| Wesentlicher Energieträger | Öl |
| Energieträger/Befeuerung | Öl |
Objektbeschreibung
Zum Verkauf steht ein Alpenhotel mit 23 Zimmern und Restaurant in Oberwössen im Achental, in unmittelbarer Nähe von Reit im Winkl. Das Hotel wird das ganze Jahr über erfolgreich betrieben, bietet eine stabile Rendite und eine außergewöhnliche Lage sowie Busparkplätze. Die Immobilie befindet sich im Herzen der Bayerischen Alpen nahe der österreichischen Grenze und weist bereits im laufenden Betrieb eine hervorragende Ertragskraft auf. Der Eigentümer veräußert das Objekt aufgrund eines geplanten Auslandsumzugs.
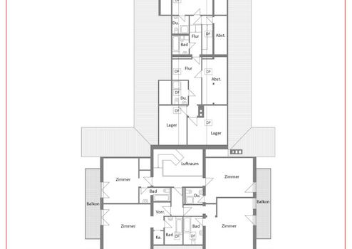
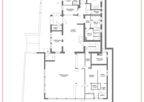
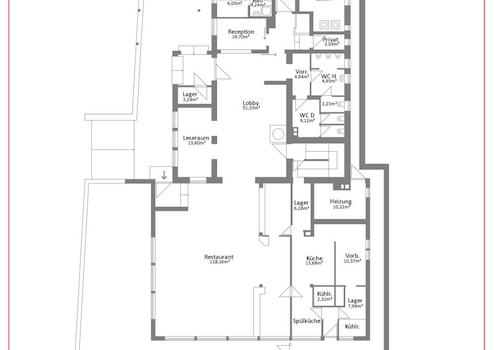
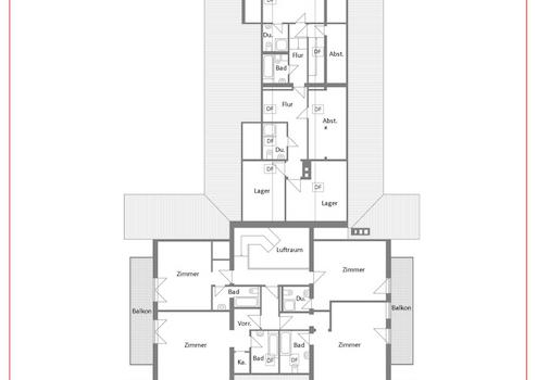
Die Nutzfläche des Hotels beträgt ca. 1.480 m², das Grundstück umfasst rund 3.700 m². Die 23 Gästezimmer wurden zwischen 2012 und 2014 renoviert. Das Restaurant misst ca. 120 m² und bietet Platz für rund 60 Gäste, zusätzlich können auf den Außenterrassen etwa 120 weitere Personen bewirtet werden. Die professionelle, voll ausgestattete Hotelküche ist etwa zwölf Jahre alt. Für die Anreise der Gäste stehen ca. 25 PKW-Stellplätze sowie mindestens zwei Busparkplätze zur Verfügung. Das Gebäude wurde ursprünglich Ende der 1960er-Jahre errichtet und Anfang der 1970er-Jahre erweitert. Es wurde laufend instandgehalten und ist sofort weiter betreibbar.
Der Betrieb verfügt über einen stabilen Gästekreis und eine hohe Auslastung, der Jahresumsatz übersteigt 1 Mio. EUR. Die Rendite liegt in der bestehenden Struktur deutlich über 10 %. Die Gäste kommen sowohl aus dem deutschen als auch aus dem internationalen Freizeitsektor, ergänzt durch Gruppen- und Busreisen. Für die Zukunft bestehen weitere Entwicklungsmöglichkeiten, etwa der Ausbau von Veranstaltungs- und Hochzeitskapazitäten, die Einrichtung von Wellness- und SPA-Bereichen, die Verlängerung der Saison durch spezielle Angebote sowie die Stärkung von Social Media und Direktvertrieb.
Das Hotelgebäude ist in traditionellem alpenländischen Stil mit mehreren Erweiterungen errichtet. Es ist voll erschlossen und verfügt über eine funktionierende Hotelinfrastruktur.
Weitere Angebote unter www.GARANT-IMMO.de
Die Nutzfläche des Hotels beträgt ca. 1.480 m², das Grundstück umfasst rund 3.700 m². Die 23 Gästezimmer wurden zwischen 2012 und 2014 renoviert. Das Restaurant misst ca. 120 m² und bietet Platz für rund 60 Gäste, zusätzlich können auf den Außenterrassen etwa 120 weitere Personen bewirtet werden. Die professionelle, voll ausgestattete Hotelküche ist etwa zwölf Jahre alt. Für die Anreise der Gäste stehen ca. 25 PKW-Stellplätze sowie mindestens zwei Busparkplätze zur Verfügung. Das Gebäude wurde ursprünglich Ende der 1960er-Jahre errichtet und Anfang der 1970er-Jahre erweitert. Es wurde laufend instandgehalten und ist sofort weiter betreibbar.
Der Betrieb verfügt über einen stabilen Gästekreis und eine hohe Auslastung, der Jahresumsatz übersteigt 1 Mio. EUR. Die Rendite liegt in der bestehenden Struktur deutlich über 10 %. Die Gäste kommen sowohl aus dem deutschen als auch aus dem internationalen Freizeitsektor, ergänzt durch Gruppen- und Busreisen. Für die Zukunft bestehen weitere Entwicklungsmöglichkeiten, etwa der Ausbau von Veranstaltungs- und Hochzeitskapazitäten, die Einrichtung von Wellness- und SPA-Bereichen, die Verlängerung der Saison durch spezielle Angebote sowie die Stärkung von Social Media und Direktvertrieb.
Das Hotelgebäude ist in traditionellem alpenländischen Stil mit mehreren Erweiterungen errichtet. Es ist voll erschlossen und verfügt über eine funktionierende Hotelinfrastruktur.
Weitere Angebote unter www.GARANT-IMMO.de
Ausstattung
| Anzahl der Etagen im Haus | 3 |
| Balkone | 1 |
* Massivbau
* Holzfenster mit Isolierglas
* Sauna
* Öl-Zentralheizung
* Kabel-/Sat-TV
* LKW-Zufahrt
* Holzfenster mit Isolierglas
* Sauna
* Öl-Zentralheizung
* Kabel-/Sat-TV
* LKW-Zufahrt
Sonstige Informationen
Diese Investition ist besonders, da sie einen ganzjährigen Betrieb mit stabiler Nachfrage bietet, eine sofort einsatzbereite Hotelinfrastruktur gewährleistet, über großzügige Parkmöglichkeiten auch für Busse verfügt und durch große Terrassen- und Restaurantkapazitäten eine hohe Gästezahl aufnehmen kann.
Besichtigungstermine und die Anforderung eines detaillierten Investorenpakets sind über die angegebenen Kontaktdaten möglich. Ein gültiger Energieausweis sowie eine Beschreibung des Heizsystems liegen bei der Besichtigung vor. Eigentums- und Flächendaten sind nach Absprache erhältlich, die Lastenfreiheit oder etwaige Belastungen werden im Datenraum offengelegt. Eine persönliche Besichtigung ist nach Absprache und Unterzeichnung einer NDA vorgesehen; anschließend stehen der vollständige Datenraum und die Finanzunterlagen zur Verfügung.
Besichtigungstermine und die Anforderung eines detaillierten Investorenpakets sind über die angegebenen Kontaktdaten möglich. Ein gültiger Energieausweis sowie eine Beschreibung des Heizsystems liegen bei der Besichtigung vor. Eigentums- und Flächendaten sind nach Absprache erhältlich, die Lastenfreiheit oder etwaige Belastungen werden im Datenraum offengelegt. Eine persönliche Besichtigung ist nach Absprache und Unterzeichnung einer NDA vorgesehen; anschließend stehen der vollständige Datenraum und die Finanzunterlagen zur Verfügung.
Lage des Objektes
Die Lage des Hotels ist das ganze Jahr über attraktiv. Im Winter verläuft die Langlaufloipe direkt am Haus, das Skigebiet Winklmoosalm-Steinplatte ist in nur zehn Autominuten erreichbar. Weitere beliebte Ziele sind St. Johann in etwa 30 Minuten sowie Kitzbühel kurz danach. Im Sommer laden der nahegelegene Wössener See und der Chiemsee zum Baden und Wassersport ein, während zahlreiche Wander- und Radwege abwechslungsreiche Erholung für alle Altersgruppen bieten. Ganzjährig locken Wellness, Gastronomie und ein vielfältiges Kulturangebot Besucher in die Region.
Anbieter kontaktieren
Kontakt
| Telefon | 08031/58 940-0 |
| Fax | 08031/58 940-40 |
| Website | www.garant-immo.de |
