*** Büro/Praxis und Wohnen im eindrucksvollen Villen-Stil ***
595.000 €
Kaufpreis
immobilien.de Nr.: 8871806
Objektnummer: 748072
Preise & Kosten
| Kaufpreis | 595.000 € |
| Nebenkosten | keine Angabe |
| Maklerprovision | 4,16 % (inkl. MwSt.) |
Größe & Zustand
| Bürofläche | 376 m² |
| Grundstücksfläche | 1.098 m² |
| Baujahr | 1998 |
| Verfügbar ab | nach Vereinbarung |
| Zustand | Gepflegt |
Energie
| Energieausweistyp | Verbrauch |
| Ausstellungsdatum | 22. 02. 2021 |
| Baujahr (laut Energieausweis) | 1998 |
| Wesentlicher Energieträger | Flüssiggas |
| Energieträger/Befeuerung | Flüssiggas |
Objektbeschreibung
Das moderne und repräsentative Büro- und Praxisgebäude bietet eine eindrucksvolle und zeitlose Architektur in einem angenehmen und gepflegten Ambiente.
Die Büroräume sind mittlerweile geräumt - Ihrem baldigen Einzug steht also nichts mehr im Wege.
Sie betreten die ansprechenden Büroflächen durch den großzügig gestalteten Eingangs- und Empfangsbereich, als Mitarbeiter oder Kunde fühlt man sich sofort willkommen.
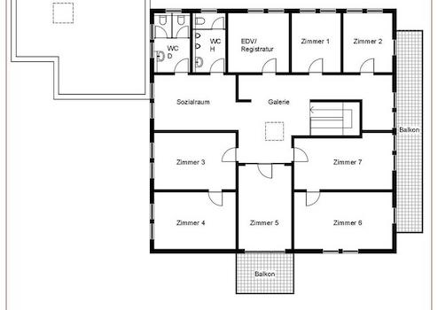
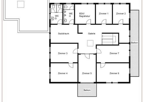
Im Erdgeschoss befinden sich zwei große Büro-/Praxisräume, ein Besprechungsraum sowie neben schöner Teeküche, auch ein großer Mehrzweckraum und WC-Anlage.
Im Obergeschoss stehen Ihnen zusätzlich sieben klimatisierte Büro-/Praxisräume, ein klimatisierter Serverraum und ebenfalls eine Teeküche als Sozialraum zur Verfügung.
Der Grundriss ist kompakt und zweckmäßig angelegt.
So verfügt das Gebäude beispielsweise auf jeder Etage über eine offene Teeküche, sowie über getrennte Sanitärräume auf jedem Stockwerk, sodass auch eine unterschiedliche Nutzung bzw. Vermietung einer Ebene denkbar werden kann, ggf. ist auch eine Teilumnutzung als Wohnraum möglich. (*)
Ein besonderes Highlight dieses Objekts ist die architektonisch ausgefallene Lichtkuppel, welche das Tageslicht bis in den großzügigen Empfangsbereich im Erdgeschoss einfallen lässt.
Zwei offene, moderne Teeküchen fördern die Kommunikation im Team und mit den Kunden.
Durch die Gestaltung mit großzügigen Fensterelementen sind die Flächen und Räume hell und lichtdurchflutet. Die Böden sind mit exklusivem, pflegeleichtem Naturstein ausgestattet, die Büroräume mit hochwertigem, schallhemmendem Teppichboden belegt. Sie bieten ein perfektes Arbeitsklima in inspirierenden, repräsentativen und im Obergeschoss klimatisierten Büroräumen.
Durch die vielseitige mögliche Nutzbarkeit der Flächen und Räume ist dieses Objekt für die unterschiedlichsten Berufsgruppen interessant, z.B. Anwaltskanzleien, Steuerberater, Werbeagenturen, Therapeuten, Ingenieurbüros, Versicherungsdienstleister, Architekten usw.
Weitere Angebote unter www.GARANT-IMMO.de
Die Büroräume sind mittlerweile geräumt - Ihrem baldigen Einzug steht also nichts mehr im Wege.
Sie betreten die ansprechenden Büroflächen durch den großzügig gestalteten Eingangs- und Empfangsbereich, als Mitarbeiter oder Kunde fühlt man sich sofort willkommen.
Im Erdgeschoss befinden sich zwei große Büro-/Praxisräume, ein Besprechungsraum sowie neben schöner Teeküche, auch ein großer Mehrzweckraum und WC-Anlage.
Im Obergeschoss stehen Ihnen zusätzlich sieben klimatisierte Büro-/Praxisräume, ein klimatisierter Serverraum und ebenfalls eine Teeküche als Sozialraum zur Verfügung.
Der Grundriss ist kompakt und zweckmäßig angelegt.
So verfügt das Gebäude beispielsweise auf jeder Etage über eine offene Teeküche, sowie über getrennte Sanitärräume auf jedem Stockwerk, sodass auch eine unterschiedliche Nutzung bzw. Vermietung einer Ebene denkbar werden kann, ggf. ist auch eine Teilumnutzung als Wohnraum möglich. (*)
Ein besonderes Highlight dieses Objekts ist die architektonisch ausgefallene Lichtkuppel, welche das Tageslicht bis in den großzügigen Empfangsbereich im Erdgeschoss einfallen lässt.
Zwei offene, moderne Teeküchen fördern die Kommunikation im Team und mit den Kunden.
Durch die Gestaltung mit großzügigen Fensterelementen sind die Flächen und Räume hell und lichtdurchflutet. Die Böden sind mit exklusivem, pflegeleichtem Naturstein ausgestattet, die Büroräume mit hochwertigem, schallhemmendem Teppichboden belegt. Sie bieten ein perfektes Arbeitsklima in inspirierenden, repräsentativen und im Obergeschoss klimatisierten Büroräumen.
Durch die vielseitige mögliche Nutzbarkeit der Flächen und Räume ist dieses Objekt für die unterschiedlichsten Berufsgruppen interessant, z.B. Anwaltskanzleien, Steuerberater, Werbeagenturen, Therapeuten, Ingenieurbüros, Versicherungsdienstleister, Architekten usw.
Weitere Angebote unter www.GARANT-IMMO.de
Ausstattung
| Anzahl der Etagen im Haus | 2 |
| Balkone | 1 |
* zeitlose, moderne Architektur
* Zwei Balkone und der Blick ins Grüne machen das Objekt zu
etwas Besonderem
* großzügiger Eingangs - und Empfangsbereich
* exklusive Lichtkuppel in Pyramidenform
* Ausbaureserve im Dachgeschoss
* moderne Energietechnik
* große,helle Büros im EG
* klimatisierte Büros im OG (2016)
* hochwertige Bodenbeläge
* zusätzlich ein separater Anbau mit ca. 70 m² Nutzfläche, welcher
durch ein Sektionaltor als Garage oder aber z.B. als Lager (auch
mit Zugang vom Haus) nutzbar ist
* moderne Sanitäranlagen, getrennt
* Zwei offene Teeküchen
* klimatisierter Serverraum mit Serverschrank
* EDV- Verkabelung über Brüstungskanäle
* 8 ausgewiesene Parkplätze direkt am Haus und
* zusätzlich besteht die Parkmöglichkeit für 4 weitere Fahrzeuge
* Zwei Balkone und der Blick ins Grüne machen das Objekt zu
etwas Besonderem
* großzügiger Eingangs - und Empfangsbereich
* exklusive Lichtkuppel in Pyramidenform
* Ausbaureserve im Dachgeschoss
* moderne Energietechnik
* große,helle Büros im EG
* klimatisierte Büros im OG (2016)
* hochwertige Bodenbeläge
* zusätzlich ein separater Anbau mit ca. 70 m² Nutzfläche, welcher
durch ein Sektionaltor als Garage oder aber z.B. als Lager (auch
mit Zugang vom Haus) nutzbar ist
* moderne Sanitäranlagen, getrennt
* Zwei offene Teeküchen
* klimatisierter Serverraum mit Serverschrank
* EDV- Verkabelung über Brüstungskanäle
* 8 ausgewiesene Parkplätze direkt am Haus und
* zusätzlich besteht die Parkmöglichkeit für 4 weitere Fahrzeuge
Sonstige Informationen
(*) Gemäß Baunutzungsverordnung können Wohnungen für Aufsichts- und Bereitschaftspersonen, sowie für Betriebsinhaber und Betriebsleiter, die dem Gewerbebetrieb zugeordnet sind, zugelassen werden. Sollten Räume als Wohnung umgenutzt werden, so ist ein Antrag auf Baugenehmigung im vereinfachten Verfahren im Stadtbauamt der Stadt Brackenheim notwendig.
Lage des Objektes
Die angebotene Immobilie befindet sich im Gewerbegebiet in Stockheim - einem Stadtteil der Stadt Brackenheim - und liegt idyllisch im Zabergäu im südwestlichen Landkreis Heilbronn und ist von Weinbergen umgeben. Die Landschaft prägt der intensiv betriebene Weinbau.
Die Stadt Brackenheim verfügt über eine gut ausgeprägte Infrastruktur mit Kindergärten, verschiedenen Schularten, sowie zahlreichen öffentlichen Einrichtungen. Darüber hinaus gibt es eine Menge freiwilliger Einrichtungen und Angebote für junge Menschen. Das Freizeitangebot ist groß. Ob Wandern, Radfahren mit vielen wunderschönen Touren durch das Zabergäu oder der Besuch in einer gemütlichen Besenwirtschaft - die Stadt bietet Spaß, Unterhaltung und Genuss für Jedermann.
Supermärkte, Apotheken, Banken, aber auch Restaurants und Ärzte aller Art sind direkt im Ort ansässig. Durch die zahlreichen Geschäfte und Einkaufsmöglichkeiten lässt es sich hier wunderbar leben und arbeiten.
Die Stadt Brackenheim verfügt über eine gut ausgeprägte Infrastruktur mit Kindergärten, verschiedenen Schularten, sowie zahlreichen öffentlichen Einrichtungen. Darüber hinaus gibt es eine Menge freiwilliger Einrichtungen und Angebote für junge Menschen. Das Freizeitangebot ist groß. Ob Wandern, Radfahren mit vielen wunderschönen Touren durch das Zabergäu oder der Besuch in einer gemütlichen Besenwirtschaft - die Stadt bietet Spaß, Unterhaltung und Genuss für Jedermann.
Supermärkte, Apotheken, Banken, aber auch Restaurants und Ärzte aller Art sind direkt im Ort ansässig. Durch die zahlreichen Geschäfte und Einkaufsmöglichkeiten lässt es sich hier wunderbar leben und arbeiten.
Anbieter kontaktieren
Kontakt
| Telefon | 07131/64 91 10 |
| Fax | 07131/64 91 120 |
| Website | www.garant-immo.de |
