Hochwertige Hallen- und Bürokombinationen in Neuss zur Miete - ab sofort!
immobilien.de Nr.: 8747800
Objektnummer: 1698_009
Preise & Kosten
| Kaltmiete | 0 € |
| Nebenkosten | keine Angabe |
| Mietpreis pro m² | 10,5 € |
Größe & Zustand
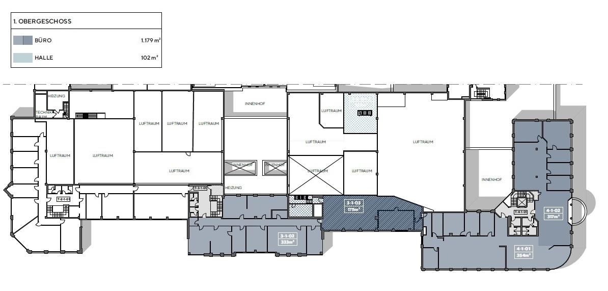
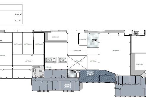
| Gesamtfläche | 821 m² |
| Bürofläche | 821 m² |
| Verfügbar ab | kurzfristig |
Objektbeschreibung
Das Areal ist ein etablierter und gefragter Gewerbepark, dessen Beliebtheit auf die hohe Qualität der ansässigen Mieter zurückzuführen ist. Die markante Architektur der Halle besticht durch ihre hochwertige und detailreiche Gestaltung. Besonders hervorzuheben ist die Flexibilität des Gebäudes, das verschiedene Kombinationen aus Hallen- und Büroflächen bietet und sich damit ideal an unterschiedliche Anforderungen anpassen lässt. Ein integriertes, attraktives Parkhaus rundet das durchdachte Gesamtkonzept ab.
Ausstattung
| Inserat befindet sich im Stockwerk | 2 |
-Moderne und repräsentative Architektur
-Fassaden aus Naturstein, Klinker, Sandwichelemente, Aluminium und Glas
-Fenster mit Isolierverglasung, mit außen elektrischen Sonnenschutzjalousien, teilweise mit innenliegendem Sonnenschutz
-Einfahrts- und Rampentore als elektrisch betriebene Sektionaltore mit Sichtkontaktfenster
-Flexible Raumteilung
-Hochwertiger, stuhlrollenfester Teppich-/Fliesenboden
-Teeküche in jedem Mietbereich vorgerichtet, teilweise ausgestattet
-Abgehängte Decken mit integrierter, arbeitsplatzgerechter Beleuchtung
-In den Büros Fußbodenkanalsysteme
-Aufzüge in den Bürobereichen
-Die lichte Höhe der Hallen beträgt 6,46 m UK Binde, die der Serviceflächen ca. 3,24 m UK Binder
-Die Belastbarkeit in den Hallen- und Servicebereichen beträgt 5 t/m²
-Fahrbereiche in den Außenanlagen für Schwerstlastverkehr geeignet
-Fassaden aus Naturstein, Klinker, Sandwichelemente, Aluminium und Glas
-Fenster mit Isolierverglasung, mit außen elektrischen Sonnenschutzjalousien, teilweise mit innenliegendem Sonnenschutz
-Einfahrts- und Rampentore als elektrisch betriebene Sektionaltore mit Sichtkontaktfenster
-Flexible Raumteilung
-Hochwertiger, stuhlrollenfester Teppich-/Fliesenboden
-Teeküche in jedem Mietbereich vorgerichtet, teilweise ausgestattet
-Abgehängte Decken mit integrierter, arbeitsplatzgerechter Beleuchtung
-In den Büros Fußbodenkanalsysteme
-Aufzüge in den Bürobereichen
-Die lichte Höhe der Hallen beträgt 6,46 m UK Binde, die der Serviceflächen ca. 3,24 m UK Binder
-Die Belastbarkeit in den Hallen- und Servicebereichen beträgt 5 t/m²
-Fahrbereiche in den Außenanlagen für Schwerstlastverkehr geeignet
Sonstige Informationen
Auf Grund der im weiteren Verlauf der Jagenbergstraße kurzfristig erreichbaren BAB Anschlüsse der Autobahnen A46 und A57 verfügt der Standort über eine gute Anbindung an das überregionale Verkehrsnetz.
Darüber hinaus befindet sich die Bushaltestelle der Linie 827 in unmittelbarer Entfernung vom Objekt.
Darüber hinaus befindet sich die Bushaltestelle der Linie 827 in unmittelbarer Entfernung vom Objekt.
Lage des Objektes
In unmittelbarer Nachbarschaft zu Düsseldorf gelegen, bietet das das Objekt äußerst schnelle und direkte Verbindungen. Der Gewerbepark befindet sich im Gewerbegebiet Neuss-Grimmlinghausen und verfügt über eine sehr gute Anbindung an das umliegende Autobahnnetz (A46/A57) des weitern ist der Hauptbahnhof in 10 Minuten Fahrtweg zu erreichen und zum Flughafen beträgt der Fahrtweg 25 Minuten.
Anbieter kontaktieren
Anbieter
corealis Commercial Real Estate GmbH
Hohe Straße 8-10
40213 Düsseldorf
Kontakt
| Telefon | +49(211) 52288470 |
| Fax | +49(211) 52288479 |
| Website | www.corealis.de |
