Flexible Büro- und Hallenflächen in der Hafenpforte - Reisholz !
immobilien.de Nr.: 8684943
Objektnummer: 6423
Preise & Kosten
| Kaltmiete | 0 € |
| Nebenkosten | keine Angabe |
| Mietpreis pro m² | 11,5 € |
| Kaution | Bankbürgschaft |
Größe & Zustand
| Gesamtfläche | 13.171,14 m² |
| Bürofläche | 521 m² |
| Baujahr | 1983 |
| Verfügbar ab | kurzfristig |
Energie
| Heizungsart | Zentralheizung |
Objektbeschreibung
Die Gewerbeimmobilie Hafenpforte bietet repräsentative Hallen- und Büroflächen mit besonderer Hafenatmosphäre. Das Gebäude wurde 1983 errichtet und in den letzetn Jahren umfangreich renoviert.
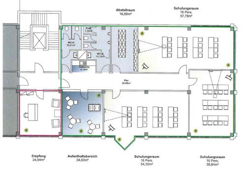
Die besondere Stärke der Hafenpforte liegt in der vielfältigen Teilbarkeit und Kombinierbarkeit alle Ebenen. Bei idealen Rastermaßen lassen sich Einzel-, Gruppen und Großraumbüros mit einer Größe von bis zu 250 m² gleichermaßen elegant darstellen. Mit einer individuellen Raumplanung setzen wir Ihre Vorstellungen optimal um.
Die Büroeinheit in der vierten Etage verfügt über eine 55,6 m² große Dachterrasse, welche zu 50% mit der Bürofläche berechnet wird.
Die besondere Stärke der Hafenpforte liegt in der vielfältigen Teilbarkeit und Kombinierbarkeit alle Ebenen. Bei idealen Rastermaßen lassen sich Einzel-, Gruppen und Großraumbüros mit einer Größe von bis zu 250 m² gleichermaßen elegant darstellen. Mit einer individuellen Raumplanung setzen wir Ihre Vorstellungen optimal um.
Die Büroeinheit in der vierten Etage verfügt über eine 55,6 m² große Dachterrasse, welche zu 50% mit der Bürofläche berechnet wird.
Ausstattung
| Boden | Teppich |
| Fahrstuhl |
- inkl. anteiliger Terrassenfläche ca. 244,68 m²
- Büro: ca. 216,68 m²
- Terrasse: ca. 55,60 m²
- Renoviert
- Neuer Bodenbelag Vinyl
- neue Klimatisierung
- Büro: ca. 216,68 m²
- Terrasse: ca. 55,60 m²
- Renoviert
- Neuer Bodenbelag Vinyl
- neue Klimatisierung
Lage des Objektes
Von der Düsseldorfer City aus gesehen fahren Sie knapp 8 Seemeilen flußaufwärts und machen am Reisholzer Hafen fest. Hier in exponierter Portallage kaum sieben Kilometer Luftlinie von der City haben Sie viele Probleme wie Kostendruckl, Effizienz und Erreichbarkeit elegant umschifft. Vor allem aus verkehrstechnischer Sicht bietet die Hafenpforte im Süden von Düsseldorf viele Vorteile.
Anbieter kontaktieren
Anbieter
corealis Commercial Real Estate GmbH
Hohe Straße 8-10
40213 Düsseldorf
Kontakt
| Telefon | +49(211) 52288470 |
| Fax | +49(211) 52288479 |
| Website | www.corealis.de |
