Lager mit Büro zu mieten in Babelsberg Süd
6.067,5 €
Kaltmiete
6.067,5 €
Kaltmiete (netto)
7.934,5 €
Warmmiete
5
Zimmer
immobilien.de Nr.: 8339177
Objektnummer: ITI 12152
Preise & Kosten
| Kaltmiete | 6.067,5 € |
| Kaltmiete (netto) | 6.067,5 € |
| Warmmiete | 7.934,5 € |
| Nebenkosten | 1867 € |
| Mietpreis pro m² | 13 € |
| Maklerprovision | provisionsfreie Vermietung |
| Kaution | 3 Warmmieten |
Größe & Zustand
| Gesamtfläche | 466,72 m² |
| Bürofläche | 466,73 m² |
| Bürofläche | 466,73 m² |
| Zimmer | 5 |
| Baujahr | 1996 |
| Verfügbar ab | Nach Vereinbarung |
| Zustand | Gepflegt |
Energie
| Energieausweistyp | Verbrauch |
| Ausstellungsdatum | 06. 07. 2022 |
| Gültig bis | 07-2032 |
| Energieeffizienzklasse | C |
| Energieverbrauchkennwert | 75.3 kWh/(m²*a) |
| Heizungsart | Zentralheizung |
| Wesentlicher Energieträger | Gas |
| Energieträger/Befeuerung | Gas |
Objektbeschreibung
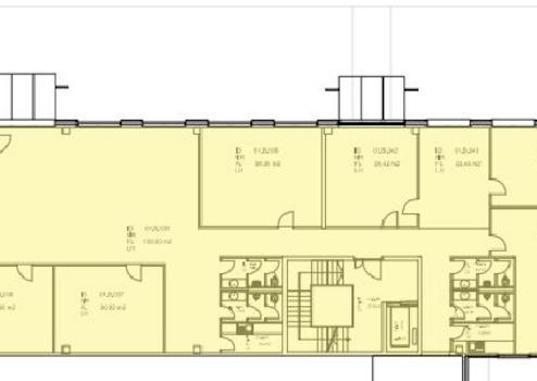
- Lager ist ca. 220 m² groß
Ausstattung
| Boden | Linoleum |
| Fahrstuhl |
- Neubau
- Fahrstuhl und Lastenaufzug vorhanden
- Vinylboden in den Büros
- Zwei Einbauküchen
- Zwei Herren und Damen WC
- drei Lagerräume vorhanden
- Fünf Büroräume
- Zentralheizung
- Fahrstuhl und Lastenaufzug vorhanden
- Vinylboden in den Büros
- Zwei Einbauküchen
- Zwei Herren und Damen WC
- drei Lagerräume vorhanden
- Fünf Büroräume
- Zentralheizung
