Gewerbe mit Potential - Direkt am Duissernplatz
1.950 €
Kaltmiete
immobilien.de Nr.: 7980102
Objektnummer: DU/GEWE/Gast/Dup9/EG/655 (1/655)
Preise & Kosten
| Kaltmiete | 1.950 € |
| Nebenkosten | 350 € |
| Kaution | 4.000 € |
Größe & Zustand
| Gastrofläche | 150 m² |
| Verfügbar ab | keine Angabe |
Energie
| Heizungsart | Zentralheizung |
| Energieträger/Befeuerung | Gas |
Objektbeschreibung
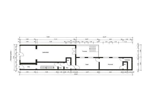
Das Gewerbe befindet sich im Erdgeschoss in einem Mehrfamilienhaus mit 3 Wohneinheiten. Das Objekt ist renovierungsbedürftig und wird ensprechend dem Nutzungskonzept des neuen Mieters in Abstimmung renoviert und umgebaut. Unseres erachtens wären die Räumlichkeiten ideal für ein Bistro, Baguetteria, Vinothek, oder ähnliches.
Sonstige Informationen
Wir empfehlen eine für Sie unverbindliche Innenbesichtigung des Objektes. Der Termin hierfür muss jedoch vorher telefonisch mit unserem Büro abgesprochen werden.
Der Energieausweis kann bei Besichtigung eingesehen werden.
Sämtliche Angebote und Angaben erfolgen freibleibend und nach bestem Wissen. Zwischenverkauf und Irrtum vorbehalten
Unsere Öffnungszeiten:
Montags, Dienstags und Donnerstags von 9.00 - 13.00 Uhr und von 14.00 - 16.00 Uhr
sowie
Mittwochs und Freitags von 9.00 - 14.00 Uhr
Der Energieausweis kann bei Besichtigung eingesehen werden.
Sämtliche Angebote und Angaben erfolgen freibleibend und nach bestem Wissen. Zwischenverkauf und Irrtum vorbehalten
Unsere Öffnungszeiten:
Montags, Dienstags und Donnerstags von 9.00 - 13.00 Uhr und von 14.00 - 16.00 Uhr
sowie
Mittwochs und Freitags von 9.00 - 14.00 Uhr
Anbieter
Immobilien Brinker GmbH
Falkensteinstr. 118
46047 Oberhausen
Kontakt
| Telefon | +49 208 201415 |
| Fax | +49 208 201419 |
| Website | www.immobilien-krause.de |
