Elegantes Gewerbehaus mit viel Getsaltungspotential
2.349.000 €
Kaufpreis
14
Zimmer
immobilien.de Nr.: 7549844
Objektnummer: 2369
Preise & Kosten
| Kaufpreis | 2.349.000 € |
| Nebenkosten | keine Angabe |
| Maklerprovision | 7,140% des Kaufpreises zzgl. MwSt. |
Größe & Zustand
| Gesamtfläche | 550 m² |
| Bürofläche | 505 m² |
| Grundstücksfläche | 730 m² |
| Zimmer | 14 |
| Baujahr | 2000 |
| Verfügbar ab | keine Angabe |
| Zustand | Voll Saniert |
Energie
| Energieausweistyp | Bedarfsausweis |
| Ausstellungsdatum | 28. 06. 2031 |
| Gültig bis | 28-06-2031 |
| Endenergiebedarf | 100 |
| Heizungsart | Zentralheizung |
| Wesentlicher Energieträger | Gas |
| Energieträger/Befeuerung | Gas |
Objektbeschreibung
Hierbei handelt es sich um ein exklusives Gewerbehaus was im Jahre 2000 Saniert und erweitert wurde. Diese Gewerbeimmobilie wurde ehemals als Bank genutzt und dient aktuell als Firmenzentrale mit einer Einliegerwohnung. Das Objekt wird bezugsfrei übergeben und kann Eigen genutzt werden oder neu vermietet werden.
Die hochwertige Ausstattung repräsentiert ein solides Unternehmen und gibt den Kunden Seriosität und Wiedererkennungswert. Dieses Objekt könnte Ihr neuer Standort werden mit genug Platz und einer Einliegerwohnung.
Des weiteren gibt es die Möglichkeit, dieses Objekt als Wohn- und Geschäftshaus zu nutzen.
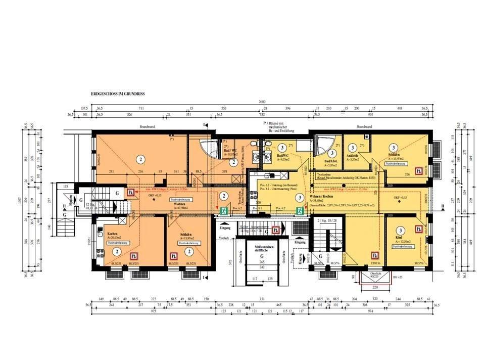
Im Jahre 2020 wurde eine Umwidmung zu eine gemischte Wohn und Gewerbe Immobilie eingereicht mit 4 Wohneinheiten + einer Gewerbeeinheit. Siehe Grundriss laut AB. Die Umbaukosten können vom Architekten zur Verfügung gestellt werden.
Das Objekt wird Bezugsfrei übergeben und kann nach Ihren Wunsch optimiert werden ( Eigennutzung, Neu Vermietung )
Die hochwertige Ausstattung repräsentiert ein solides Unternehmen und gibt den Kunden Seriosität und Wiedererkennungswert. Dieses Objekt könnte Ihr neuer Standort werden mit genug Platz und einer Einliegerwohnung.
Des weiteren gibt es die Möglichkeit, dieses Objekt als Wohn- und Geschäftshaus zu nutzen.
Im Jahre 2020 wurde eine Umwidmung zu eine gemischte Wohn und Gewerbe Immobilie eingereicht mit 4 Wohneinheiten + einer Gewerbeeinheit. Siehe Grundriss laut AB. Die Umbaukosten können vom Architekten zur Verfügung gestellt werden.
Das Objekt wird Bezugsfrei übergeben und kann nach Ihren Wunsch optimiert werden ( Eigennutzung, Neu Vermietung )
Ausstattung
| Bad | 3 |
| Bad | Dusche, Wanne, Fenster |
| Boden | Fliesen |
| Balkone | 2 |
| Terrassen | 0 |
| Carport | 4 |
| Keller |
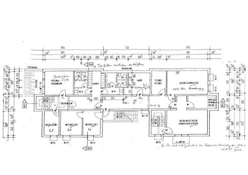
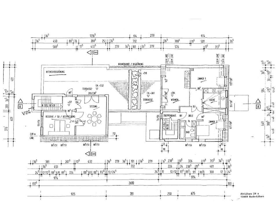
Diese ansprechende Gwerbeimmobilie ist mit hochwertigen Feinsteinmaterial verbaut worden und im Erdgeschoss mit einem großzügigem Entrée. Im Rückwärtigen Bereich stehen 3 Büroräume mit Glaselementen zur Verfügung. Über die Edelstahltreppe gelangt man in die Chefetage. Im Vorderen Bereich gelingt man durch einer seperaten Treppe in die Einliegerwohnung. Im Untergeschoss befinden sich die Personal-Pausenräume, Sanitäranlagen , sowie ein Konferenzraum.
Im gesamten Objekt sind hochwertige Materialien verbaut worden.
Im gesamten Objekt sind hochwertige Materialien verbaut worden.
Lage des Objektes
Das Mehrfamilienhaus befindet sich mitten im Herzen Lübars. Eine Dorfstruktur mit viel Natur und Geschichte zwischen Großstadt und ländliche Natur. Die Verkehrsanbindung ist durch die Nähe zur A111 und weiterführenden Stadtautobahn trotz der viel Grünflächen besonders gut. Vor der „Haustür“ gelingt man bequem mit dem Bus in 5 Minuten zur nächst liegenden S Bahn Station "Waidmanslust" Die nähere Umgebung ist Infrastrukturell gut versorgt mit Schulen, ärztlichen Einrichtungen und Lebensmittelgeschäfte sowie Einkaufsmöglichkeiten.
Hier gibt es noch echte Pferdestärken, einen historischen Dorfkern, Reiter Höfe, Stallungen und funktionierende Bauernhöfe. Entspannung findet hier jeder, ob auf Reit-, Wander- und Radwegen oder im Freizeit- und Erholungspark Lübars mit Liege- und Spielwiesen und im Winter mit flutlichtbeleuchtete Rodelbahn
Hier gibt es noch echte Pferdestärken, einen historischen Dorfkern, Reiter Höfe, Stallungen und funktionierende Bauernhöfe. Entspannung findet hier jeder, ob auf Reit-, Wander- und Radwegen oder im Freizeit- und Erholungspark Lübars mit Liege- und Spielwiesen und im Winter mit flutlichtbeleuchtete Rodelbahn
Anbieter kontaktieren
Anbieter
Hamilton Immobilien GmbH
Mahlsdorfer Str. 96 d
12555 Berlin
Kontakt
| Telefon | +49(030) 692098562 |
| Fax | +49(5247) 9830990 |
| Website | www.hamilton-immobilien.de |
