1 Zimmer

71134 Aidlingen, Baden-Württemberg
Frei ab: 11.05.2026
560 € Kaltmiete
14,00 € Preis/m² ca.
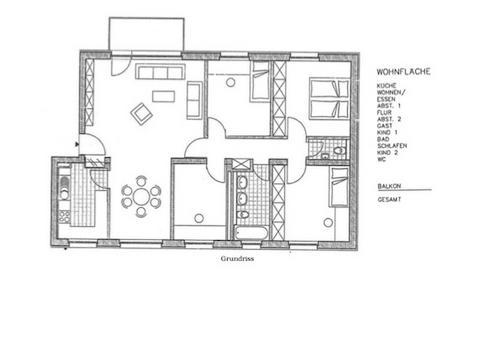
Wohnfläche
40 m²
Zimmer
1
Etage
0
Einbauküche
Balkon
Terrasse
Keller

Mietpreis & Nebenkosten

Kaltmiete (netto)560 €
Nebenkosten 50 €
Heizkosten100 €
Kaution 1.680 €
Stellplatz Freiplatz Miete50 €

Wohnfläche, Grundstück & Bausubstanz

Wohnfläche40 m²
Zimmer1
Etagen3
Stockwerk0
Baujahr1996
Verfügbar ab 11.05.2026
ZustandTeil Vollrenoviert

Beschreibung der Immobilie

Charmante und sehr helle Wohnung mit großzügiger Terrasse in ruhiger Lage auf dem Sonnenberg in Aidlingen. Die Terrasse ist verhältnismäßig gross (ca. 12m2). Sie haben einen Aussenstellplatz und im Keller sehr viel Stauraum.

Ausstattungsmerkmale

KücheEinbauküche
Bad1
Bad (Ausstattung)Dusche
BodenFliesen
Balkone0
Terrassen1
KellerJa
Terrasse, Keller, Duschbad, Einbauküche, Fliesen

Bemerkungen:
Hübsche gebrauchte Küchenzeile mit 2 neuen Induktions-Herdplatten, Dunstabzugshaube, einer Mikrowellen-Backofenkombination und einem Kühlschrank, gebrauchter runder Gartentisch mit Stühlen ist auch vorhanden (alles kein Bestandteil des Mietvertrages!). Bad ist mit Dusche ohne Tageslicht und mit Waschmaschinenanschluss.
Kellerraum ist mit Fenster und viel Platz für allerlei.

Energie

EnergieausweistypVerbrauch
Energieverbrauchkennwert152 kWh/(m²*a)
Heizungsart Zentralheizung
Energieträger/Befeuerung Gas

Karte wird geladen...
71134 Aidlingen – Baden-Württemberg

Lage & Infrastruktur

Mitten auf dem Sonnenberg in schöner Hanglage mit Teilblick in Richtung Würmtal. Auf der großen Gartenterrasse ist morgens herrliche Sonne. Sie wohnen in der Nähe eines wunderschönen Naturschutzgebietes mit guter Anbindung in die Stadt und zur Autobahn. Sehr gut geeignet für Sportler, die gerne Outdoorsport machen oder einfach nur die Natur genießen möchten. Ebenso schnell sind sie aber auch in den umliegenden Städten (Stuttgart, Herrenberg), dafür wäre ein Auto von Vorteil.
Infrastruktur (im Umkreis von 5 km):
Apotheke, Lebensmittel-Discount, Allgemeinmediziner, Kindergarten, Grundschule, Hauptschule, Öffentliche Verkehrsmittel

Sonstige Informationen

Heizungsart: Zentralheizung
Energieträger: Gas

Der Stellplatz kommt auf die Miete, d.h. die Komplettmiete beträgt 760,-Euro!
Bitte beachten Sie, dass wir nur an 100% NICHTRAUCHER und EINZELPERSONEN vermieten!!!
Wir sind ein reines Nichtraucherhaus, Rauchen ist bei uns auch auf dem Balkon/Terrasse auf Grund der Fensterlage zum Schlafzimmer der anderen Wohnungen (oberhalb) unerwünscht!
Wir sind eine harmonische Hausgemeinschaft und so soll es auch bleiben!
Wir helfen uns gegenseitig wenn mal etwas ist, Privatsphäre und Ruhe ist jedoch selbstverständlich!

Benötigte Unterlagen: Einkommensnachweise sowie eine aktuelle Schufa-Auskunft.

ohne-makler (OM) ist weder Anbieter noch Vermittler der Immobilie. OM betreibt eine Plattform für Immobilieneigentümer, die unter anderem die gleichzeitige Veröffentlichung einzelner Inserate auf mehreren Immobilienportalen ermöglicht. Die Inhalte dieser Inserate werden ausschließlich von Dritten verantwortet. Für die Richtigkeit, Vollständigkeit oder Rechtmäßigkeit der Angaben übernimmt OM keine Haftung. Hinweise auf mögliche Rechtsverstöße können jederzeit gemeldet werden und werden nach Prüfung umgehend bearbeitet.
Ansprechpartner/in: Privat von Woelfle
OM PropTech GmbH
Humboldtstraße 25a, 21509 Glinde

Weitere Angebote in Aidlingen