Ruhige 5-Zimmer-Wohnung mit guter U-Bahn/Bus-/Autobahn-Anbindung

61440 Oberursel, Hessen
Frei ab: 01.07.2026
2.000 € Kaltmiete
17,86 € Preis/m² ca.
Wohnfläche
112 m²
Zimmer
5
Etage
2
Einbauküche
Balkon
Terrasse
Keller

Mietpreis & Nebenkosten

Kaltmiete (netto)2.000 €
Nebenkosten 150 €
Heizkosten250 €
Kaution 5.500 €
Stellplatz Freiplatz Miete100 €

Wohnfläche, Grundstück & Bausubstanz

Wohnfläche112 m²
Zimmer5
Etagen3
Stockwerk2
Baujahr1999
Verfügbar ab 01.07.2026
ZustandGepflegt

Beschreibung der Immobilie

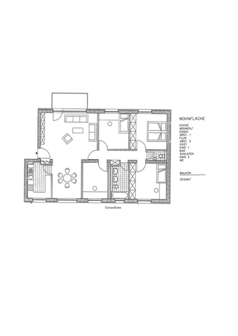
Die ruhige 5-Zimmer-Wohnung liegt in direkter Nähe zur U-Bahn U3 nach Frankfurt. Mehrere Bus-Linien fahren regelmäßig nach Oberursel, Bad Homburg sowie in den Hintertaunus. Die gepflegte ehemalige Offizierswohnung der Camp King-Kaserne mit acht Parteien im Oberurseler Norden wurde 1999/2000 kernsaniert. Die Wohnung verfügt über einen großen Balkon.
Der Keller ist rund 9m² groß und hat Tageslicht sowie Steckdosen. Als Gemeinschaftsräume stehen mehrere Fahrradkeller sowie ein Waschmaschinen- und Trockenraum zur Verfügung. Ein Hausmeisterdienst übernimmt die wöchentliche Treppenhausreinigung, den Winterdienst, die Gartenpflege sowie die Reinigung der Gemeinschaftsräume. Ein direkt vor der Haustür befindlicher Parkplatz mit eigener Ladesäule für E-Autos kann optional dazu gemietet werden.

Ausstattungsmerkmale

KücheEinbauküche
Bad1
Bad (Ausstattung)Wanne
BodenFliesen, Parkett, Laminat
Balkone1
Terrassen0
KellerJa
Balkon, Keller, Vollbad, Einbauküche, Gäste-WC, Parkett, Laminat, Fliesen

Bemerkungen:
Das geräumige Wohnzimmer sowie der angrenzende Ess-Bereich sind durch große Fensterfronten einladend hell und freundlich. Vom Wohnzimmer geht ein 6 qm großer Balkon Richtung Osten ab, der über eine Lampe sowie Steckdosen verfügt. Die einzelnen Schlaf- und Arbeitsträume sind praktisch geschnitten. Das Tageslicht-Bad mit Fenster und deckenhohen Fliesen verfügt über Badewanne, Duschkabine, Waschbecken, Handtuchheizkörper und Toilette, ein separates Gäste-WC mit Heizung und Abluftanlage befindet sich am Ende des Flurs. Einbauschränke im Eingangs- und -Flurbereich bieten nützlichen Stauraum. Die stabile Einbauküche nutzt den vorhandenen Platz optimal und ist mit modernen Marken-Geräten, u.a. mit Induktions-Herd von AEG und Miele-Spülmaschine, ausgestattet. Die größeren Schlafzimmer im hinteren Bereich haben Korkparkett und Lehmputzwände, was für ein sehr gutes, ökologisch unbedenkliches Raumklima sorgt. Jedes Zimmer verfügt über einen Kabelanschluss (Kabel-Internet mit 1GBit/s über Vodafone, ehemals Unitymedia, sind möglich, Glasfaser wird demnächst aktiviert). Alle Fenster sind doppelverglaste Kunststoff-Fenster. Die Zimmer sind mit Rollläden ausgestattet.

Energie

EnergieausweistypVerbrauch
Energieverbrauchkennwert80 kWh/(m²*a)
Heizungsart Zentralheizung
Energieträger/Befeuerung Fernwärme

Karte wird geladen...
61440 Oberursel – Hessen

Lage & Infrastruktur

Die Wohnung liegt in einer ruhigen Sackgasse in der Nähe des Waldes, der zahlreiche Freizeitmöglichkeiten bietet. Fußläufig erreichbar sind ein großer Lebensmittelmarkt, mehrere Lebensmittel-Discounter, Restaurants, Ärzte, Apotheke, Sparkasse, Post sowie vielfältige Inhaber-geführte Geschäfte. Darüber hinaus gibt es einen koreanischen Supermarkt, mehrere koreanische Restaurants, ein koreanisches Café. Mehrere Kindergärten, ein integrativer Kindergarten, Nachmittags-Hort sowie eine Grundschule, Waldorf-Schule und die Frankfurt International School liegen in unmittelbarer Nähe. Mehrere weiterführende Schulen sind in ca. 10 Minuten per Fahrrad, per Bus oder per U-Bahn zu erreichen. Über den nahe gelegenen Autobahnanschluss ist der Flughafen nur etwa 25 Minuten entfernt. Zum Haus gehört ein angrenzender Gemeinschaftsgarten mit Sandkasten und Spielgeräten. Fahrradständer befinden sich vor dem Haus.
Infrastruktur (im Umkreis von 5 km):
Apotheke, Lebensmittel-Discount, Allgemeinmediziner, Kindergarten, Grundschule, Hauptschule, Realschule, Gymnasium, Öffentliche Verkehrsmittel

Sonstige Informationen

Heizungsart: Zentralheizung
Energieträger: Fernwärme


Makleranfragen nicht erwünscht. Nach § 7 UWG sind unaufgeforderte Kontaktaufnahmen durch Makler ohne ausdrückliche Einwilligung des Empfängers verboten!

ohne-makler (OM) ist weder Anbieter noch Vermittler der Immobilie. OM betreibt eine Plattform für Immobilieneigentümer, die unter anderem die gleichzeitige Veröffentlichung einzelner Inserate auf mehreren Immobilienportalen ermöglicht. Die Inhalte dieser Inserate werden ausschließlich von Dritten verantwortet. Für die Richtigkeit, Vollständigkeit oder Rechtmäßigkeit der Angaben übernimmt OM keine Haftung. Hinweise auf mögliche Rechtsverstöße können jederzeit gemeldet werden und werden nach Prüfung umgehend bearbeitet.
Ansprechpartner/in: Privat vom Eigentümer
OM PropTech GmbH
Humboldtstraße 25a, 21509 Glinde

Weitere Angebote in Oberursel