So geräumig hast du noch nie gewohnt - Platzwunder von STREIF.

46284 Dorsten
379.950 € Kaufpreis
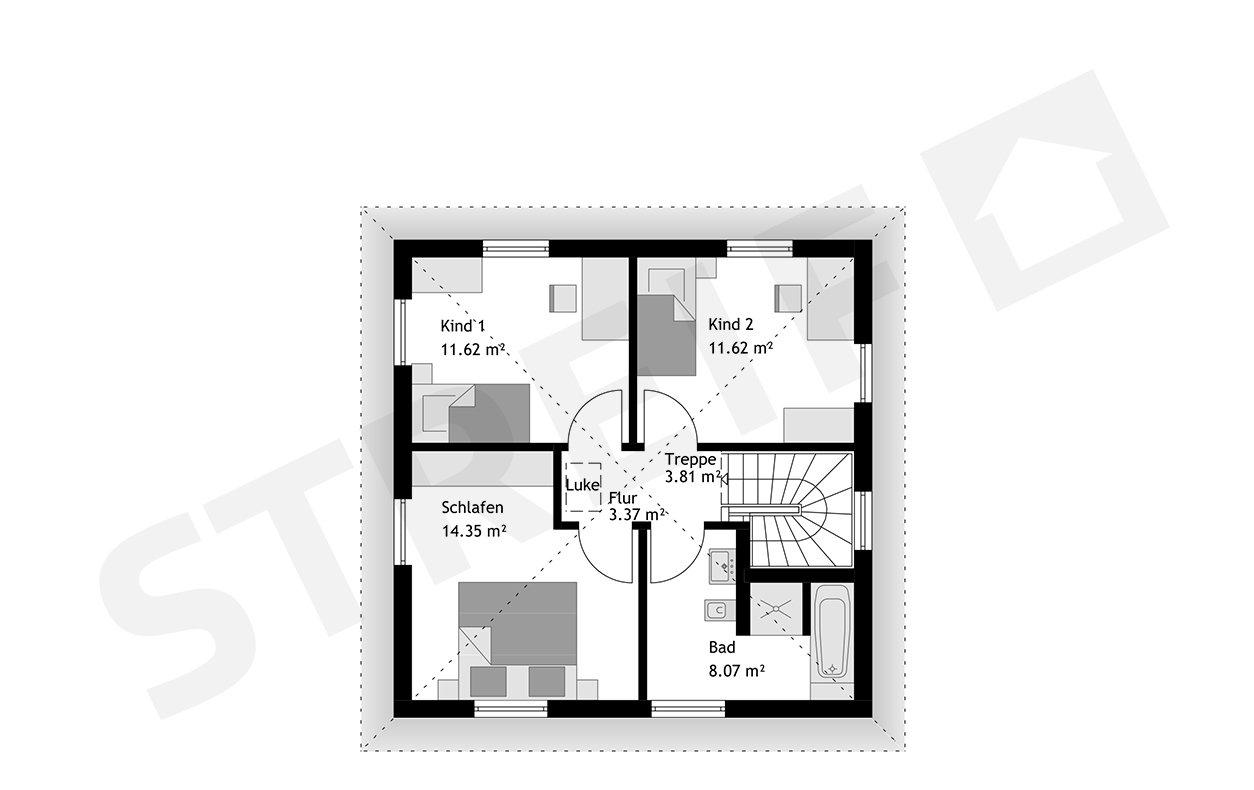
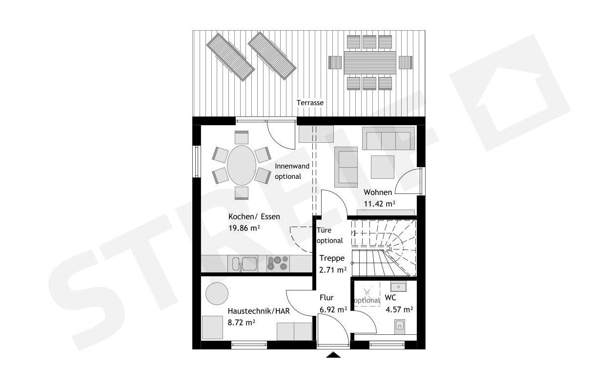
Wohnfläche
107 m²
Zimmer
5

Kaufpreis

Kaufpreis 379.950 €

Wohnfläche, Grundstück & Bausubstanz

Wohnfläche107 m²
Grundstücksfläche3.828 m²
Zimmer5
Etagen2
Verfügbar ab Keine Angabe

Beschreibung der Immobilie

Willkommen in Ihrer neuen Stadtvilla! Dieses traumhafte Fertighaus vereint modernen Komfort mit individueller Gestaltung. Mit einer großzügigen Wohnfläche von 107 m² und 5 Zimmern, darunter 3 Schlafzimmer, 1 Badezimmer und ein zusätzliches Gäste-WC, bietet es Ihnen und Ihrer Familie ausreichend Platz zum Wohlfühlen. Die Stadtvilla erstreckt sich über 2 Etagen und ist auf einem großzügigen Grundstück platziert. Bei STREIF haben Sie die Möglichkeit, Ihre Stadtvilla ganz nach Ihren Vorstellungen zu gestalten, sei es mit einem Flachdach oder Walmdach, in lebendigen Farben oder klassisch dezent. Ihr persönlicher STREIF-Bauberater wird sich die Zeit nehmen, um gemeinsam mit Ihnen die Grundriss- und Raumgestaltung zu entwickeln, damit Ihr neues Zuhause perfekt zu Ihnen passt. Ob Sie eine Dachterrasse wünschen oder spezielle Raumkonfigurationen benötigen - Ihre Wünsche stehen im Mittelpunkt!

Ausstattungsmerkmale

Bad1
Ihr STREIF Haus wird im KfW-Standard ausgeführt. KfW-Effizienzhaus inkl. Haustechnik aus dem STREIF-Programm in der Ausbaustufe FF+ (Fast-Fertig+) exklusive einer Fundamentplatte.

■ Rohbau (geschlossene Gebäudehülle) mit Fenstern, Haustür, Dacheindeckung
■ Außenfassade inkl. Außenputz, vor Ort komplett fertiggestellt
■ Komplette Blechner-/Spenglerarbeiten
■ lnnen-/Außenwände wärme- und schallgedämmt und mit Gipsfaserplatten geschlossen
■ Geschosstreppe (außer Bungalow)
■ Decken wärme- und schallgedämmt und mit Gipskarton Bauplatten geschlossen
■ Elektroinstallation, einschließlich erforderlichem Zählerschrank und Inbetriebnahme
■ Heizungsanlage inkl. Inbetriebnahme
■ Innenfensterbänke Kunststeinbänke (Gussmarmorbänke) inkl. Einbau
■ Estrich
■ Sanitärräume mit Wand- und Bodenfliesen
■ Sanitärräume mit Sanitärobjekten
■ Inklusive Gutschein für eine Designküche.

Die Innentüren sowie Wand-, Decken- und Bodenbeläge der übrigen Räume sind Eigenleistungen des Bauherren.

STREIF Frischluft-Wärmepumpen-Technologie - inklusive
- Heizen mit frischer Außenluft
- Kein Gasanschluss, kein Öl- oder Pelletlagerraum
- Keine Heizkörper
- Wärmetauscher mit bis zu 85% Wärmerückgewinnung

Die dargestellten Bilder können Sonderausstattungen beinhalten, die nicht im Preis enthalten sind!

zzgl. Ortüblicher Baunebenkosten

Selbstverständlich können wir Ihr Haus auch schlüsselfertig / bezugsfertig errichten.
■ Bodenbeläge, Sockelleisten verlegt
■ Maler- und Tapezierarbeiten
■ Innentüren inkl. Einbau

Karte wird geladen...
46284 Dorsten

Lage & Infrastruktur

Die Lage bietet Ihnen alles, was Sie für den Alltag benötigen, von Schulen und Kindergärten bis hin zu Einkaufsmöglichkeiten und Freizeitaktivitäten. Zudem profitieren Sie von einer guten Anbindung an öffentliche Verkehrsmittel und die umliegenden Städte, die eine schnelle Erreichbarkeit gewährleisten.

Sonstige Informationen

Sie wünschen Bauplanung und Begleitung aus einer Hand? Dann sind wir Ihr Baupartner! Wir stehen Ihnen von Anfang an zur Seite und führen Sie auf dem Weg in Ihr neues perfektes Zuhause!

Mit STREIF haben Sie einen Baupartner mit Bau-Know-how, der seit 1929 auf fast 100 Jahre und 100.000 realisierte Wohnträume zurückblicken kann.

Jedes Haus von STREIF wird individuell als Energiesparhaus geplant und gebaut. Eine nachhaltige, ökologische und wohngesunde Bauweise, eine zertifizierte Ausführungsqualität und eine kurze Bauzeit, dafür stehen wir.

Im Anschluss der gemeinsamen Bedarfsermittlung erstellen wir Ihnen Ihren individuellen Planungsvorschlag mit einer detaillierten & realistisch ermittelten Aufstellung der Gesamt-Investition.

Änderung gegen Aufpreis möglich**
Smart-Indi-Paket: Veränderung der Fenster, Spiegelung des Grundrisses und Anbau von Bauteilen sind möglich.

Speedlieferung innerhalb von 8 Monaten*
Auf Wunsch wird ein Terminplan mit Baubeginn innerhalb von 8 Monaten vereinbart. Dabei werden kundenseitige und von STREIF einzuhaltende Maximaltermine definiert.

Die Fundamentplatte wird zum Platzwunder-Aktionspreis angeboten.

Die hohe Wertigkeit und Langlebigkeit eines STREIF-Energiespar-Hauses wird durch zahlreiche Auszeichnungen, Qualitäts- und Gütesiegel unabhängiger Institute und Verbände dokumentiert.

Abbildungen können Sonderausstattungen oder Anbauteile zeigen, die nicht im Lieferumfang/Angebot enthalten sind.
Ansprechpartner/in: Herr Andreas Rogge
STREIF Haus GmbH
Josef-Streif-Straße 1, 54595 Weinsheim

Weitere Angebote in Dorsten