Ihr Platzwunder - warum warten? Jetzt neu durchstarten!

89568 Hermaringen
358.100 € Kaufpreis
Wohnfläche
107 m²
Zimmer
3
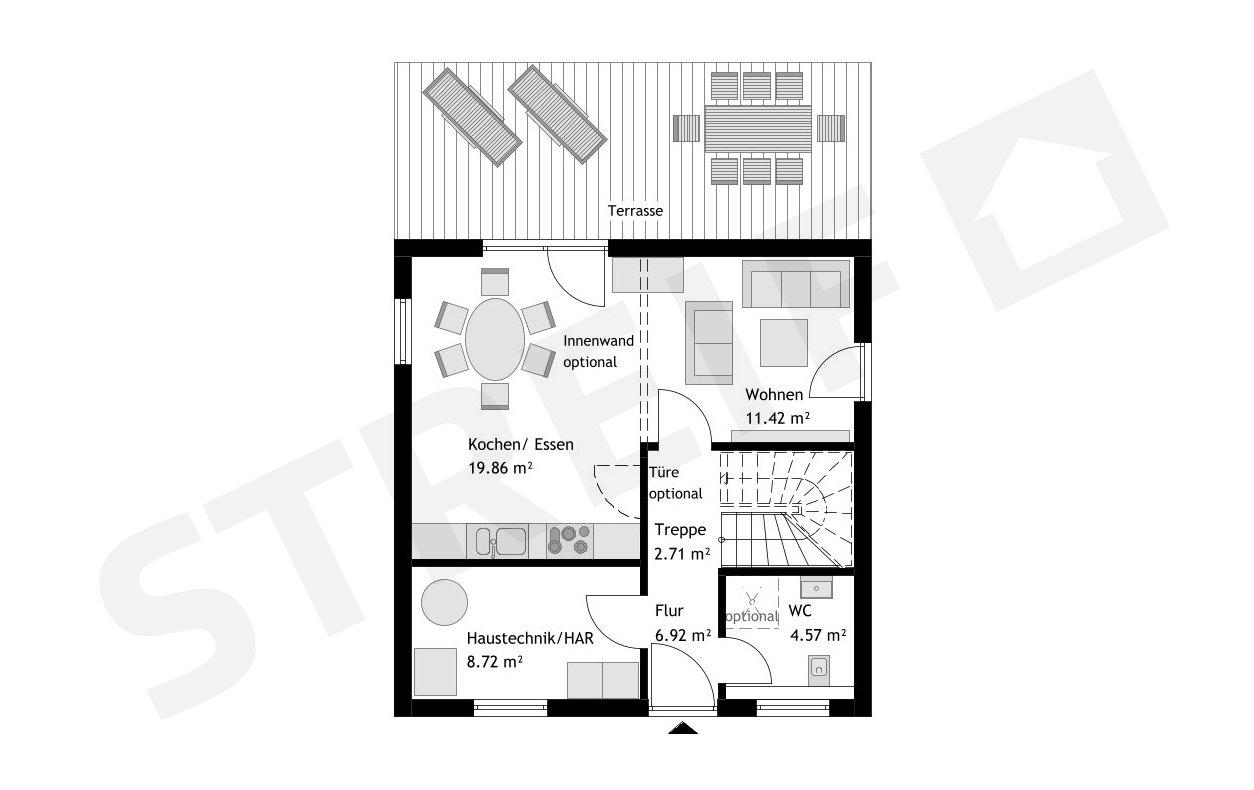
Offene Küche
Stellplatz

Kaufpreis

Kaufpreis 358.100 €
Stellplatz Garage Kaufpreis15.000 €

Wohnfläche, Grundstück & Bausubstanz

Wohnfläche107 m²
Grundstücksfläche487 m²
Zimmer3
Etagen2
Verfügbar ab Keine Angabe

Beschreibung der Immobilie

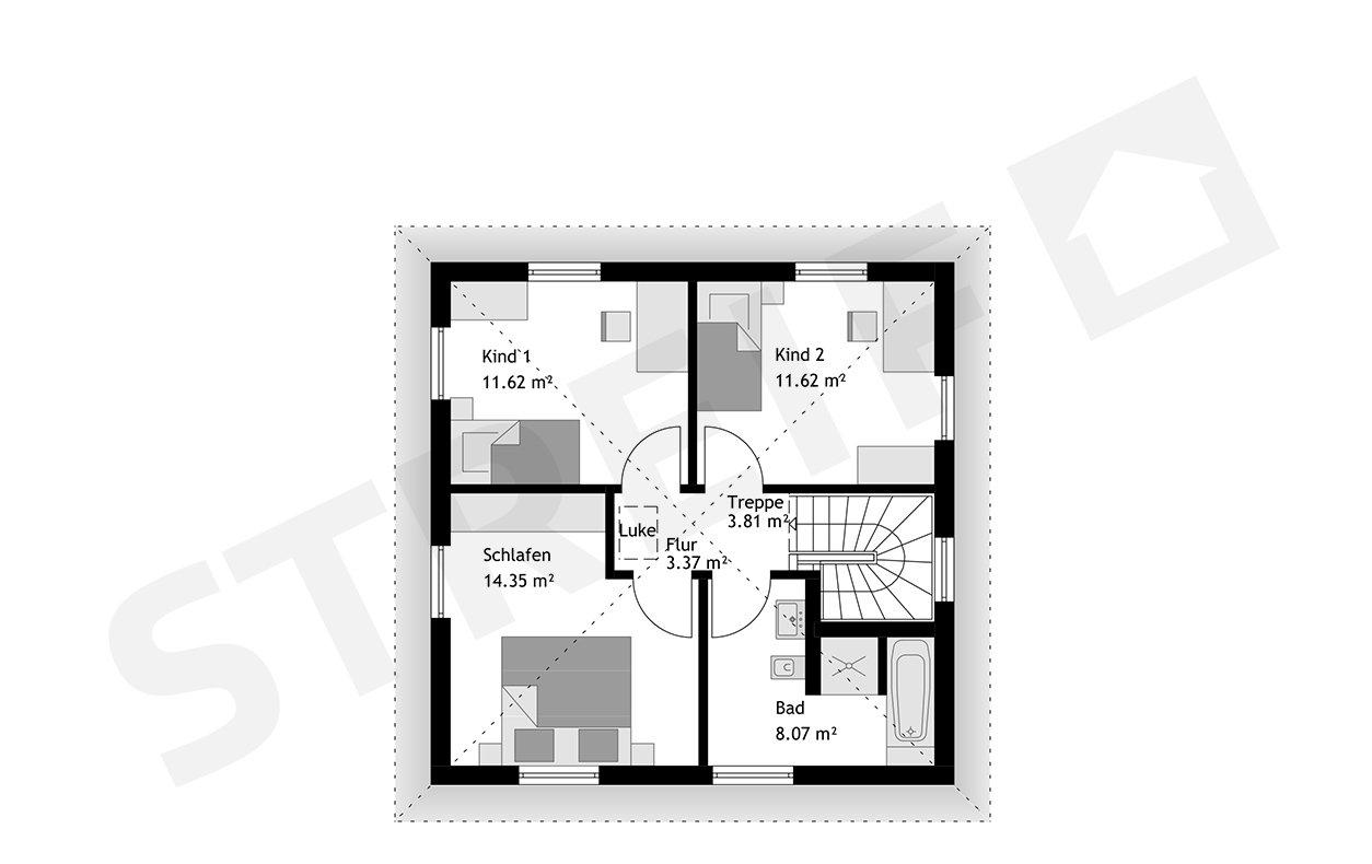
Ein kompakter Grundriss mit drei Schlafzimmern im Obergeschoss und einem optionalen zweiten Duschbad im Erdgeschoss.

Ausstattungsmerkmale

KücheOffene Küche
Bad1
Bad (Ausstattung)Dusche, Wanne, Fenster, Bidet
Garage/Stellplätze1
Ihr STREIF Haus wird im KfW-Standard ausgeführt. KfW-Effizienzhaus inkl. Haustechnik aus dem STREIF-Programm in der Ausbaustufe FF+ (Fast-Fertig+) exklusive einer Fundamentplatte.

■ Rohbau (geschlossene Gebäudehülle) mit Fenstern, Haustür, Dacheindeckung
■ Außenfassade inkl. Außenputz, vor Ort komplett fertiggestellt
■ Komplette Blechner-/Spenglerarbeiten
■ lnnen-/Außenwände wärme- und schallgedämmt und mit Gipsfaserplatten geschlossen
■ Geschosstreppe (außer Bungalow)
■ Decken wärme- und schallgedämmt und mit Gipskarton Bauplatten geschlossen
■ Elektroinstallation, einschließlich erforderlichem Zählerschrank und Inbetriebnahme
■ Heizungsanlage inkl. Inbetriebnahme
■ Innenfensterbänke Kunststeinbänke (Gussmarmorbänke) inkl. Einbau
■ Estrich
■ Sanitärräume mit Wand- und Bodenfliesen
■ Sanitärräume mit Sanitärobjekten
■ Inklusive Gutschein für eine Designküche.

Die Innentüren sowie Wand-, Decken- und Bodenbeläge der übrigen Räume sind Eigenleistungen des Bauherren.

STREIF Frischluft-Wärmepumpen-Technologie - inklusive
- Heizen mit frischer Außenluft
- Kein Gasanschluss, kein Öl- oder Pelletlagerraum
- Keine Heizkörper
- Wärmetauscher mit bis zu 85% Wärmerückgewinnung

Die dargestellten Bilder können Sonderausstattungen beinhalten, die nicht im Preis enthalten sind!

zzgl. Ortüblicher Baunebenkosten

Selbstverständlich können wir Ihr Haus auch schlüsselfertig / bezugsfertig errichten.
■ Bodenbeläge, Sockelleisten verlegt
■ Maler- und Tapezierarbeiten
■ Innentüren inkl. Einbau

Energie

Energietyp KfW-40
Heizungsart Zentralheizung
Energieträger/Befeuerung Luft-Wärme-Pumpe

Karte wird geladen...
89568 Hermaringen

Lage & Infrastruktur

Das Grundstück ist nicht Bestandteil des angegebenen Preises, kann aber auf Wunsch über unsere Partner vermittelt werden.
Vielleicht haben Sie Ihr Wunschgrundstück schon im Blick - wir verwandeln es mit Ihnen zusammen in Ihr ganz persönliches Zuhause.

Sonstige Informationen

STREIF Leistungen sind mehr wert - schon im Grundpreis!

INDIVIDUELLE ARCHITEKTUR
-persönliche Architekten-Planung
-individuelle Grundrissgestaltung ohne Mehrpreis

UNSERE BAUWEISE
-mehrschichtiger diffusionsvariabler Wandaufbau bis U-Wert 0,10 W / m² * K - im Gefach (zwischen den Stielen) gemessen
-hochstabile Innenwand und Konstruktion
-Fenster gesamt: Uw-Wert 0,81 W/m² * K
Glas der Fenster: Ug-Wert 0,6 W/m² * K
-Haustür ab UD-Wert 0,64 W/m² * K
-30 Jahre Garantie auf statisches Tragwerk
-ausschließlich handgemacht in Deutschland
Ansprechpartner/in: Herr Dennis Käppeler
+49 6551 1200
STREIF Haus GmbH
Josef-Streif-Straße 1, 54595 Weinsheim
+49 6551 1200

Weitere Angebote in Hermaringen