Altbau trifft Wohntraum – Großzügige 160 m² Maisonettewohnung mit Dachterrasse in Ostseenähe

23738 Lensahn, Schleswig-Holstein
Frei ab: nach Absprache
1.750 € Kaltmiete
10,94 € Preis/m² ca.
Wohnfläche
160 m²
Zimmer
5
Etage
1
Einbauküche
Balkon
Terrasse

Mietpreis & Nebenkosten

Kaltmiete (netto)1.750 €
Nebenkosten 350 €
Heizkosten enthaltenJa
Kaution 5.250 €

Wohnfläche, Grundstück & Bausubstanz

Wohnfläche160 m²
Zimmer5
Etagen2
Stockwerk1
Baujahr1924
Verfügbar ab nach Absprache
ZustandNeuwertig

Beschreibung der Immobilie

ÜBER DEN DÄCHERN VON LENSAHN – CHARMANTE MAISONETTEWOHNUNG IM STILVOLLEN ALTBAU

Diese außergewöhnliche Maisonettewohnung verbindet historischen Charme mit modernem Wohnkomfort und befindet sich mitten im Herzen von Lensahn. In einer ehemaligen Druckerei aus dem Jahr 1924, die im Jahr 2024 umfassend und hochwertig saniert wurde, entstanden zwei exklusive Wohneinheiten – diese Wohnung begeistert durch Großzügigkeit, Licht und besondere Details.

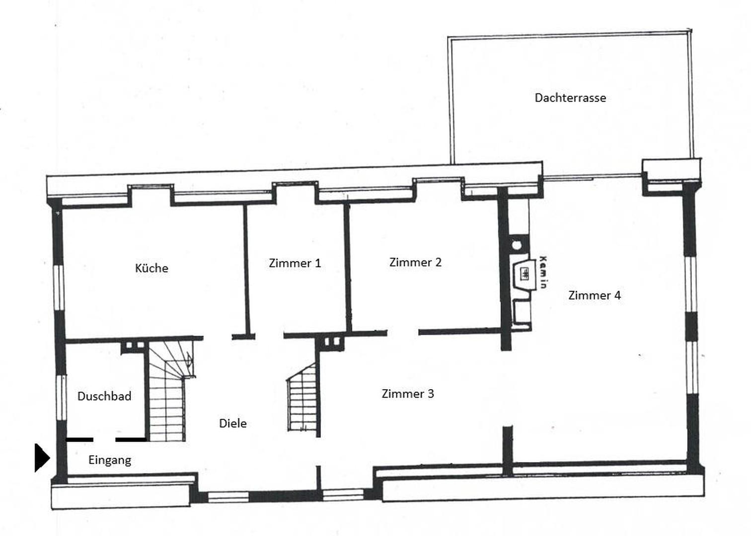
Mit ca. 160 m² Wohnfläche, verteilt auf zwei Etagen, sowie einem separaten Wohnungseingang bietet sie ein Wohngefühl fast wie im eigenen Haus.

WOHNEN & LEBEN AUF 2 EBENEN
Im 1. Obergeschoss erwartet Sie eine moderne, geräumige Wohnküche mit viel Platz für gemeinsames Kochen und Genießen, ein neues Duschbad mit Fenster, ein ruhiges Schlafzimmer, zwei großzügige, miteinander verbundene Wohnräume mit Kamin, die durch ihre Offenheit und Helligkeit beeindrucken sowie der direkte Zugang zur sonnigen Dachterrasse, ideal für entspannte Stunden über den Dächern des liebenswerten Städtchens Lensahn.

Über eine Treppe im Flur gelangen Sie ins Dachgeschoss, wo sich ein ein charmantes Vollbad in Weiß mit dekorativen Rundbogenfenstern, zwei separate Zimmer und ein Durchgangszimmer befinden, ideal als Ankleide, Leseecke oder Spielbereich.

Mietkonditionen

Kaltmiete: 1.750 €
Nebenkosten (inkl. Heizkosten): 350 €
Gesamtmiete: 2.100 €
Stellplatz inkllusive

Mietsicherheit: 5.250 €

Diese besondere Maisonettewohnung überzeugt durch ihren einzigartigen Altbaucharakter, großzügige Raumaufteilung und eine Ausstattung, die keine Wünsche offenlässt: Ein Zuhause für Menschen, die das Besondere suchen!

Ausstattungsmerkmale

KücheEinbauküche
Bad2
Bad (Ausstattung)Dusche, Wanne
BodenFliesen, Kunststoff
Balkone1
Terrassen0
Dachterrasse, Vollbad, Duschbad, Einbauküche, Kamin, Fliesen

Bemerkungen:
HIGHLIGHTS

- ca. 160 m² Wohnfläche auf zwei Ebenen (Maisonette)
- Separater Wohnungseingang für ein hohes Maß an Privatsphäre
- Stilvoll renovierter Altbau (ehemalige Druckerei, Baujahr 1924)
- Großzügige Wohnküche mit modernem Ambiente
- Zwei große, verbundene Wohnräume mit Kamin
- Sonnige Dachterrasse
- Neues Duschbad mit Fenster
- Charmantes, weißes Vollbad im Dachgeschoss mit dekorativen Rundbogenfenstern
- Mehrere flexibel nutzbare Zimmer ideal für Familie, Gäste oder Homeoffice
- Design‑Vinyl‑Böden in warmer Holzoptik (neuwertig)
- Aufgearbeitete Originalholztüren mit Altbau‑Charme
- Lichtdurchflutete Räume mit angenehmer Wohnatmosphäre
- Stellplatz inklusive (im Mietpreis enthalten)
- Zentrale Lage in Lensahn, Ostseenähe

Energie

B
Energieeffizienzklasse B · 56 kWh/(m²*a)
EnergieausweistypBedarfsausweis
EnergieeffizienzklasseB
Endenergiebedarf56
Heizungsart Zentralheizung
Energieträger/Befeuerung Luft-Wärme-Pumpe

Karte wird geladen...
23738 Lensahn – Schleswig-Holstein

Lage & Infrastruktur

Die Wohnung liegt in attraktiver, zentraler Lage in Lensahn. Einkaufsmöglichkeiten für den täglichen Bedarf, Ärzte, Schulen und Kindergärten befinden sich in der näheren Umgebung und sind bequem fußläufig erreichbar.
Lensahn überzeugt durch seine gute Infrastruktur sowie die praktische Anbindung an den öffentlichen Nahverkehr und die Bäderstraße.

Besonders hervorzuheben ist die Nähe zur Ostsee – die beliebten Strände der Lübecker Bucht sind in nur wenigen Fahrminuten erreichbar und laden zu Spaziergängen, Ausflügen und erholsamen Stunden am Meer ein.
Die Kombination aus zentralem Wohnen und Küstennähe macht diese Lage besonders attraktiv.
Infrastruktur (im Umkreis von 5 km):
Apotheke, Lebensmittel-Discount, Allgemeinmediziner, Kindergarten, Grundschule, Hauptschule, Gesamtschule, Öffentliche Verkehrsmittel

Sonstige Informationen

Heizungsart: Zentralheizung
Energieträger: Luft-/Wasserwärme


Makleranfragen nicht erwünscht. Nach § 7 UWG sind unaufgeforderte Kontaktaufnahmen durch Makler ohne ausdrückliche Einwilligung des Empfängers verboten!

ohne-makler (OM) ist weder Anbieter noch Vermittler der Immobilie. OM betreibt eine Plattform für Immobilieneigentümer, die unter anderem die gleichzeitige Veröffentlichung einzelner Inserate auf mehreren Immobilienportalen ermöglicht. Die Inhalte dieser Inserate werden ausschließlich von Dritten verantwortet. Für die Richtigkeit, Vollständigkeit oder Rechtmäßigkeit der Angaben übernimmt OM keine Haftung. Hinweise auf mögliche Rechtsverstöße können jederzeit gemeldet werden und werden nach Prüfung umgehend bearbeitet.
Ansprechpartner/in: Privat von Jochen Werres
OM PropTech GmbH
Humboldtstraße 25a, 21509 Glinde

Weitere Angebote in Beschendorf