+++ Doppelhaushälfte mit zwei Wohnungen und neuwertiger Heizung in guter Lage von Augustfehn! +++

26689 Apen / Augustfehn
Frei ab: nach Vereinbarung
238.000 € Kaufpreis
Wohnfläche
120 m²
Zimmer
5
Terrasse

Kaufpreis

Kaufpreis 238.000 €
Kaufpreis pro m²1983,33 €
MaklerprovisionDie Käuferprovision beträgt 3,57 % inkl. 19 % MwSt. vom beurkundeten Kaufpreis.

Wohnfläche, Grundstück & Bausubstanz

Wohnfläche120 m²
Grundstücksfläche332 m²
Zimmer5
Baujahr1991
Verfügbar ab nach Vereinbarung
ZustandGepflegt

Beschreibung der Immobilie

Diese besondere Doppelhaushälfte in Augustfehn besitzt zwei getrennte Wohneinheiten unter einem Dach - ideal als Mehrgenerationenwohnen oder Wohnen und Vermieten - die Möglichkeiten sind vielseitig!

Gliederung der Räumlichkeiten:

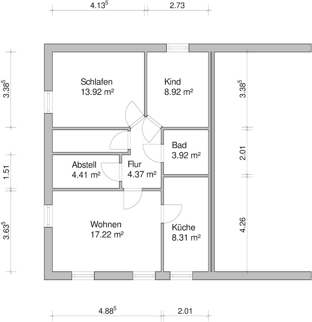
a) Wohneinheit im Erdgeschoss:
Windfang, Eingangsdiele, Küche, Wohnzimmer mit Zugang zur Terrasse, Schlafzimmer und barrierefreies Badezimmer, Abstellraum und Flur.

Die Wohnfläche beträgt ca. 60,65 m².

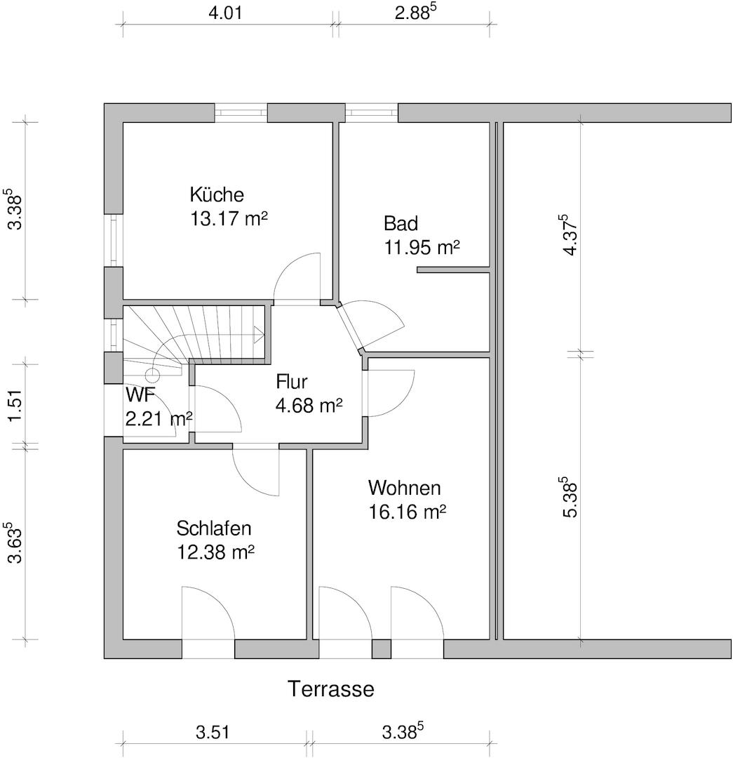
b) Wohneinheit im Dachgeschoss:
Windfang mit Treppenaufgang ins Dachgeschoss, Küche, Wohnzimmer, zwei Schlafzimmer, Badezimmer, Abstellraum und Flurbereich.

Die Wohnfläche beträgt ca. 60,17 m².

Die gesamte Wohnfläche der Doppelhaushälfte beträgt ca. 120,82 m².

Das Verkaufsobjekt wurde im Jahre 1991 in konventioneller Massivbauweise errichtet und überzeugt durch den gepflegten Gesamtzustand.

In 2023 wurde eine neue Heizungsanlage eingebaut.

Die beiden Wohneinheiten sind derzeit separat nutzbar, können bei Bedarf jedoch auch als eine gemeinsame Wohneinheit genutzt werden.

Der kleine Gartenbereich ist optisch ansprechend angelegt und lädt in Kombination mit der überdachten Sonnenterrasse zum Verweilen ein.

Das Haus ist bezugsfrei. Die Übergabe kann kurzfristig erfolgen.
Bei Bedarf kann das Mobiliar übernommen werden.

Ausstattungsmerkmale

Bad2
Bad (Ausstattung)Dusche, Fenster
BodenFliesen, Laminat
Terrassen1

Energie

C
Energieeffizienzklasse C · 89.16 kWh/(m²*a)
EnergieausweistypBedarfsausweis
Gültig bis2035-08-02
Baujahr (laut Energieausweis)1991
EnergieeffizienzklasseC
Endenergiebedarf89.16
Heizungsart Zentralheizung
Wesentlicher EnergieträgerGas

Karte wird geladen...
26689 Apen / Augustfehn

Lage & Infrastruktur

Sämtliche Versorgungseinrichtungen sind wie auch die medizinische Grundversorgung (Allgemeinmediziner, Zahnärzte, Apotheke), Kindergarten, Grundschule, Haupt- und Realschule am Ort und sind bequem in nur wenigen Minuten zu erreichen.

Augustfehn verfügt über einen Bahnhof an der Bahnstrecke Oldenburg - Leer. Von hier fahren Züge im stündlichen Wechsel in beide Richtungen. Der Bahnhof ist zu Fuß in wenigen Minuten zu erreichen.

Die Kreisstadt Westerstede ist ca. 12 km entfernt. Hier befinden sich u.a. die Ammerland-Klinik, Fachärzte, sämtliche Kreisbehörden und das Gymnasium als weiterführende Schule.

Die Anschlussstelle Nr. 4 der Autobahn (BAB 28) ist nur ca. 5 km entfernt. Die Fahrzeiten nach Oldenburg betragen ca. 30 min, nach Bremen ca. 60 min., nach Leer ca. 20 min. und nach Emden ca. 35 min.

Der bekannte Kurort Bad Zwischenahn ist in ca. 15 Auto- bzw. Bahnminuten zu erreichen.

Sonstige Informationen

Zu diesem Objekt liegt ein ausführliches Exposé mit weiteren Detailinformationen vor, das Sie gerne bei uns anfordern können.

Telefonische Erreichbarkeit:
Montag - Freitag: 8.00 Uhr - 12.30 Uhr und 14.00 Uhr bis 17.30 Uhr
Samstag: 9.00 Uhr -12.00 Uhr


Sie möchten Ihre Immobilie verkaufen.....
..... und suchen den passenden Käufer?

Unabhängig davon, ob Sie aktuell oder erst in unbestimmter Zeit Ihre Immobilie verkaufen möchten, ist eine fundierte Beratung bares Geld wert. Wir wissen, worauf es beim professionellen Verkauf Ihrer Immobilie ankommt.

Über 60 Jahre Marktpräsenz und tausende Vermittlungen sprechen für sich.

Für ein kostenfreies und informatives Beratungsgespräch stehen wir Ihnen jederzeit gerne zur Verfügung.
Ansprechpartner/in: Herr Hermann Lott
0049448994080
Hermann Lott, Auktionator und Grundstücksmakler KG
Mühlenstrasse 15, 26689 Apen - Augustfehn
0049448994080

Weitere Angebote in Apen