Zu Hause im Herzen Angelns! Wählen Sie aus 19 Baugrundstücken für Einfamilien- und Doppelhäuser

24986 Mittelangeln, Schleswig-Holstein
139.000 € Kaufpreis
Grundstücksfläche
605 m²

Kaufpreis

Kaufpreis 139.000 €
Maklerprovisionprov.frei

Wohnfläche, Grundstück & Bausubstanz

Grundstücksfläche605 m²
Verfügbar ab Keine Angabe

Beschreibung der Immobilie

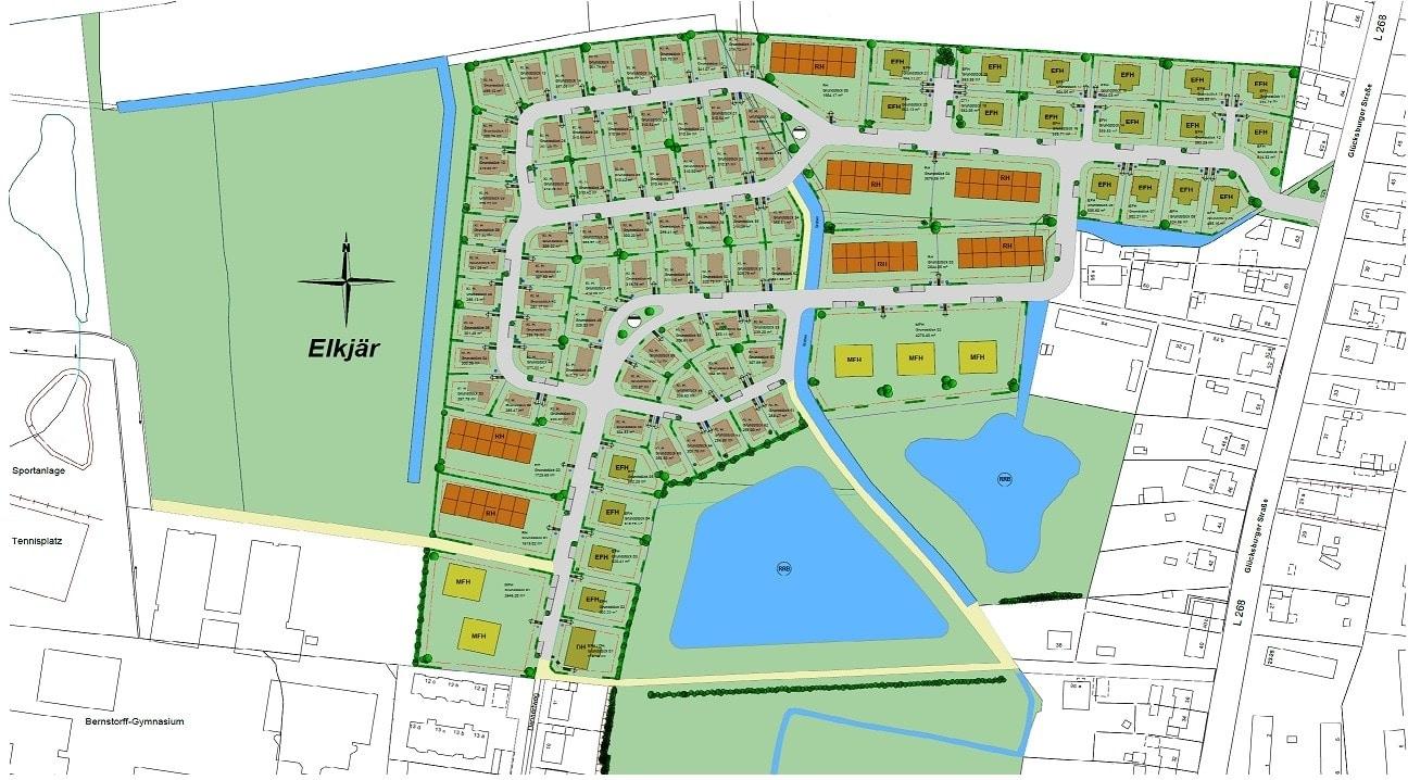
Ein Baugebiet, das in Ihr Leben passt.

Das Baugebiet Elkjär Park in Satrup vereint die Ansprüche an moderne Wohnkonzepte, eine ausgezeichnete Versorgung vor Ort und eine traumhafte Umgebung in der Landschafts Angeln.

Einfamilien- und Doppelhausgrundstücke:
- 19 Grundstücke
- Grundstücksgrößen von ca. 497 m² bis ca. 716 m²
- Kaufpreise: 89.000,-- € bis 140.000,-- €
- ohne Baubindung
- Bauverpflichtung innerhalb von 5 Jahren

Weitere Informationen finden Sie unter https://www.elkjaer.de

Zusätzlich stehen noch weitere Baugrundstücke zur Verfügung.

Kleinsthausgrundstücke:
- 69 Grundstücke
- Grundstücksgrößen von ca. 234 m² bis ca. 500 m²
- Kaufpreise: 57.000,-- € bis 99.000,-- €

Mehrfamilienhausgrundstücke:
- 2 Grundstücke
- Grundstücksgrößen von ca. 2.649 m² und ca. 4.261 m²
- Kaufpreise: 865.000,-- € und 1.120.000,-- €

Reihenhausgrundstücke:
- 5 Grundstücke
- Grundstücksgrößen von ca. 1.569 m² bis ca. 3.517 m²
- Kaufpreise: 342.000,--€ bis 720.000,-- €

Karte wird geladen...
24986 Mittelangeln – Schleswig-Holstein
Ansprechpartner/in: Frau Sonja Jenderny
Nord-Ostsee Sparkasse
Großstr. 7-11, 25813 Husum