Sanieren oder neu bauen? Provisionsfreies Haus und geniales Eckgrundstück in Neu-Ulm Finningen

Dorfstr.56 89233 Neu-Ulm, Bayern
Frei ab: sofort
419.000 € Kaufpreis
Wohnfläche
120 m²
Zimmer
5
Stellplatz

Kaufpreis

Kaufpreis 419.000 €
Maklerprovisionkeine Provision, courtagefrei

Wohnfläche, Grundstück & Bausubstanz

Wohnfläche120 m²
Grundstücksfläche743 m²
Zimmer5
Etagen2
Baujahr1910
Verfügbar ab sofort
ZustandTeil Vollrenovierungsbed

Beschreibung der Immobilie

Vielseitiges Potenzial – Sanierung oder Neubau auf traumhaftem Eckgrundstück

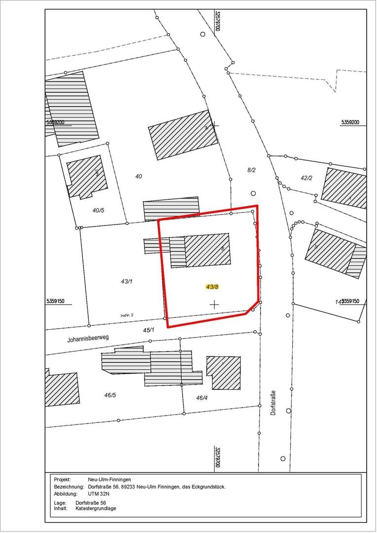
Zum Verkauf steht ein 743 m² großes, voll erschlossenes Eckgrundstück in einer gewachsenen und ruhigen Wohnlage von Neu-Ulm/Finningen (Dorfstraße 56). Durch die attraktive Ecklage und den großzügigen Schnitt bietet dieses Areal hervorragende Voraussetzungen für die Realisierung Ihrer Wohnträume.

Das Grundstück ist derzeit mit einem Altbestand bebaut, was Ihnen für die zukünftige Nutzung zwei völlig unterschiedliche Wege eröffnet:

Option 1: Die umfassende Sanierung
Sie erwecken das bestehende Haus aus seinem Dornröschenschlaf. Das Gebäude bietet Ihnen die Möglichkeit, die Bausubstanz nach Ihren eigenen Vorstellungen von Grund auf zu sanieren, umzubauen und dem Haus als individuell gestaltetes Eigenheim neues Leben einzuhauchen.

Option 2: Abriss und Neubau
Sie entscheiden sich für den Rückbau des Altbestands. Im Gegenzug erhalten Sie ein sehr schönes und ideal geschnittenes Eckgrundstück, das Ihnen als perfekter Bauplatz für Ihr individuelles Neubauprojekt zur Verfügung steht.

Bebaubarkeit & Flexibilität (bei Neubau):
Die Liegenschaft ist nach einem Abriss ideal zur Bebauung mit einem Einfamilienhaus, Doppelhaushälften oder Reihenhäusern geeignet. Die Bebaubarkeit richtet sich planungsrechtlich flexibel nach § 34 BauGB (Nachbarschaftsbebauung). Das bedeutet für Sie: Sie haben große Freiheit, Ihr Bauvorhaben individuell zu planen, sofern sich das neue Gebäude in die Eigenart der näheren Umgebung einfügt.

Ihr Weg zum neuen Eigenheim startet hier.

Gerne beantworten wir Ihre offenen Fragen zum Zustand des Altbestands sowie zu den Bebauungsmöglichkeiten oder zeigen Ihnen das Grundstück bei einer persönlichen Besichtigung. Senden Sie uns dazu einfach eine Kontaktanfrage.

Ausstattungsmerkmale

Bad1
Garage/Stellplätze1


Bemerkungen:
Das bestehende Wohnhaus spiegelt in seiner Bauweise und der aktuellen Ausstattung sein Baujahr wider. Bitte beachten Sie, dass sowohl die Raumhöhen als auch die grundlegenden Raumschnitte nicht mehr dem heutigen, modernen Wohnstandard entsprechen. Die Zimmer fallen vergleichsweise niedrig aus und die Aufteilung ist nach heutigen Maßstäben weniger offen gestaltet.

Energie

Heizungsart Ofen
Energieträger/Befeuerung Holz

Karte wird geladen...
Dorfstr.56
89233 Neu-Ulm – Bayern

Lage & Infrastruktur

Ruhig, naturnah und bestens angebunden. Das Grundstück befindet sich in Neu-Ulm im idyllischen und sehr gefragten Ortsteil Finningen. Finningen vereint naturnahe Ruhe und eine besonders familienfreundliche Umgebung mit einer hervorragenden Anbindung an die städtische Infrastruktur der Doppelstadt Ulm/Neu-Ulm. Die Vorteile der Lage auf einen Blick: Infrastruktur & Familie: Finningen bietet ein sehr behütetes, gewachsenes und familiäres Wohnumfeld. Ein Kindergarten ist vor Ort. Weitere Betreuungsmöglichkeiten, Grundschulen sowie weiterführende Schulen befinden sich in den direkt angrenzenden Stadtteilen (wie z. B. Pfuhl) oder im Neu-Ulmer Zentrum und sind schnell erreichbar. Einkaufen & Versorgung: Sämtliche Geschäfte des täglichen Bedarfs (Supermärkte, Bäckereien), Apotheken und Ärzte finden Sie in den umliegenden Ortsteilen oder in der nur wenige Fahrminuten entfernten Neu-Ulmer Innenstadt. Verkehrsanbindung: Für Pendler ist die Lage ideal. Über die schnell erreichbare B28 sowie das nahegelegene Autobahnkreuz (A7) sind Sie verkehrstechnisch optimal angebunden. Zudem besteht eine regelmäßige Busanbindung. Freizeit & Natur: Wer Naherholung sucht, ist hier genau richtig. Wiesen, Felder und Wälder beginnen fast vor der Haustür und laden zu ausgedehnten Spaziergängen, Joggingrunden oder Radtouren ein. Das aktive Vereinsleben vor Ort bietet zudem schnell Anschluss für Neuankömmlinge.

Sonstige Informationen

Heizungsart: Ofenheizung
Energieträger: Holz
Energieausweis nicht vorhanden


Makleranfragen nicht erwünscht. Nach § 7 UWG sind unaufgeforderte Kontaktaufnahmen durch Makler ohne ausdrückliche Einwilligung des Empfängers verboten!

ohne-makler (OM) ist weder Anbieter noch Vermittler der Immobilie. OM betreibt eine Plattform für Immobilieneigentümer, die unter anderem die gleichzeitige Veröffentlichung einzelner Inserate auf mehreren Immobilienportalen ermöglicht. Die Inhalte dieser Inserate werden ausschließlich von Dritten verantwortet. Für die Richtigkeit, Vollständigkeit oder Rechtmäßigkeit der Angaben übernimmt OM keine Haftung. Hinweise auf mögliche Rechtsverstöße können jederzeit gemeldet werden und werden nach Prüfung umgehend bearbeitet.
Ansprechpartner/in: Privat von Adem Kaplan
OM PropTech GmbH
Humboldtstraße 25a, 21509 Glinde

Weitere Angebote in Neu-Ulm