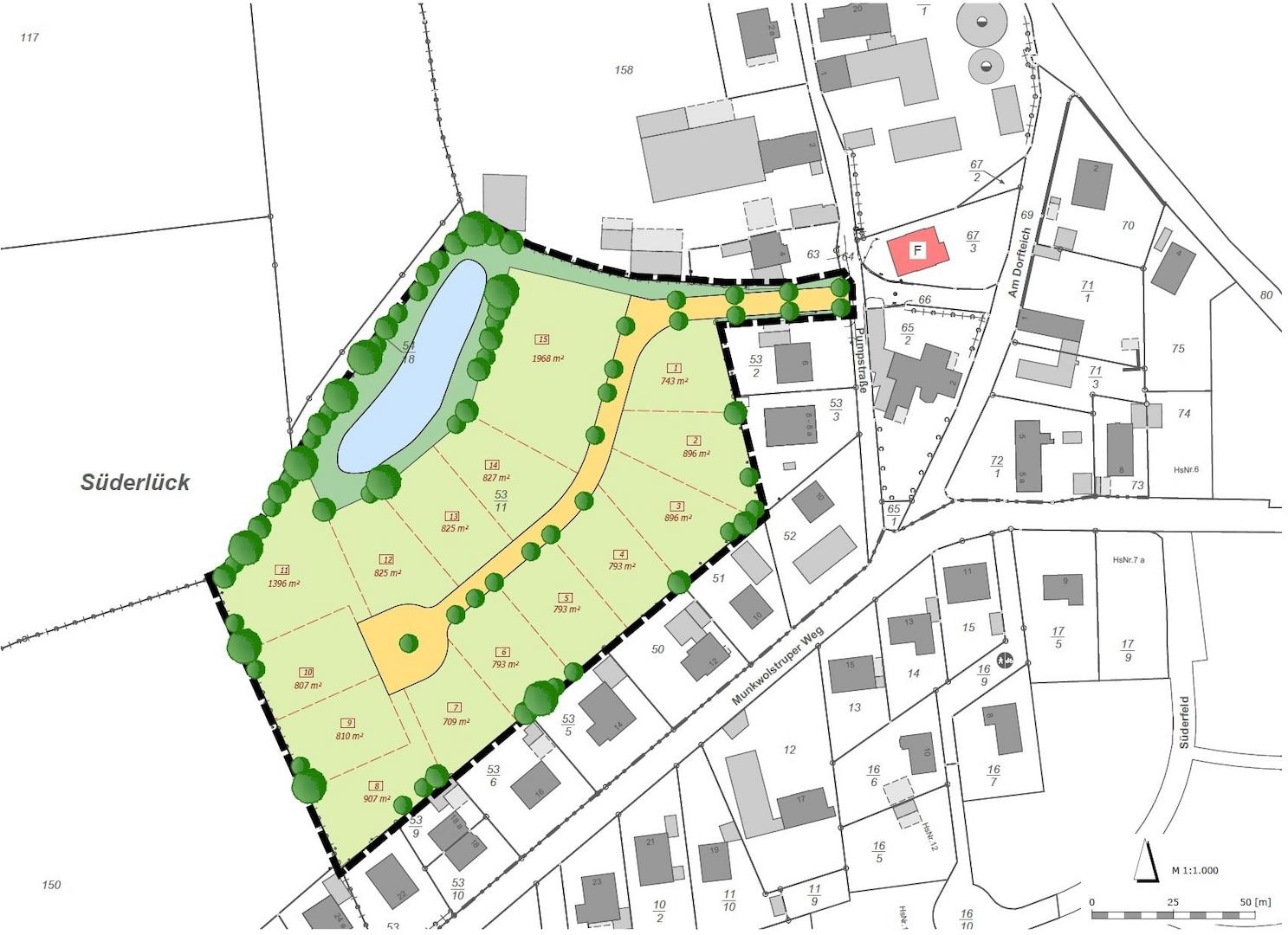
Munkwolstrup - ländlich, lebendig, bestens angebunden! Neubaugebiet mit 15 Grundstücken

24988 Oeversee, Schleswig-Holstein
135.000 € Kaufpreis
Grundstücksfläche
709 m²

Kaufpreis

Kaufpreis 135.000 €
Maklerprovision2,98 %

Wohnfläche, Grundstück & Bausubstanz

Grundstücksfläche709 m²
Verfügbar ab Keine Angabe

Beschreibung der Immobilie

Im Orsteil Munkwolstrup entsteht ein Wohngebiet, das modernen Lebensstil, ruhige Wohnqualität und ein Gefühl von Gemeinschaft miteinander verbindet. Süderlück bietet Raum für individuelle Architektur, grüne Rückzugsorte und ein Wohnumfeld, das von Anfang an einladend wirkt. Hier entsteht ein Ort, an dem Familien wachsen, Paare ankommen und Menschen ihren Lebensmittelpunkt neu gestalten können.

Durchdacht geplant, harmonisch eingebettet:
Die Planung des Baugebiets setzt auf klare Strukturen und eine Architektur, die sich harmonisch in die bestehende Umgebung einfügt. Mit verkehrsberuhigten Wegen, einem modernen Entwässerungskonzept und großzügigen Grundstückszuschnitten entsteht ein Wohnquartier, das Geborgenheit und Offenheit zugleich bietet. Ein Ort, der dazu einlädt, Wurzeln zu schlagen und langfristig zu Hause zu sein.

Grundstücke ab sofort verfügbar:
Mit unterschiedlichen Grundstücksgrößen, flexiblen Nutzungsmöglichheiten und klaren städtebaulichen Leitlinien schafft Süderlück ideale Voraussetzungen für Ihr neues Zuhause. Die Erschließung der Grundstücke hat bereits begonnen und der Baubeginn ist ab Sommer 2026 vorgesehen. Hier entsteht ein Wohngebiet, das Ihnen langfristige Sicherheit und die Freiheit gibt, Ihre Ideen Wirklichkeit werden zu lassen.

Kontaktieren Sie uns noch heute, um weitere Informationen zu erhalten. Wir freuen uns darauf, Ihnen weiterhelfen zu können!

Insgesamt 15 Baugrundstücke, Grundstücksgrößen von ca. 709 m² bis ca. 1.968 m², Grundflächenzahl 0,3 und 0,4, Geschossflächenzahl I und II, Bebauungsplan Nr. 28 "Süderlück", offene Bauweise, Einzel-/Doppelhäuser;

Kaufpreise ab 135.000,- €

Karte wird geladen...
24988 Oeversee – Schleswig-Holstein
Ansprechpartner/in: Frau Sonja Jenderny
Nord-Ostsee Sparkasse
Großstr. 7-11, 25813 Husum