***Charmante Doppelhaushälfte links-mit viel Charme und Platz mit Klinkeraktion ***

24149 Bornhöved
Frei ab: 2026
402.536 € Kaufpreis
Wohnfläche
127 m²
Zimmer
4
Offene Küche
Terrasse
Barrierefrei

Kaufpreis

Kaufpreis 402.536 €

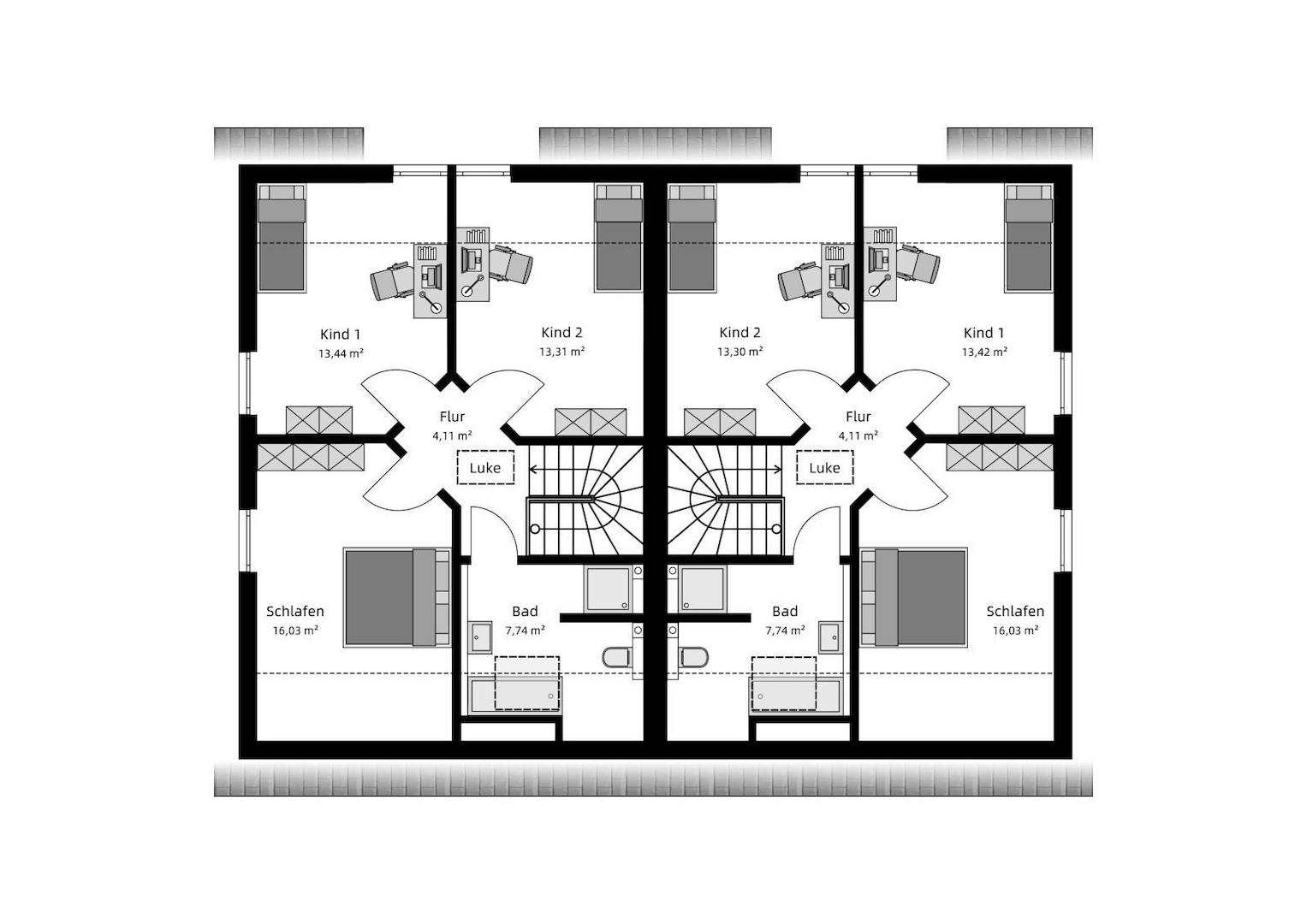
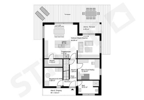
Wohnfläche, Grundstück & Bausubstanz

Wohnfläche127 m²
Nutzfläche25 m²
Grundstücksfläche306 m²
Zimmer4
Etagen2
Baujahr2026
Verfügbar ab 2026
ZustandProjektiert

Beschreibung der Immobilie

Dieses projektiert nach Kundenwünschen gestaltete Doppelhaushälfte links in Bornhöved / Segeberg vereint modernes Wohnen mit durchdachter Raumplanung auf 127 m² Wohnfläche. Mit 4 Zimmern, verteilt auf 2 Etagen, bietet es idealen Platz für Familien oder Paare, die komfortabel und effizient leben möchten. Drei gemütliche Schlafzimmer, zwei voll ausgestattete Badezimmer mit Dusche, Wanne und Fenster sowie ein zusätzliches Gäste-WC sorgen für hohen Wohnkomfort. Die moderne Architektur dieses Doppelhauses ermöglicht eine optimale Nutzung des 306 m² großen Grundstücks und überzeugt durch seine hervorragende Schallisolierung der STREIF Wandkonstruktion, die ruhiges Wohnen Haus an Haus garantiert. Als energieeffizientes KfW 40 EE Haus steht es für Nachhaltigkeit und niedrige Betriebskosten. Dieses Baukonzept bietet Ihnen die perfekte Kombination aus zeitgemäßem Design, Funktionalität und hoher Energieeffizienz - ideal für Familien, die Wert auf Qualität und Nachhaltigkeit legen.

Ausstattungsmerkmale

KücheOffene Küche
Bad2
Bad (Ausstattung)Dusche, Wanne, Fenster
BodenFliesen
Terrassen1
BarrierefreiJa
Die Ausführung in gehobener Ausstattung umfasst hochwertige Bodenbeläge aus Fliesen und individuell nach Wunsch, die nicht nur optisch überzeugen, sondern auch durch ihre Langlebigkeit, Pflegeleichtigkeit und angenehme Haptik bestechen. Die Beheizung erfolgt umweltfreundlich und effizient über eine moderne Wärmepumpe, die für wohlige Wärme sorgt und gleichzeitig hilft, Energiekosten zu senken sowie die Umwelt zu schonen. Die Badezimmer sind mit einer Dusche, einer Wanne und Fenstern ausgestattet, die für natürliche Belüftung sorgen. Dank der hochwertigen technischen Ausstattung und den verwendeten Materialien genießen Sie ein behagliches und gesundes Wohnklima in Ihrem neuen Zuhause.

Energie

Energietyp KfW-40
Heizungsart Zentralheizung
Energieträger/Befeuerung Luft-Wärme-Pumpe

Karte wird geladen...
24149 Bornhöved

Lage & Infrastruktur

Das Doppelhaus befindet sich in einer ruhigen Wohngegend in Bornhöved, die mit einer ausgezeichneten Infrastruktur überzeugt. In unmittelbarer Nähe finden Sie eine Apotheke, Einkaufsmöglichkeiten, einen Kindergarten, eine Grundschule sowie weiterführende Schulen. Für Ihre Mobilität steht ein Busanschluss zur Verfügung. Freizeit und Erholung bieten Spielplätze und naturnahe Bereiche, die zum Verweilen und Entspannen einladen. Diese Lage verbindet die Vorzüge des ruhigen Wohnens mit allen Annehmlichkeiten des täglichen Lebens, ideal für Familien und alle, die eine ausgeglichene Work-Life-Balance schätzen.

Sonstige Informationen

Achtung: Klinkeraktion ist verlängert!

STREIF Haus - der Pionier der deutschen Fertighausbranche
Die langjährige Firmentradition des Unternehmens reicht bis in das Jahr 1929 zurück. In den 50er und 60er Jahren wurde in Deutschland schnell und viel Wohnraum für Familien benötigt, seitdem konzentrierte sich das Unternehmen auf die Entwicklung und Produktion von Fertighaustypen, die im Werk in großen Stückzahlen hergestellt werden konnten. So kann das Unternehmen auf 90.000 gebaute Hausobjekte zurückblicken und sich zu Recht als Pionier der deutschen Fertighausbranche bezeichnen.

Die neuen Energiesparhäuser - So baut man heute.
Unser Anspruch ist es, in enger Partnerschaft mit unseren Kunden langlebige Häuser zu bauen, mit einer hohen architektonischen Qualität, individuell geplant und dabei energieeffizient und ressourcenschonend. Jedes STREIF-Haus ist einzigartig und wird speziell für jeden Kunden "maßgeschneidert" und gebaut. Passend zu den persönlichen Wünschen, dem vorgegebenen Budget und dem vorhandenen Grundstück planen und bauen wir jedes Haus mit viel Liebe zum Detail.
Ansprechpartner/in: Herr Andreas Maurer
06551 12 00
STREIF Haus GmbH
Josef-Streif-Straße 1, 54595 Weinsheim
06551 12 00

Weitere Angebote in Kiel