Stilvolle Stadtvilla im Grünen - STREIF Haus ist Ihr Partner fürs noderne Bauen

02977 Hoyerswerda
Frei ab: 2027
413.300 € Kaufpreis
Wohnfläche
125 m²
Zimmer
5
Offene Küche

Kaufpreis

Kaufpreis 413.300 €

Wohnfläche, Grundstück & Bausubstanz

Wohnfläche125 m²
Nutzfläche125 m²
Grundstücksfläche997 m²
Zimmer5
Etagen2
Baujahr2027
Verfügbar ab 2027
ZustandProjektiert

Beschreibung der Immobilie

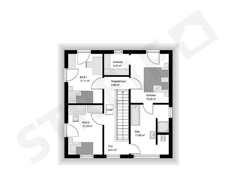
Die Architektur des Hauses ist im klassischen Stadtvillenstil gehalten. Der Grundriss ist klug
durchdacht. Im Erdgeschoss befinden sich ein offen gestalteter Wohn-/Ess- und Kochbereich
mit einem praktischen Haustechnik-/Hauswirtschaftsraum, direkt neben der Küche. Ein
Zusatzraum, der als Homeoffice, Gäste-, Schlaf- oder Hobbyraum genutzt werden kann,
bietet zusätzlichen Komfort. Die Diele mit dem Treppenhaus ist mittig angeordnet. Neben
dem Eingangsbereich ist eine Garderobennische und ein Gäste-/WC eingeplant. Das Gäste-
WC kann optional auch als Duschbad ausgebaut werden. Im Obergeschoss des
Hausentwurfes befinden sich zwei nahezu gleich große Kinderzimmer, ein geräumiges
Familienbad und der Elternschlafbereich mit Ankleide und direktem Zugang zum Bad. Die
Nettoraumfläche beträgt 125 m².

Objektart: Stadtvilla, 2-geschossig
Dachform: Walmdach
Hausmaße: 8,71 m x 8,71 m
Netto-Raumfläche: 125,80 m²

Ausstattungsmerkmale

KücheOffene Küche
Bad1
Bad (Ausstattung)Dusche, Wanne, Fenster
Das Streif City Haus wird im Standard KFW 40 PLUS ausgeführt. KfW Effizienshaus inkl. Haustechnik aus dem STREIF-Programm in der Ausbaustufe FF+ inklusive einer gedämmten Fundamentplatte.

■ Rohbau (geschlossene Gebäudehülle) mit Fenstern, Haustür, Dacheindeckung
■ Außenfassade inkl. Außenputz, vor Ort komplett fertiggestellt
■ Komplette Blechner-/Spenglerarbeiten
■ lnnen-/Außenwände wärme- und schallgedämmt und mit Gipsfaserplatten geschlossen
■ Geschosstreppe (außer Bungalow)
■ Decken wärme- und schallgedämmt und mit Gipskarton Bauplatten geschlossen
■ Elektroinstallation, einschließlich erforderlichem Zählerschrank und Inbetriebnahme
■ Heizungsanlage inkl. Inbetriebnahme
■ Innenfensterbänke Kunststeinbänke (Gussmarmorbänke) inkl. Einbau
■ Estrich
■ Sanitärräume mit Wand- und Bodenfliesen
■ Sanitärräume mit Sanitärobjekten
■ 6,23 kWp Photovoltaikanlage und 7,7 kWh Speicher

Die Innentüren sowie Wand-, Decken- und Bodenbeläge der übrigen Räume sind Eigenleistungen des Bauherren.

STREIF Frischluft-Wärmepumpen-Technologie - inklusive
- Heizen mit frischer Außenluft
- Kein Gasanschluss, kein Öl- oder Pelletlagerraum
- Keine Heizkörper
- Wärmetauscher mit bis zu 85% Wärmerückgewinnung

Die dargestellten Bilder können Sonderausstattungen beinhalten, die nicht im Preis enthalten sind!

zzgl. Ortüblicher Baunebenkosten

Selbstverständlich können wir Ihr Haus auch schlüsselfertig / bezugsfertig errichten.
■ Bodenbeläge, Sockelleisten verlegt
■ Maler- und Tapezierarbeiten
■ Innentüren inkl. Einbau

Energie

Energietyp KfW-40
Energieträger/Befeuerung Luft-Wärme-Pumpe

Karte wird geladen...
02977 Hoyerswerda

Lage & Infrastruktur

Hoyerswerda ist eine Stadt im Bundesland Sachsen, gelegen im Landkreis Bautzen. Sie befindet sich etwa 40 Kilometer nordöstlich von Dresden und ist gut erreichbar über die Autobahn A13 sowie die Bundesstraßen B97 und B96. Die Stadt liegt in einer reizvollen Umgebung, die von einer Mischung aus urbanen und ländlichen Landschaften geprägt ist.

Hoyerswerda ist von einer Vielzahl von Seen und Naturschutzgebieten umgeben, die zahlreiche Freizeitmöglichkeiten bieten, darunter Wandern, Radfahren und Wassersport. Die Stadt selbst hat eine interessante Geschichte, die sich in ihrer Architektur und den verschiedenen Stadtteilen widerspiegelt.

In Hoyerswerda finden sich zahlreiche Einkaufsmöglichkeiten, Schulen, medizinische Einrichtungen und kulturelle Angebote, die den Bedürfnissen der Einwohner gerecht werden. Die Stadt hat eine gute Anbindung an den öffentlichen Nahverkehr, was Pendlern und Besuchern zugutekommt.

Insgesamt bietet Hoyerswerda eine attraktive Lebensqualität mit einer harmonischen Verbindung von Natur und urbanem Leben, ideal für Familien, Senioren und Naturliebhaber.

Sonstige Informationen

Sie brauchen einen kompetenten und verlässlichen Baupartner? Wir stehen Ihnen von Anfang an zur Seite und begleiten Sie auf dem Weg in Ihr Eigenheim.

Mit großem Engagement, Persönlichkeit und der Fachfirma STREIF mit immensen Bau-Know-how, die seit 1929 auf über 90.000 realisierte Wohnträume zurückblicken kann.

Jedes Haus von STREIF wird individuell als Energiesparhaus geplant und gebaut. Eine nachhaltige, ökologische und wohngesunde Bauweise, eine zertifizierte Ausführungsqualität und eine kurze Bauzeit, dafür stehen wir.

Gerne beraten wir Sie nach Vereinbarung im Musterhaus Dresden Schönefeld oder ganz unkompliziert bei Ihnen zu Hause und erstellen Ihnen ein Angebot mit einer realistisch ermittelten Aufstellung der Gesamt-Investition.

Wir freuen uns auf Ihren Anruf / Nachricht!

Ihr STREIF Fachberater
Frank Strobel

E-Mail: frank.strobel@streif.de

Mobil: 0172 - 9374300





Hinweis:

Vorverkauf und Irrtümer vorbehalten. Bilder können Sonderbauteile darstellen, die im Preis nicht enthalten sind und abweichend von textlichen Inhalten sein.

zzgl. Baunebenkosten.

Der Grundstückserwerb stellt keine STREIF Leistung dar.

Hinweis zu den gesetzlichen Pflichtangaben gemäß der EnEV 2016: Bei dem hier angebotenen Haus handelt es sich um ein Neubauprojekt.

Wir weisen darauf hin, dass zu diesem projektierten Haus noch kein Energieausweis vorliegt. Der Energieausweis wird Ihnen spätestens im Rahmen der Erstellung des Objektes ausgehändigt
Ansprechpartner/in: Herr Frank Strobel
STREIF Haus GmbH
Josef-Streif-Straße 1, 54595 Weinsheim

Weitere Angebote in Hoyerswerda