***Komfortable Doppelhaushälfte rechts mit Charme-Ideal für Familien mit Klinkeraktion***

24149 Bornhöved
Frei ab: 2026
402.536 € Kaufpreis
Wohnfläche
127 m²
Zimmer
4
Offene Küche
Terrasse
Barrierefrei

Kaufpreis

Kaufpreis 402.536 €

Wohnfläche, Grundstück & Bausubstanz

Wohnfläche127 m²
Nutzfläche25 m²
Grundstücksfläche306 m²
Zimmer4
Etagen2
Baujahr2026
Verfügbar ab 2026
ZustandProjektiert

Beschreibung der Immobilie

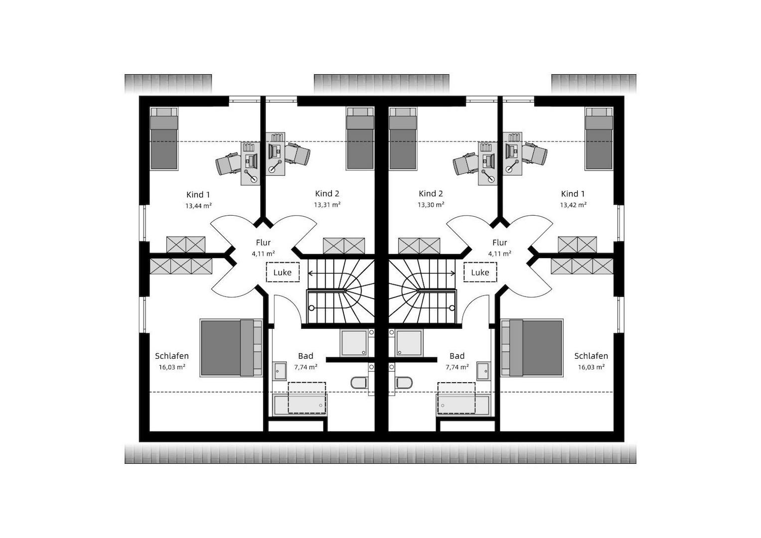
Willkommen in Ihrem neuen Traumhaus in Bornhöved/ Segeberg! Dieses moderne Doppelhaus überzeugt nicht nur durch seine ansprechende Architektur, sondern auch durch ein durchdachtes Raumkonzept, das auf die Bedürfnisse von Paaren und Familien zugeschnitten ist. Mit einer Wohnfläche von 127 m² und 4 Zimmern, darunter 3 Schlafzimmer und 2 Badezimmer, bietet es ausreichend Platz für individuelles Wohnen. Die angenehme Raumaufteilung erstreckt sich über 2 Etagen und sorgt für ein großzügiges Wohngefühl. Das Badezimmer ist mit einer Dusche, einer Wanne und einem Fenster ausgestattet - für maximalen Komfort. Dank der hochwertigen Bauweise erhalten Sie ein Energieeffizienzhaus nach KfW 40 Standard, das sowohl umweltfreundlich als auch wirtschaftlich ist. Mit einem Preis ab 344.375 EUR sind Sie auf dem besten Weg, Ihr Traumhaus zu verwirklichen!

Ausstattungsmerkmale

KücheOffene Küche
Bad2
Bad (Ausstattung)Dusche, Wanne, Fenster
BodenFliesen
Terrassen1
BarrierefreiJa
Die gehobene Ausstattung umfasst hochwertige Bodenbeläge, die Ihre Wohnräume stilvoll und pflegeleicht gestalten. Sie haben die Wahl zwischen Fliesen und individuellen Bodenbelägen, die Ihren persönlichen Geschmack widerspiegeln. Die Befeuerungsart erfolgt durch eine moderne Wärmepumpe, die nicht nur effizient, sondern auch umweltfreundlich ist. Diese Technologie sorgt für eine angenehme Wärme und trägt zur Senkung Ihrer Energiekosten bei. Die hervorragende Schallisolierung der STREIF-Wandkonstruktion garantiert ein ruhiges Wohnambiente, auch in unmittelbarer Nachbarschaft.

Energie

Energietyp KfW-40
Heizungsart Zentralheizung
Energieträger/Befeuerung Luft-Wärme-Pumpe

Karte wird geladen...
24149 Bornhöved

Lage & Infrastruktur

Das Doppelhaus befindet sich in einem ruhigen Wohngebiet in Bornhöved/ Segeberg, das sich durch eine hervorragende Infrastruktur auszeichnet. In der nahen Umgebung finden Sie alles, was Sie für den Alltag benötigen: Einkaufsmöglichkeiten, eine Apotheke, Grundschule, Kindergarten sowie Spielplätze und weiterführende Schulen. Die Anbindung an öffentliche Verkehrsmittel ist optimal, sodass Sie schnell und unkompliziert in die umliegenden Städte gelangen können.

Sonstige Informationen

Achtung: Klinkeraktion ist verlängert!

STREIF Haus - der Pionier der deutschen Fertighausbranche
Die langjährige Firmentradition des Unternehmens reicht bis in das Jahr 1929 zurück. In den 50er und 60er Jahren wurde in Deutschland schnell und viel Wohnraum für Familien benötigt, seitdem konzentrierte sich das Unternehmen auf die Entwicklung und Produktion von Fertighaustypen, die im Werk in großen Stückzahlen hergestellt werden konnten. So kann das Unternehmen auf 90.000 gebaute Hausobjekte zurückblicken und sich zu Recht als Pionier der deutschen Fertighausbranche bezeichnen.

Die neuen Energiesparhäuser - So baut man heute.
Unser Anspruch ist es, in enger Partnerschaft mit unseren Kunden langlebige Häuser zu bauen, mit einer hohen architektonischen Qualität, individuell geplant und dabei energieeffizient und ressourcenschonend. Jedes STREIF-Haus ist einzigartig und wird speziell für jeden Kunden "maßgeschneidert" und gebaut. Passend zu den persönlichen Wünschen, dem vorgegebenen Budget und dem vorhandenen Grundstück planen und bauen wir jedes Haus mit viel Liebe zum Detail.
Ansprechpartner/in: Herr Andreas Maurer
06551 12 00
STREIF Haus GmbH
Josef-Streif-Straße 1, 54595 Weinsheim
06551 12 00

Weitere Angebote in Kiel