Provisionsfrei: Exklusive 3-Zimmer-Wohnung mit Wasserblick auf die Tarpenbek, BJ 2019, ruhige Lage

22529 Hamburg, Hamburg
Frei ab: 15.07.2026
725.000 € Kaufpreis
Wohnfläche
94,4 m²
Zimmer
3
Etage
1
Einbauküche
Balkon
Terrasse
Fahrstuhl
Keller
Barrierefrei

Kaufpreis

Kaufpreis 725.000 €
Hausgeld455 €
Maklerprovisionkeine Provision, courtagefrei
Stellplatz Tiefgarage Kaufpreis25.000 €

Wohnfläche, Grundstück & Bausubstanz

Wohnfläche94,4 m²
Zimmer3
Etagen2
Stockwerk1
Baujahr2019
Verfügbar ab 15.07.2026
ZustandNeuwertig

Beschreibung der Immobilie

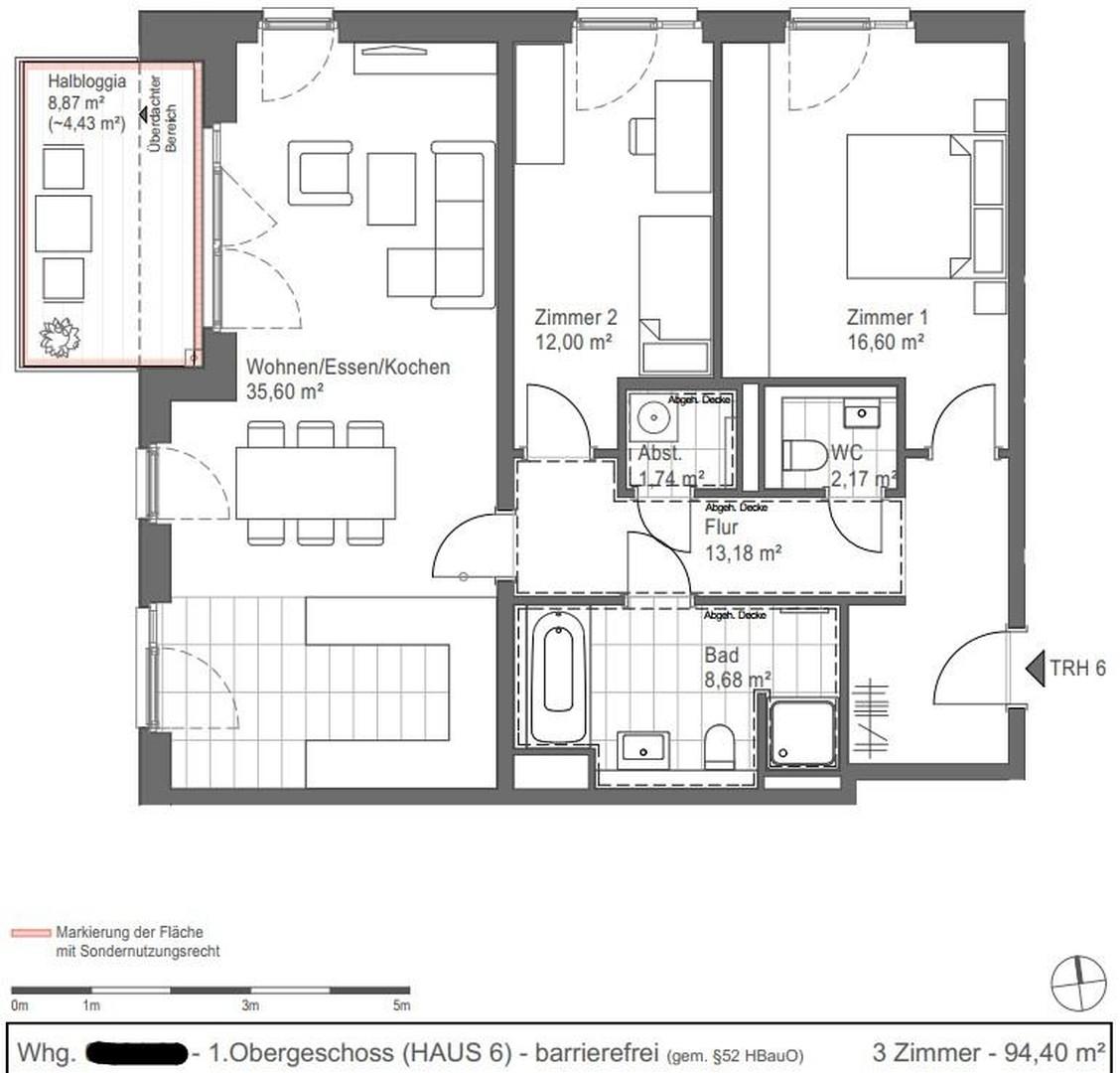
Diese stilvolle, hochwertig ausgestattete und helle 3-Zimmer-Eigentumswohnung mit großzügigen 94,40 m² Wohnfläche befindet sich im 1. Obergeschoss der beliebten Wohnanlage „Dein Lieblingsplatz am Tarpenbeker Ufer“ (Baufeld 7), fertiggestellt 2019, Erstbezug Februar 2020.

Die Wohnung überzeugt durch eine moderne Architektur, Barrierefreiheit sowie eine außergewöhnlich ruhige Lage mit weitem Blick ins Grüne.

Ein echtes Alleinstellungsmerkmal: Wohnen mit Blick auf die Tarpenbek.
Von sämtlichen Wohn- und Schlafräumen eröffnet sich ein direkter, unverbaubarer Blick auf die Tarpenbek.
Die Kombination aus Wasserlage, Weitblick und geschützter Innenhofausrichtung schafft ein Wohnambiente, das in dieser Form nur selten zu finden ist – ruhig, grün und dennoch urban angebunden, Mitten in Hamburg, ganz ohne Straßenlärm.

Durchdachter Grundriss mit Wohlfühlcharakter:
Großzügiger Wohn-/Ess-/Kochbereich (35,60 m²)
Offenes Herzstück der Wohnung – ideal für gemeinsame Zeit mit Familie und Freunden

Schlafzimmer (16,60 m²)
Ruhig gelegen mit direktem Blick ins Grüne

Kinder-, Gästezimmer oder Büro (12,00 m²)
Flexibel nutzbar – perfekt für Familie oder Arbeiten von zu Hause

Halbloggia (8,87 m²) mit West Ausrichtung
Geschützter, privater Außenbereich – ideal zum Sonnenbaden, Urban Gardening oder gemütliche Abende mit Sonnenuntergang

Modernes Vollbad (8,68 m²)
Separates Gäste-WC (2,17 m²)
Geräumiger Flur (13,18 m²)
Abstellraum / Hauswirtschaftsraum (1,74 m²)
Zusätzliche Nutzfläche: Kellerraum

Stellplatz optional erwerbbar: 1 Tiefgaragenstellplatz (25.000 €)
Direkt im Haus gelegen – trocken, sicher und bequem per Aufzug oder Treppenhaus erreichbar.
Gerade in dieser Lage mit begrenztem Parkraum stellt ein eigener Stellplatz einen erheblichen Komfort- und Wertvorteil dar.
Die Nachrüstung einer E-Ladestation (Wallbox) ist möglich. Am direkt angrenzenden Stellplatz wurde bereits eine Wallbox installiert – ein klarer Vorteil für zukunftsorientierte Mobilität.

Privatverkauf – provisionsfrei für den Käufer.

Dateien


Ausstattungsmerkmale

KücheEinbauküche
Bad2
Bad (Ausstattung)Wanne
BodenFliesen, Parkett
Balkone1
Terrassen0
Fahrstuhl
BarrierefreiJa
KellerJa
Balkon, Keller, Fahrstuhl, Vollbad, Einbauküche, Gäste-WC, Barrierefrei, Parkett, Fliesen, Sonstiges (s. Text)

Bemerkungen:
Hochwertige Otto-Wulff-Neubauqualität – nachhaltig, modern und wertbeständig

Qualitätsvoll geplant und ausgeführt vom renommierten Bauträger Otto Wulff: Sämtliche Ausstattungsmerkmale sind bereits verbaut und im Kaufpreis enthalten. Die Wohnung präsentiert sich modern, pflegeleicht und auf einem durchgängig gehobenen Ausstattungsniveau.

Ausstattung im Überblick:
3-fach verglaste Fenster für hervorragenden Schall- und Wärmeschutz
Echtes Eichenparkett in allen Wohn- und Schlafräumen – zeitlos, warm und langlebig
Hochwertige Fliesen in Küche und Bädern
Marken-Sanitärkeramik von Villeroy & Boch in Bad und Gäste-WC
Stilvolle Einbauküche von Nobilia inklusive
Samsung StudioLine Backofen (schwarz gebürsteter Edelstahl)
Samsung StudioLine Kochfeld
Geschirrspüler
Kühl-Gefrier-Kombination
Apothekerschrank und großzügige Stauraumlösungen
Bodentiefe Fenster für besonders helle, lichtdurchflutete Räume
Fußbodenheizung in allen Räumen
Moderne Videosprechanlage
Eigener Kellerraum sowie gemeinschaftlicher Fahrradkeller
Personenaufzug von der Tiefgarage bis zur Wohnebene
Barrierefrei geplant gemäß § 52 HBauO – komfortabel und zukunftssicher

Energie

B
Energieeffizienzklasse B · 60 kWh/(m²*a)
EnergieausweistypBedarfsausweis
EnergieeffizienzklasseB
Endenergiebedarf60
Heizungsart Zentralheizung
Energieträger/Befeuerung Fernwärme

Karte wird geladen...
22529 Hamburg – Hamburg

Lage & Infrastruktur

Dein Lieblingsplatz am Tarpenbeker Ufer – Hamburg-Groß Borstel

Entdecken Sie Ihre neue, ruhige Wohnlage direkt am neu gestalteten Quartierspark und an der Tarpenbek in Hamburg-Groß Borstel.

Nur wenige Schritte entfernt befindet sich das idyllische Eppendorfer Moor – eine rund 26 Hektar große Natur-Oase mit Wald- und Moorlandschaft sowie zahlreichen Spazier- und Laufwegen mitten in der Hansestadt.

Die gefragte Wohnanlage „Dein Lieblingsplatz am Tarpenbeker Ufer“ verbindet naturnahes Wohnen mit urbaner Nähe. Groß Borstel bewahrt seinen gewachsenen, fast dörflichen Charme, während das beliebte Hamburg-Eppendorf mit seinen Altbauten, Cafés, Boutiquen und Wochenmärkten nur wenige Minuten entfernt liegt.

Ihre Vorteile auf einen Blick:
Direkte Lage am Park und an der Tarpenbek – Erholung unmittelbar vor der Haustür
Großzügiger, modern gestalteter Spielplatz im Quartierspark
Zahlreiche weitere kleinere Spielplätze, verteilt im gesamten Quartier – ideal für Familien
Viele Kleingartenvereine in unmittelbarer Nähe – grüne Freiräume und gewachsene Nachbarschaftsstruktur
Eppendorfer Moor und Hayns Park an der Alster in ca. 1 km Entfernung – Natur mitten in der Stadt
Eppendorfer Mühlenteich und Alsterlauf – ideal für Spaziergänge und Joggingrunden
Zahlreiche Kindergärten mit verfügbaren Plätzen, Schulen und Apotheken fußläufig erreichbar
Sehr gute Nahversorgung: REWE, EDEKA, ALDI, Budni (Borsteler Chaussee, ca. 6 Gehminuten), das Nedderfeld Center mit Kaufland und MediaMarkt in unmittelbarer Nähe
Hervorragende Radwege sowie sehr gute ÖPNV-Anbindung (u. a. Buslinie 5, 114, U-Bahn Lattenkamp)
Schnelle Verbindung in die Hamburger Innenstadt (ca. 20 Minuten mit dem ÖPNV)
Flughafen Hamburg in ca. 10 Minuten mit dem Auto erreichbar
Sportvereine und Fitnessstudios im direkten Umfeld
Wochenmärkte in Groß Borstel und Lokstedt in der näheren Umgebung

Auch die Eppendorfer Landstraße – beliebte Flaniermeile mit Boutiquen, Cafés und Wochenmarkt – liegt nur wenige Minuten entfernt.

Ein ideales Zuhause für alle, die eine seltene Kombination aus Ruhe, Naturverbundenheit, Familienfreundlichkeit und urbaner Lebensqualität suchen.
Infrastruktur (im Umkreis von 5 km):
Apotheke, Lebensmittel-Discount, Allgemeinmediziner, Kindergarten, Grundschule

Sonstige Informationen

Heizungsart: Zentralheizung
Energieträger: Fernwärme

Die Wohnung befindet sich seit Fertigstellung 2019 in einem sehr gepflegten Zustand. Die Wohnanlage ist inzwischen eingewachsen und etabliert – ein stilvolles Zuhause in ruhiger, grüner Umgebung mit nachhaltiger Bauqualität.
Die Wohnung wird unmöbliert verkauft und übergeben.
Bezugsfertig ab ca. 15.Juli 2026, nach Absprache.

Makleranfragen nicht erwünscht. Nach § 7 UWG sind unaufgeforderte Kontaktaufnahmen durch Makler ohne ausdrückliche Einwilligung des Empfängers verboten!

ohne-makler (OM) ist weder Anbieter noch Vermittler der Immobilie. OM betreibt eine Plattform für Immobilieneigentümer, die unter anderem die gleichzeitige Veröffentlichung einzelner Inserate auf mehreren Immobilienportalen ermöglicht. Die Inhalte dieser Inserate werden ausschließlich von Dritten verantwortet. Für die Richtigkeit, Vollständigkeit oder Rechtmäßigkeit der Angaben übernimmt OM keine Haftung. Hinweise auf mögliche Rechtsverstöße können jederzeit gemeldet werden und werden nach Prüfung umgehend bearbeitet.
Ansprechpartner/in: Privat von Sebastian Köller
OM PropTech GmbH
Humboldtstraße 25a, 21509 Glinde

Weitere Angebote in Hamburg