Hier findet Ihre Familie ihr neues Zuhause.

76774 Leimersheim, Rheinland-Pfalz
638.995 € Kaufpreis
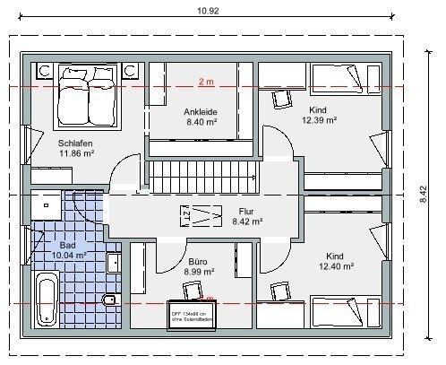
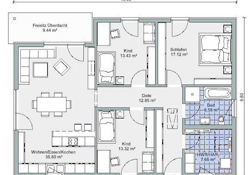
Wohnfläche
139,52 m²
Zimmer
6
Terrasse

Kaufpreis

Kaufpreis 638.995 €
MaklerprovisionDie Maklercourtage beträgt 8.502 €/brutto.

Wohnfläche, Grundstück & Bausubstanz

Wohnfläche139,52 m²
Nutzfläche150,15 m²
Grundstücksfläche433 m²
Zimmer6
Etagen2
Baujahr2026
Verfügbar ab Keine Angabe
ZustandProjektiert

Beschreibung der Immobilie

Bestseller Family 150

Zwei Kinderzimmer, ein eigenes Büro und ein großzügiger Wohnbereich schaffen ideale Voraussetzungen für modernes Familienleben.
Durchdacht geplan, bewährt umgesetzt und nachhaltig gebaut - diese Haus bietet heute Komfort und morgen Sicherheit.
Eine Entscheidung, die sich vom ersten Tag an richtig anfühlt!

Dateien


Ausstattungsmerkmale

Bad1
Bad (Ausstattung)Dusche, Wanne, Fenster
BodenFliesen
Terrassen1
Dieses FERTIGHAUS wird "fast fertig" angeboten.
In der Ausstattung „fast fertig“ sind bei uns entscheidende Mehrleistungen schon im Standard der Bauleistungsbeschreibung (BLB) enthalten.

* Architektenleistung & Statik
* Bodenplatte
* Ausstattung: Gehoben
* Heizungsart: Wärmepumpentechnik
* Estrich und Fußbodenheizung
* farbiger Außenputz
* Pfettendach aus KVH (Konstruktions- Vollholz)
* Dachsteine
* Dachrinnen und Regenfallrohre
* Innen- und Außenfensterbänke aus Marmor
* Aluminium Rollläden
* Treppenanlage aus Vollholz- Buche,
* Bodeneinschubtreppe
* Sicherheits-Thermohaustür RCN2 (auch mit Glasausschnitt) in verschiedenen Farben
* Fenster mit Pilzkopfverriegelung, 3-fach-Verglasung (6 Kammer Profile)
* Elektroausstattung (Smarthome auf Anfrage)
* Heizung-Sanitär-Rohmontage + Endmontage
* Sanitärobjekte und Fliesenarbeiten in Gäste-WC und Bad
* Fliesenarbeiten im Hausanschlussraum
* Bodenbeläge - verschiedene Möglichkeiten - in allen anderen Räumen
* Bodengleiche- geflieste Dusche
* Wärme- und Schalldämmung
* Höchster Individualisierungsgrad
* Blower- Door Test nach DIN 13829 für EnEV - Abnahmemessungen aus DIN V 4108-7 durch.
* Statik
* Bemusterung in eigener Ausstellung
* 360° Betreuung vom Erstkontakt bis zum Einzug.
* In allen unseren Häusern werden nur hochwertige Markenprodukte von namhaften Herstellern verwendet
* Grundrisse können ohne Mehrkosten individuell umgeplant werden insofern die Gesamtwohnfläche gleich bleibt.

Energie

Heizungsart Fußbodenheizung
Energieträger/Befeuerung Luft-Wärme-Pumpe

Karte wird geladen...
76774 Leimersheim – Rheinland-Pfalz

Lage & Infrastruktur

Das Grundstück befindet sich im Neubaugebiet von Leimersheim

Unser Angebotspreis beinhaltet das Grundstück und das Einfamilienhaus.
Das Grundstück ist über einen externen Partner/Makler/Eigentümer zu erwerben.

Das Grundstück ist voll erschlossen und bebaubar.

**Bitte haben Sie Verständnis, dass wir ohne ein persönliches Gespräch über das Haus keine Grundstücksdaten weiterleiten.**

Sie haben bereits ein Grundstück? Dann lassen Sie sich beraten, wie wir Ihre Hausbauwünsche erfüllen können.
Sie möchten ein anderes Haus auf diesem Grundstück, oder Sie möchten ein anderes Grundstück zu diesem Haus? Dann rufen Sie uns einfach an - wir beraten Sie sehr gerne.

Sonstige Informationen

Das Haus ist projektiert und der angebotene Preis ist inkl. Grundstück. Das Grundstück wird in Kommission angeboten bzw. direkt von Dritten verkauft. Die Bauabwicklung kann kurzfristig nach Grundstückserwerb begonnen werden. Bilder und Fotos zeigen möglicherweise Sonderausstattungen, die auf Wunsch gegen Preiskorrektur zusätzlich angeboten werden können.

Das Angebot ist unverbindlich und freibleibend, exklusive Kosten sind die Baunebenkosten, wie z.B. Hausanschlüsse, Außenanlagen, Vermesser, Maklercourtage, Versicherungen, Erdarbeiten, Notar und Gerichtskosten. Abbildungen und Grundrisse zeigen Extras die ggf. nicht im Preis enthalten sind!
Hier können Sie als Bauherr den Fertighaushersteller beauftragen und auf einem Baugrundstück bauen, welches Sie vorher direkt vom Grundstückseigentümer erwerben würden.

Fragen Sie nach unserem kostenlosen Bauherren-Beratungs-Service und erhalten Sie in einem persönlichen Gespräch in unserem BERATUNGSBÜRO in 76751 Jockgrim kostenlos alle wichtigen Informationen zum Bauen: Baukosten-Kalkulation, Finanzierung, Förderung, Grundstücksservice, Architektur- u. Grundrissplanung und vieles mehr.

Vereinbaren Sie am Besten gleich einen Beratungstermin mit uns.
Ansprechpartner/in: Herr Horst Hellmann
1.2.3. Bauberatung - Horst Hellman
Bahnhofstr. 66 , 76751 Jockgrim

Weitere Angebote in Leimersheim