1
/
1
1.320 €
Kaltmiete
10,82 €
Preis/m² ca.
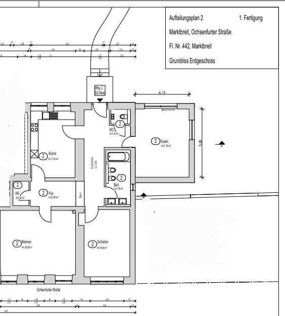
Wohnfläche
122 m²
Zimmer
3
Terrasse
Garten
Keller
Haustiere erlaubt
Mietpreis & Nebenkosten
| Kaltmiete | 1.320 € |
| Nebenkosten | 200 € |
| Heizkosten | 40 € |
| Kaution | 3.500 € |
| Maklerprovision |
Wohnfläche, Grundstück & Bausubstanz
| Wohnfläche | 122 m² |
| Nutzfläche | 150 m² |
| Zimmer | 3 |
| Etagen | 3 |
| Baujahr | 2025 |
| Verfügbar ab | 01.06.2026 |
| Zustand | Erstbezug |
Karte wird geladen...
97340 Marktbreit
– Bayern
| Mobilnummer | |
| Website | www.immo-for-less.de |
29
Provisionsfrei* Freistehendes Einfamilienhaus mit Doppelgarage (Bungalow / Bj. 2012) in Bad Bevensen
498.500 €
Kaufpreis
Alte Gärtnerei 12, 29549 Bad Bevensen
Fläche
125 m²
Zimmer
4
Baujahr
2012
14
LUXUSPUR 5 Zi. DG 112m² + UG 17m² Büro-/Hobbyraum an max. 3 Pers. zum 1.7.26
1.175 €
Kaltmiete
73547 Lorch
Fläche
112 m²
Zimmer
5
Etage
2
18
Provisionsfrei* Attraktive 2,5-Zimmer Wohnung mit Balkon und Garage in Taufkirchen
572.000 €
Kaufpreis
82024 Taufkirchen
Fläche
75 m²
Zimmer
2,5
Etage
1