Großzügiges Wohngrundstück (1.044 m²) mit historischer Scheune & Baugenehmigung

Grosse Gass 4/1 79576 Haltingen, Baden-Württemberg
Frei ab: sofort
500.000 € Kaufpreis
Grundstücksfläche
1.044 m²

Kaufpreis

Kaufpreis 500.000 €
Maklerprovisionkeine Provision, courtagefrei

Wohnfläche, Grundstück & Bausubstanz

Grundstücksfläche1.044 m²
Verfügbar ab sofort

Beschreibung der Immobilie

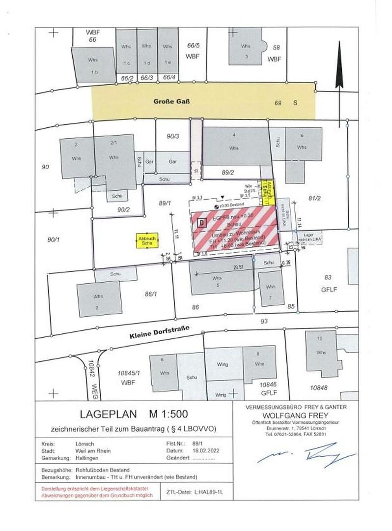
Angeboten wird ein 1.044 m² großes Grundstück in zentraler Bestlage von Haltingen (Grosse Gass 4/1). Es handelt sich um eine seltene Gelegenheit, ein Grundstück dieser Größe im gewachsenen Dorfkern zu erwerben.

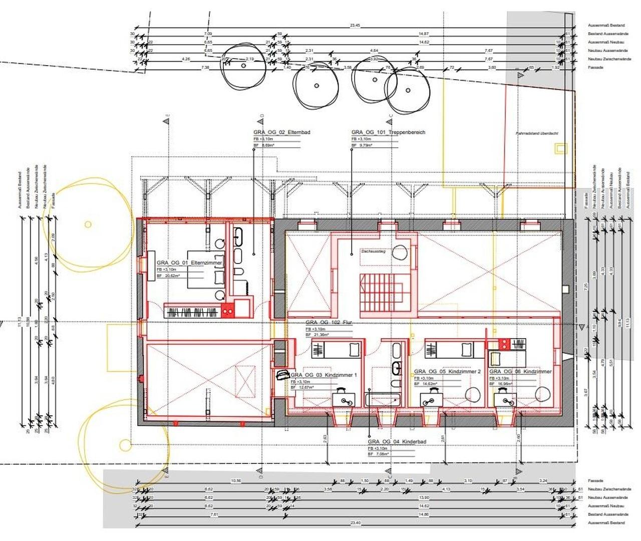
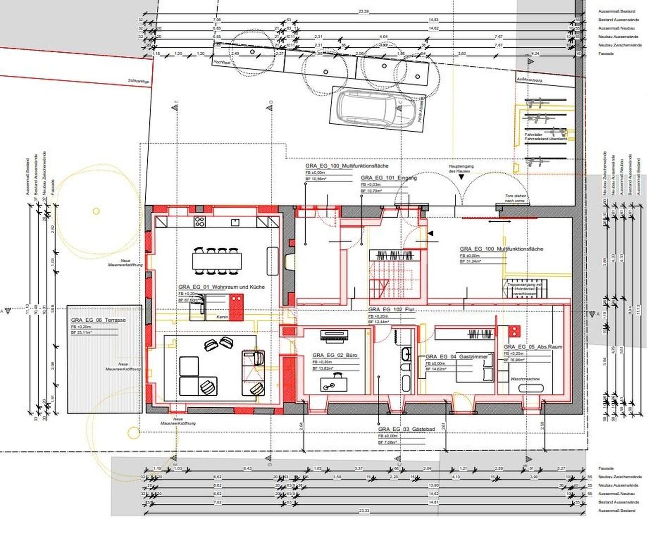
Auf dem Grundstück befindet sich eine historische Scheune (Kulturdenkmal). Das Objekt wird im aktuellen Zustand als Entwicklungsprojekt verkauft. Der entscheidende Vorteil für Käufer: Eine rechtskräftige Baugenehmigung für den Umbau zu einem Wohnhaus liegt bereits vor. Sie erwerben hier also nicht nur Grund und Boden, sondern auch Planungssicherheit und eine sofortige Bebauungsmöglichkeit.

Wirtschaftlichkeit & Denkmalschutz:
Da das Gebäude unter Denkmalschutz steht, ist ein Abriss nicht vorgesehen. Stattdessen bietet die Sanierung erhebliche finanzielle Vorteile: Durch die Denkmal-AfA können die Umbaukosten steuerlich hoch abgesetzt werden. Dies macht das Grundstück insbesondere für Bauherren interessant, die den Wert eines großen Gartens mit steuerlich gefördertem Wohnraumbau kombinieren möchten.

Zusammenfassung:

- Grundstücksfläche: 1.044 m²
- Lage: Mitten im Dorf, ruhig und dennoch zentral.
- Bebaubarkeit: Baugenehmigung für Scheunenausbau vorhanden.
- Kaufpreis: 500.000 EUR
- Provisionsfrei: Verkauf erfolgt direkt durch den Eigentümer.

Karte wird geladen...
Grosse Gass 4/1
79576 Haltingen – Baden-Württemberg

Lage & Infrastruktur

Das Grundstück befindet sich in zentraler und dennoch ruhiger Lage im Herzen von Haltingen, einem Stadtteil von Weil am Rhein. Die Infrastruktur vor Ort ist hervorragend: Geschäfte des täglichen Bedarfs, Schulen und Kindergärten sind in wenigen Minuten fußläufig erreichbar. Besonders attraktiv ist die Lage für Pendler in das nahegelegene Basel oder nach Lörrach, da der Bahnhof Haltingen sowie die Autobahn A5 und die Tramlinie 8 eine perfekte Anbindung an das gesamte Dreiländereck bieten. Die direkte Nähe zu den Weinreben des Tüllinger Bergs kombiniert zudem einen hohen Freizeitwert mit urbaner Nähe. Ein Grundstück dieser Größe in einer so gewachsenen Ortskernlage stellt eine seltene Gelegenheit auf dem regionalen Markt dar.
Infrastruktur (im Umkreis von 5 km):
Apotheke, Lebensmittel-Discount, Allgemeinmediziner, Kindergarten, Grundschule, Realschule, Gymnasium, Gesamtschule, Öffentliche Verkehrsmittel

Sonstige Informationen



Makleranfragen nicht erwünscht. Nach § 7 UWG sind unaufgeforderte Kontaktaufnahmen durch Makler ohne ausdrückliche Einwilligung des Empfängers verboten!

ohne-makler (OM) ist weder Anbieter noch Vermittler der Immobilie. OM betreibt eine Plattform für Immobilieneigentümer, die unter anderem die gleichzeitige Veröffentlichung einzelner Inserate auf mehreren Immobilienportalen ermöglicht. Die Inhalte dieser Inserate werden ausschließlich von Dritten verantwortet. Für die Richtigkeit, Vollständigkeit oder Rechtmäßigkeit der Angaben übernimmt OM keine Haftung. Hinweise auf mögliche Rechtsverstöße können jederzeit gemeldet werden und werden nach Prüfung umgehend bearbeitet.
Ansprechpartner/in: Privat vom Eigentümer
OM PropTech GmbH
Humboldtstraße 25a, 21509 Glinde