Reihenmittelhaus mit Garten und Balkon in ruhiger und zentraler Lage in Kempten

87435 Kempten, Bayern
Frei ab: nach Absprache
569.000 € Kaufpreis
Wohnfläche
105 m²
Zimmer
4,5
Einbauküche
Balkon
Terrasse
Garten
Stellplatz

Kaufpreis

Kaufpreis 569.000 €
Maklerprovisionkeine Provision, courtagefrei

Wohnfläche, Grundstück & Bausubstanz

Wohnfläche105 m²
Grundstücksfläche110 m²
Zimmer4,5
Etagen3
Baujahr1998
Verfügbar ab nach Absprache
ZustandModernisiert

Beschreibung der Immobilie

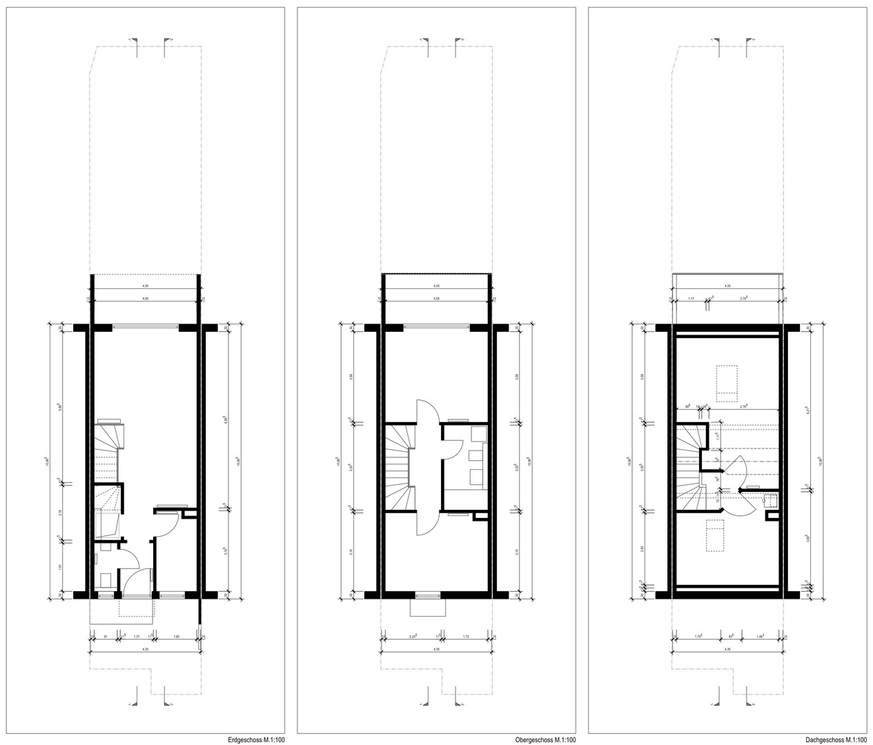
Zentral und dennoch ruhig gelegenes Reihenmittelhaus mit kleinem Garten und großem Balkon. Die Wohnfläche beträgt insgesamt 104 qm auf einem Grundstück von 110 qm. Im Erdgeschoss befinden sich das Wohnzimmer mit Ausgang zu Terrasse und Garten, Küche, Gäste-WC und ein Abstellraum.
Das 1. Obergeschoss ist aufgeteilt in zwei Schlafzimmer, davon eins mit großer Fensterfront und Balkon und das innenliegende Badezimmer.
Im Dachgeschoß befindet sich ein großes Schlafzimmer sowie ein weiterer kleiner Raum, der von uns als Arbeits- und Gästezimmer genutzt wird.
Ein Keller ist nicht vorhanden, dafür ist Platz im Gartenhaus und Abstellraum vorhanden.

In den Jahren 2024 und 2025 wurden umfangreiche Renovierungs- und Modernisierungsarbeiten durchgeführt. Sie können daher ohne Renovierungsaufwand einziehen.

Ein Außenstellplatz ist direkt hinter dem Haus vorhanden und ist im Kaufpreis enthalten. Ebenfalls ist der Erwerb eines TG-Stellplatzs (Doppelparker) im benachbarten Haus für 15.000 € möglich.

Eine Übernahme könnte zum 1. September 2026 oder nach Absprache erfolgen.

Ausstattungsmerkmale

KücheEinbauküche
Bad1
Bad (Ausstattung)Wanne
BodenParkett
Balkone1
Terrassen1
GartenJa
Garage/Stellplätze1
Balkon, Terrasse, Garten, Vollbad, Einbauküche, Gäste-WC, Parkett, Sonstiges (s. Text)

Bemerkungen:
Im Jahr 2024/25 wurden umfangreiche Modernisierungen vorgenommen, unter anderem:
* Neue Gasheizung von Viessmann
* Parkett ergänzt, abgeschliffen und neu versiegelt
* Im Dachgeschoß hochwertiger Linoleumbelag
* Neue Haustür
* Neue Küche mit Markengeräten (Siemens und Bosch), im Preis enthalten
* 2 große neue Dachfenster
* Balkontrennwände erneuert

Alle Modernisierungsarbeiten wurden von ortsansässigen Fachbetrieben ausgeführt. Der Energieausweis wurde vor den Renovierungsarbeiten ausgestellt. Nach unseren aktuellen Verbrauchswerten würde die Energieeffizienzklasse B erreicht werden.

Energie

C
Energieeffizienzklasse C · 88 kWh/(m²*a)
EnergieausweistypVerbrauch
EnergieeffizienzklasseC
Energieverbrauchkennwert88 kWh/(m²*a)
Heizungsart Etagenheizung
Energieträger/Befeuerung Gas

Karte wird geladen...
87435 Kempten – Bayern

Lage & Infrastruktur

Das Haus liegt in einer ruhigen und zentralen Wohnlage in Kempten mit netter Nachbarschaft. Es befindet sich südlich der Innenstadt, wenige Schritte von der Iller entfernt (Nähe Alte Spinnerei). Die Straße ist eine Sackgasse ohne Durchgangsverkehr. Die Fußgängerzone ist fußläufig in ca. 10 Minuten zu erreichen. Zum Hauptbahnhof sind es weniger als 15 Minuten zu Fuß.
Infrastruktur (im Umkreis von 5 km):
Apotheke, Lebensmittel-Discount, Allgemeinmediziner, Kindergarten, Grundschule, Hauptschule, Realschule, Gymnasium, Gesamtschule, Öffentliche Verkehrsmittel

Sonstige Informationen

Heizungsart: Etagenheizung
Energieträger: Gas

Der Preis 569.000 € ist ein Mindestpreis in Form eines nach unten gedeckelten Preisverfahrens. Angebote werden nur in Folge einer Besichtigung vor Ort berücksichtigt und Angebote unter 569.000 € werden nicht angenommen.
Anfragen mit Finanzierungszusage werden vorrangig behandelt.

Makleranfragen nicht erwünscht. Nach § 7 UWG sind unaufgeforderte Kontaktaufnahmen durch Makler ohne ausdrückliche Einwilligung des Empfängers verboten!

ohne-makler (OM) ist weder Anbieter noch Vermittler der Immobilie. OM betreibt eine Plattform für Immobilieneigentümer, die unter anderem die gleichzeitige Veröffentlichung einzelner Inserate auf mehreren Immobilienportalen ermöglicht. Die Inhalte dieser Inserate werden ausschließlich von Dritten verantwortet. Für die Richtigkeit, Vollständigkeit oder Rechtmäßigkeit der Angaben übernimmt OM keine Haftung. Hinweise auf mögliche Rechtsverstöße können jederzeit gemeldet werden und werden nach Prüfung umgehend bearbeitet.
Ansprechpartner/in: Privat vom Eigentümer
OM PropTech GmbH
Humboldtstraße 25a, 21509 Glinde

Weitere Angebote in Kempten