Attraktive 3-Zimmer-Wohnung – familienfreundlich & ruhig gelegen

Tempelhofer Str. 8 15806 Zossen, Brandenburg
Frei ab: 01.06.2026
797 € Kaltmiete
13,51 € Preis/m² ca.
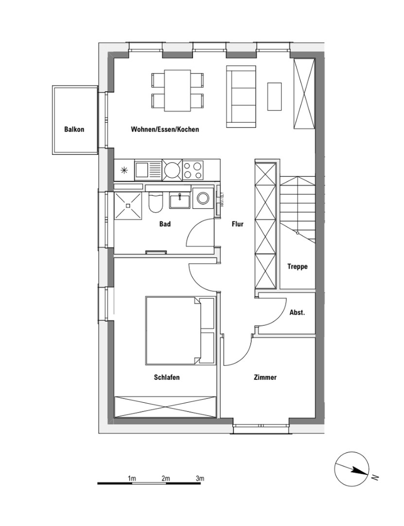
Wohnfläche
59 m²
Zimmer
3
Etage
1
Einbauküche
Balkon
Terrasse
Garten

Mietpreis & Nebenkosten

Kaltmiete (netto)797 €
Nebenkosten 148 €
Heizkosten enthaltenJa
Stellplatz Freiplatz Miete75 €

Wohnfläche, Grundstück & Bausubstanz

Wohnfläche59 m²
Zimmer3
Stockwerk1
Baujahr2024
Verfügbar ab 01.06.2026
ZustandErstbezug

Beschreibung der Immobilie

Bei dem Neubauprojekt handelt es sich um ein modernes Wohnquartier, bestehend aus insgesamt 92 Wohneinheiten, die auf 23 zweigeschossige Häuser verteilt sind. Die Anlage ist großzügig geplant und fügt sich harmonisch in eine grüne, ruhige Umgebung ein.

Die Wohnungen überzeugen durch eine durchdachte, alltagsfreundliche Gestaltung und bieten ein angenehmes Wohngefühl mit viel Licht, Raum und Privatsphäre. Jede Einheit verfügt über einen eigenen Gartenanteil, der zusätzlichen Freiraum im Grünen schafft – ideal zum Entspannen, Spielen oder für gemütliche Stunden im Freien.

Für zusätzlichen Komfort ist jeder Wohnung ein eigener Stellplatz zugeordnet, sodass Parken direkt am Wohnort unkompliziert möglich ist.

Das gesamte Projekt wird im modernen KfW-40 QNG+ Standard umgesetzt und erfüllt damit höchste Anforderungen an Energieeffizienz und Nachhaltigkeit. Dies sorgt für ein angenehmes Raumklima und einen zeitgemäßen Wohnkomfort bei gleichzeitig niedrigem Energieverbrauch.

Insgesamt entsteht hier ein ruhiges, familienfreundliches Wohnumfeld, das modernes Wohnen mit Naturverbundenheit verbindet – ideal für alle, die Wert auf Komfort, Grünflächen und eine entspannte Wohnatmosphäre legen.

Ausstattungsmerkmale

KücheEinbauküche
Bad1
Bad (Ausstattung)Dusche
BodenFliesen, Parkett
Balkone1
Terrassen0
GartenJa
Balkon, Garten, Duschbad, Einbauküche, Parkett, Fliesen

Bemerkungen:
- separater Mietergarten
- inkl. Einbauküche
- Abstellraum in der Wohnung
- Sonnenbalkon
- Außenstellplatz
- 3-fach Verglasung
- Außenjalousien an allen Fenstern
- Dielenfußboden, Bad gefliest
- Fußbodenheizung in allen Räumen
- Fahrradraum ebenerdig begehbar

Energie

A+
Energieeffizienzklasse A+ · 21 kWh/(m²*a)
EnergieausweistypBedarfsausweis
EnergieeffizienzklasseA+
Endenergiebedarf21
Energieträger/Befeuerung Erdwärme

Karte wird geladen...
Tempelhofer Str. 8
15806 Zossen – Brandenburg

Lage & Infrastruktur

Die Neubauwohnungen befinden sich in ruhiger und gewachsener Wohnlage in der Zossen. Die Umgebung ist geprägt von Einfamilienhäusern, viel Grün und einer angenehmen, familienfreundlichen Nachbarschaft kombiniert mit einer hervorragenden Infrastruktur.

Ein besonderer Vorteil der Lage ist die hervorragende Nahversorgung: Ein Netto-Supermarkt befindet sich direkt gegenüber, während ein Kindergarten in weniger als 100 Metern Entfernung bequem fußläufig erreichbar ist – ideal für den Alltag.

Zossen liegt nur etwa 20–30 km südlich der Berliner Stadtgrenze und bietet damit eine gelungene Kombination aus naturnahem Wohnen und guter Anbindung an die Hauptstadt. Pendler profitieren von der Nähe zur B96 sowie zur Autobahn A13, wodurch Berlin und der Flughafen BER in kurzer Zeit erreichbar sind.

Durch die im Jahr 2025 verbesserte Bahnanbindung (Ergänzung einer zusätzlichen Schleifenführung im Regionalverkehr) hat sich die Erreichbarkeit des öffentlichen Nahverkehrs nochmals deutlich verbessert. Dadurch erreicht man den Flughafen BER von Zossen aus in ca. 40 Minuten, was die Lage auch für Berufspendler und Vielreisende besonders attraktiv macht.

Im weiteren Umfeld finden sich zudem Schulen, Ärzte, Apotheken und weitere Einkaufsmöglichkeiten, sodass eine sehr gute Infrastruktur gewährleistet ist.

Die idyllische Umgebung mit zahlreichen Grünflächen und Seen bietet einen hohen Erholungswert und lädt zu Spaziergängen, sportlichen Aktivitäten oder einfach zum Abschalten nach einem stressigen Arbeitstag ein.
Infrastruktur (im Umkreis von 5 km):
Apotheke, Lebensmittel-Discount, Allgemeinmediziner, Kindergarten, Grundschule, Gesamtschule, Öffentliche Verkehrsmittel

Sonstige Informationen

Energieträger: Erdwärme

Veranschaulichung der Wohnungen oft auch Bilder einer exemplarischen Wohnung abgebildet sind. Änderungen jeglicher Art bleiben vorbehalten. Sämtliche Angaben in Text und Bild dienen ausschließlich der Vorabinformation und stellen weder ein vertragliches Angebot noch die Zusicherung von Eigenschaften dar.

Makleranfragen nicht erwünscht. Nach § 7 UWG sind unaufgeforderte Kontaktaufnahmen durch Makler ohne ausdrückliche Einwilligung des Empfängers verboten!

ohne-makler (OM) ist weder Anbieter noch Vermittler der Immobilie. OM betreibt eine Plattform für Immobilieneigentümer, die unter anderem die gleichzeitige Veröffentlichung einzelner Inserate auf mehreren Immobilienportalen ermöglicht. Die Inhalte dieser Inserate werden ausschließlich von Dritten verantwortet. Für die Richtigkeit, Vollständigkeit oder Rechtmäßigkeit der Angaben übernimmt OM keine Haftung. Hinweise auf mögliche Rechtsverstöße können jederzeit gemeldet werden und werden nach Prüfung umgehend bearbeitet.
Ansprechpartner/in: Angebot vom Eigentümer
OM PropTech GmbH
Humboldtstraße 25a, 21509 Glinde

Weitere Angebote in Christinendorf