3-Zimmer Wohnung mit Garagenstellplatz + Kellerraum

85368 Moosburg, Bayern
Frei ab: 01.08.2026
930 € Kaltmiete
13,27 € Preis/m² ca.
Wohnfläche
70,1 m²
Zimmer
3
Etage
1
Balkon
Terrasse
Keller
Stellplatz

Mietpreis & Nebenkosten

Kaltmiete (netto)930 €
Nebenkosten 180 €
Heizkosten enthaltenJa
Kaution 2.790 €
Stellplatz Garage Miete60 €

Wohnfläche, Grundstück & Bausubstanz

Wohnfläche70,1 m²
Zimmer3
Etagen2
Stockwerk1
Baujahr2024
Verfügbar ab 01.08.2026
ZustandNeuwertig

Beschreibung der Immobilie

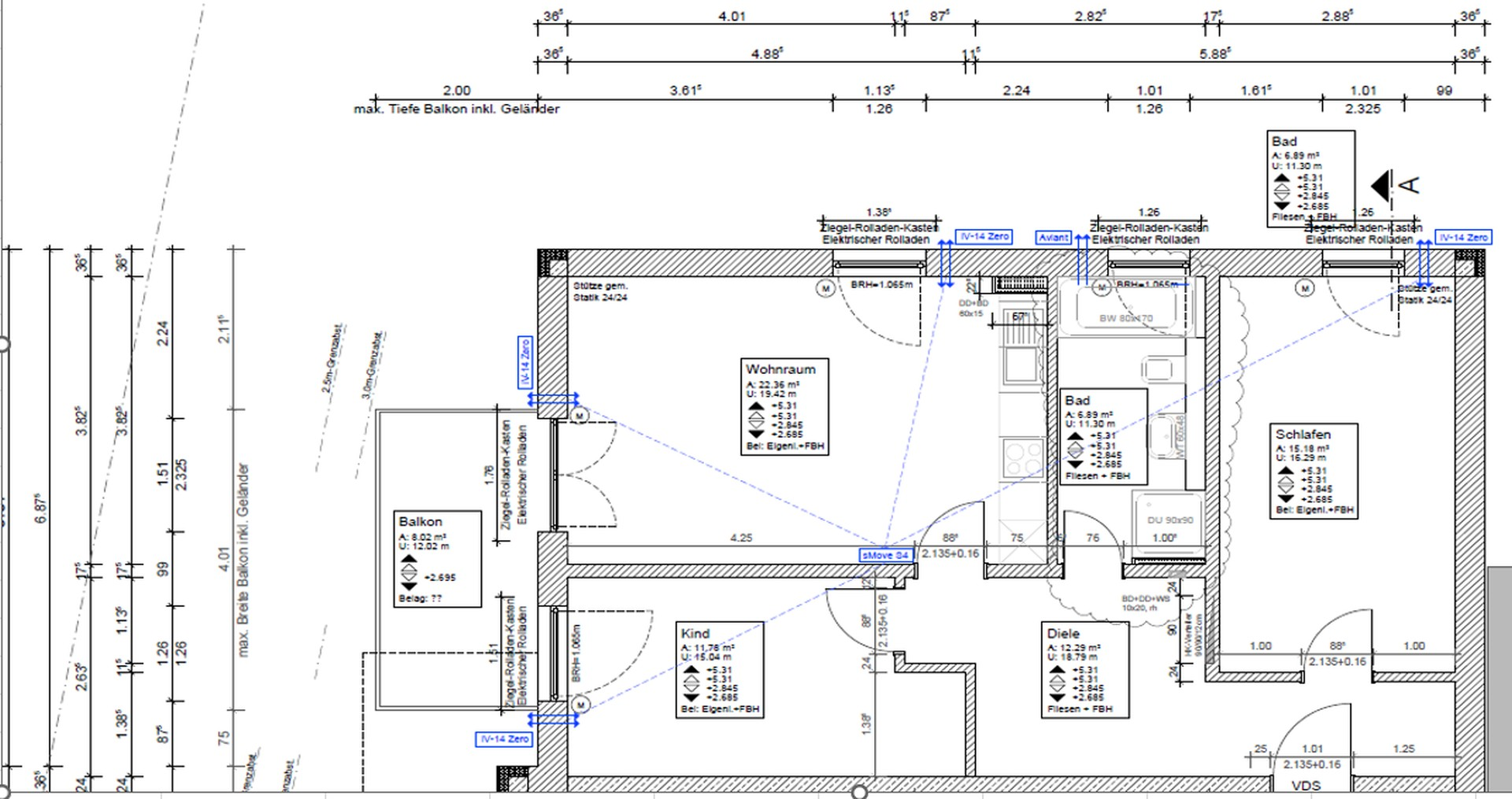
Diese schöne und Zwei Jahre alte 3 ­Zimmer-Wohnung mit großen Balkon, nach KFW-55 Standard erbaut, befindet sich im 1. Stock eines 4 ­Familienhauses im Ortsteil Thonstetten/Moosburg.

Auf rund 70,1 m² Wohnfläche besitzt die Wohnung eine 1a ­Ausstattung
Die Wohnung gestaltet sich aus einem Wohn- Essbereich mit offener Küche, Schlafzimmer, Kinder-/Arbeitszimmer.
Sowie ein Bad mit Fenster, Badewanne und Echtglas-Dusche.
Diese Räume sind optimal durch die geräumige Diele miteinander verbunden.
Der große Balkon ist ideal durch den Wohnbereich zu erreichen.

Die Wohnung wird ohne Küche vermietet, so dass diese selbst nach eigenen Vorstellungen gestaltet werden kann.
Alternativ kann die vorhandene Küche vom Vormieter abgelöst werden.

Die Räume sind mit hochwertigen Vinyl- und schönen Fliesenböden ausgestattet.
Alle Räume beinhalten eine Be- und Entlüftungsanlage sowie eine Fußbodenheizung betrieben durch eine Luft-Wärme-Pumpenanlage.

Zur Wohnung gehört ebenfalls ein Kellerraum mit ca. 12qm Nutzfläche
Ein gemeinsamer Wasch- und Trockenraum und ein gemeinschaftlicher Stellplatz für das Fahrrad stehen zur Nutzung bereit.
Die angegebene Grundmiete versteht sich zusätzlich 60 ­€ für den Garagen-Stellplatz mit Wallbox-Anschlussmöglichkeit und einer monatlichen Nebenkostenvorauszahlung in Höhe von 180€.
Zusätzlich besteht die Möglichkeit einen Außen-Stellplatz für 40 Euro zu mieten.
Das Treppenhaus und der Waschraum wird im wöchentlichen Wechsel durch die Mieter selbstständig gereinigt.

Die Wohnung ist ab 1.06.2026 bezugsfrei Spätestens ab 01.08.2026

Kostenfreier SAT-Fernsehanschluss ist vorhanden.

Freuen Sie sich auf Ihr neues Zuhause.

Haustiere, insbesondere Hunde, sind nicht erwünscht !!
!!Nichtraucher bevorzugt!!

Folgende Unterlagen müssen vorgelegt werden:
-Mieter-Selbstauskunft
-Haftpflichtversicherung
-letzten 3 Einkommensnachweise
-aktuelle positive Schufa (keine Vermietung ohne Schufa-Auskunft)

Ausstattungsmerkmale

Bad1
Bad (Ausstattung)Wanne
BodenFliesen, Kunststoff
Balkone1
Terrassen0
KellerJa
Garage/Stellplätze1
Balkon, Keller, Vollbad, Fliesen, Sonstiges (s. Text)

Bemerkungen:
-3-Zimmerwohnung (Wohnen, Schlafzimmer, Kinderzimmer)
-Bad mit Echtglas-Dusche und Badewanne
-großer Balkon
-Kellerraum
-Garagen-Stellplatz mit elek. Torantrieb
-Wallbox-Anschluss Möglichkeit in der Garage
-SAT-Anschluss
-Gemeinschafts-Fahrrad-Stellplatz
-Gemeinschafts-Waschmaschinen- Trocknerraum.
-Elek. Jalousien
-Be- und Entlüftungsanlage

Energie

A+
Energieeffizienzklasse A+ · 18 kWh/(m²*a)
EnergieausweistypBedarfsausweis
EnergieeffizienzklasseA+
Endenergiebedarf18
Heizungsart Zentralheizung
Energieträger/Befeuerung Luft-Wärme-Pumpe

Karte wird geladen...
85368 Moosburg – Bayern

Lage & Infrastruktur

Der Ortsteil Thonstetten ist ein Kirchdorf ca. 2 km von Moosburg entfernt in Richtung Freising (20km) entlang der Staatsstraße.
Über den Amper-Damm oder den Fahrradweg ist man in ca. 10 Minuten z.B. am Hallen- und Freibad, sowie in der Innenstadt.
Das anliegende Naturgebiet mit der darin eingebetteten Amper ist ideal für Wanderungen und Sport geeignet.

Der Bahnhof in Moosburg ist in ca. 15 Min. mit dem Fahrrad erreichbar.
Mit der Buslinie 688 haben Sie auch von Mo-Fr eine Anbindung an die Bahnhöfe in Moosburg und Langenbach sowie ins Stadtgebiet.

Nach München sind es ca. 45 km, nach Erding ca. 20 km, nach Landshut ca. 22 km.
Zur A92 sind es ca. 7 Autominuten und zum Flughafen München ca. 20 Autominuten.
Infrastruktur (im Umkreis von 5 km):
Apotheke, Lebensmittel-Discount, Allgemeinmediziner, Kindergarten, Grundschule, Hauptschule, Realschule, Gymnasium, Öffentliche Verkehrsmittel

Sonstige Informationen

Heizungsart: Zentralheizung
Energieträger: Luft-/Wasserwärme


Makleranfragen nicht erwünscht. Nach § 7 UWG sind unaufgeforderte Kontaktaufnahmen durch Makler ohne ausdrückliche Einwilligung des Empfängers verboten!

ohne-makler (OM) ist weder Anbieter noch Vermittler der Immobilie. OM betreibt eine Plattform für Immobilieneigentümer, die unter anderem die gleichzeitige Veröffentlichung einzelner Inserate auf mehreren Immobilienportalen ermöglicht. Die Inhalte dieser Inserate werden ausschließlich von Dritten verantwortet. Für die Richtigkeit, Vollständigkeit oder Rechtmäßigkeit der Angaben übernimmt OM keine Haftung. Hinweise auf mögliche Rechtsverstöße können jederzeit gemeldet werden und werden nach Prüfung umgehend bearbeitet.
Ansprechpartner/in: Privat vom Eigentümer
OM PropTech GmbH
Humboldtstraße 25a, 21509 Glinde

Weitere Angebote in Moosburg